Villa til salg i Nagüeles

Bolig ID: R5054722

€8,950,000

12,570 €/m2


712
6
soveværelser
8
Badeværelser
628
terrace
2370
Grundareal

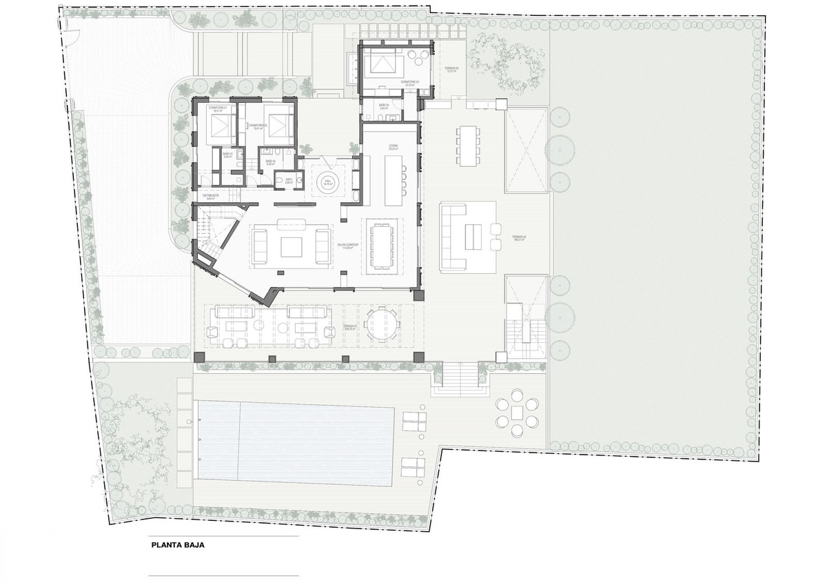
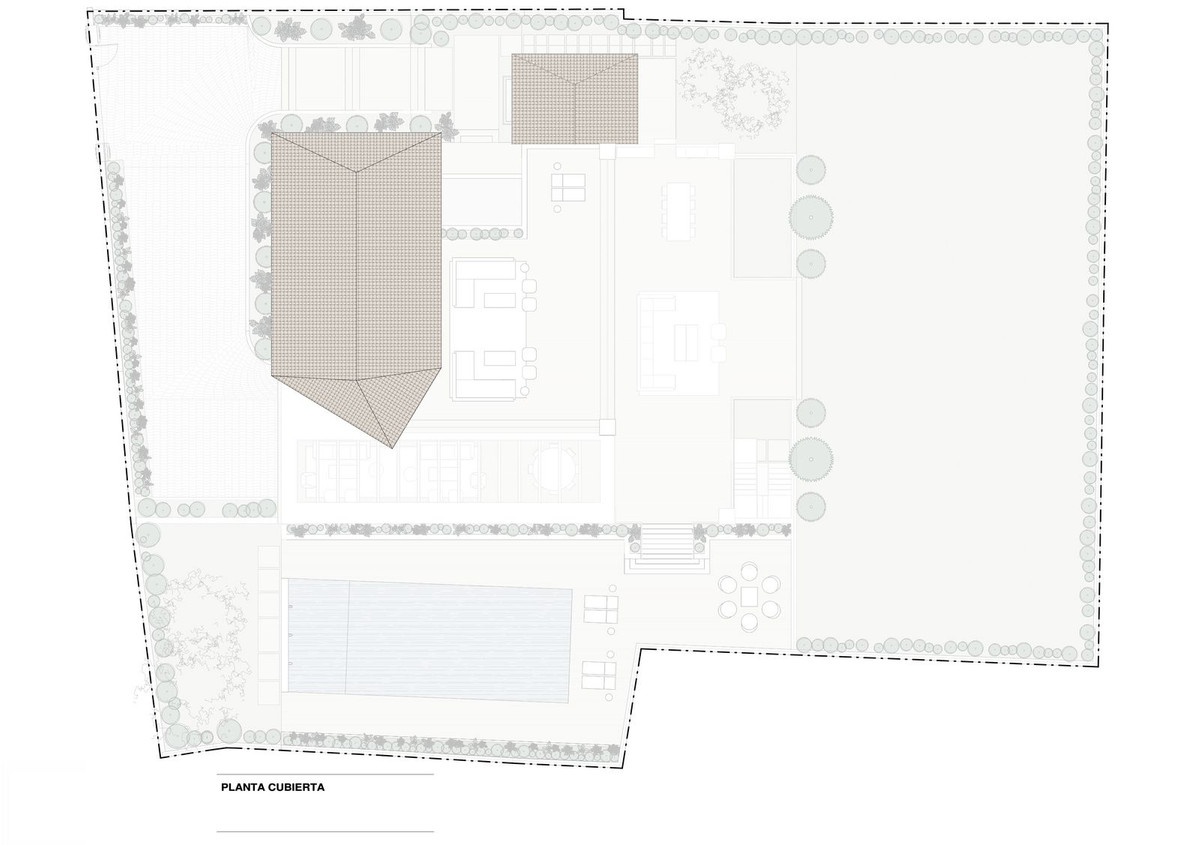
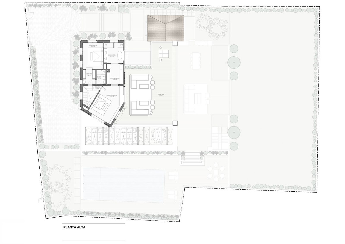
This villa is a refined, modern residence located in Rocío de Nagüeles, one of Marbella's most prestigious and private residential zones. Just minutes from the Golden Mile, the property sits on a 2,370 m² flat plot and offers 712 m² of built space thoughtfully laid out across spacious, light-filled interiors. The architecture emphasises clean lines, open volumes, and strong indoor-outdoor connections, with large sliding glass doors leading to landscaped gardens, a private swimming pool, and a variety of outdoor lounging and dining spaces. Natural stone finishes, warm wood textures, and minimalist lighting create a timeless, understated elegance throughout.

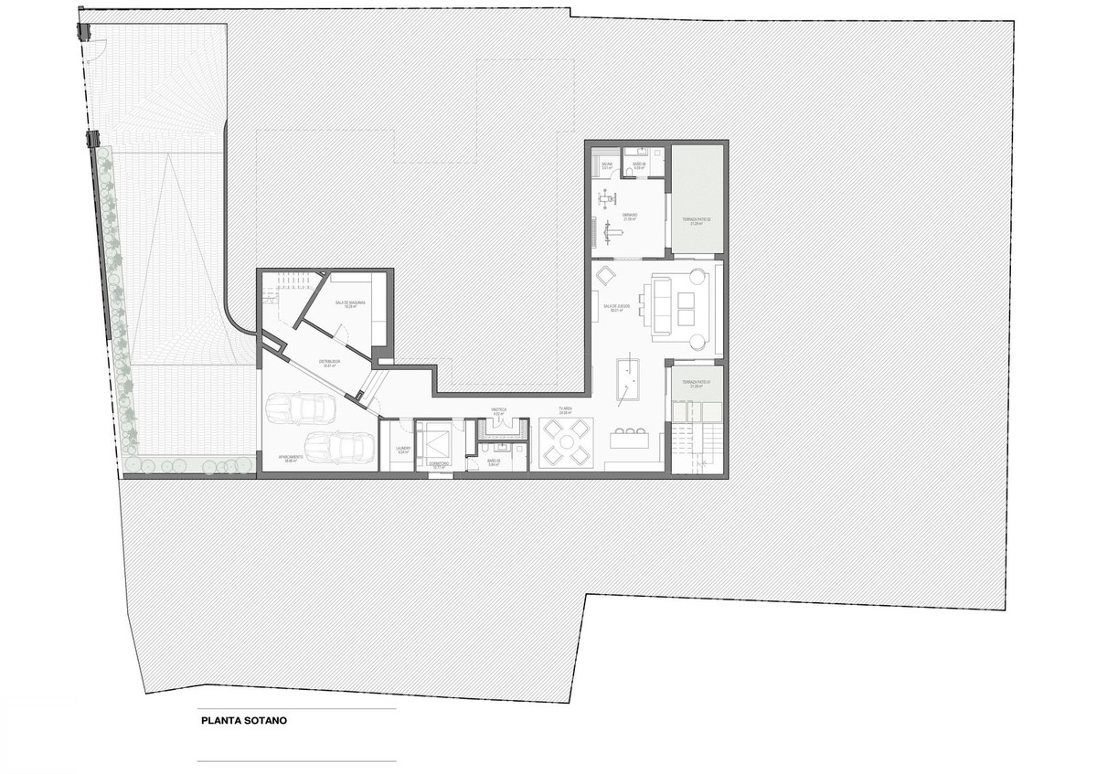
The villa is designed for both everyday living and entertaining, boasting the incredible collaborative efforts of the stellar teams from Sandon, Ames Arquitectos & GC studio. The villa offers an open-plan kitchen and living area, multiple lounge zones, and a seamless flow to the exterior terraces. A dedicated wellness area includes a gym space and sauna, while a separate cinema room and games area offer more relaxed, private entertainment. Outdoors, a custom firepit lounge, rooftop chill-out space, and full-size tennis court complete the lifestyle offering. Despite its calm, residential setting, it is just a short drive to Marbella Club, Puente Romano, and the beaches of the Golden Mile, offering the best of privacy and proximity.

Detached Villa, Nagüeles, Costa del Sol.
6 Bedrooms, 8 Bathrooms, Built 712 m², Terrace 628 m², Garden/Plot 2370 m².

Setting : Close To Golf, Close To Shops, Close To Town, Close To Schools, Close To Forest.
Orientation : East, South East, South, South West, West.
Condition : Excellent, New Construction.
Pool : Private, Heated.
Climate Control : Air Conditioning, Fireplace, U/F Heating, U/F/H Bathrooms.
Views : Sea, Mountain.
Features : Covered Terrace, Lift, Fitted Wardrobes, Private Terrace, Solarium, Gym, Sauna, Games Room, Tennis Court, Utility Room, Ensuite Bathroom, Marble Flooring, Jacuzzi, Bar, Barbeque, Basement.
Furniture : Fully Furnished.
Kitchen : Fully Fitted.
Garden : Private.
Parking : Underground, Garage, Covered, Private.
Category : Luxury.


Egenskaber

Climate control

  • A/C
  • fireplace
    Pejs/Kamin
  • Gulvvarme
  • Gulvvarme Badeværelse

Condition

  • Meget God
  • NyByggeri

Features

  • Overdækket Terrasse
  • lift
    Elevator
  • dresser-wardrobe
    Indbyggede Garderobeskabe
  • Privat Terrasse
  • Solterasse
  • Motionsrum
  • Sauna
  • board-game
    Spillerum
  • Tennisbane
  • home-improvement-12_1
    Vaskehus
  • En-Suite Badeværelse
  • Marmorgulv
  • Jacuzzi
  • Bar
  • Barbeque
  • cellar-3
    Kælderen

Furniture

  • Fuldt møbleret

Garden

  • Privat

Kitchen

  • Fuldt Udstyret

Orientation

  • Øst
  • Sydøst
  • Syd
  • Sydvest
  • Vest

Parking

  • Parkeringskælder
  • Garage
  • Carport
  • Privat

Pool

  • Privat
  • Opvarmet

Setting

  • Nær Golf
  • Nær Forretninger
  • shanty-house-village-1
    Nær By
  • Nær Skole
  • Nær Skov

Udsigt

  • Hav
  • Bjerge

Beliggende i

Købekraft

Beregn din månedlige afdrag på lån

Din forventede månedlige ydelse

Bliv forhåndsgodkendt

Bolig-udland samarbejder med Mortage Direct

Vi tilbyder vores kunder de bedst mulige boliglån til ejendomskøb i Spanien. Få det bedste spanske boliglån med Mortgage Direct.

Mere info

Købsomkostninger

Vores udgiftskalkulator giver et skøn over alle omkostninger forbundet med at købe et hus i Spanien. Brug kun disse tal som vejledning: De faktiske tal varierer afhængigt af ejendommen, ejendommens placering og den bank du vælger sammen med andre faktorer. Til det samlede beløb skal du tilføje dine afdrag på dit realkreditlån samt bankgebyrer, hvis din bank opkræver det.

Samlede udgifter

Du kan måske også lide disse boliger