Villa til salg i Jávea

Bolig ID: VPO-N9405

€2,200,000

4,701 €/m2


468
4
soveværelser
4
Badeværelser
1000
Grundareal

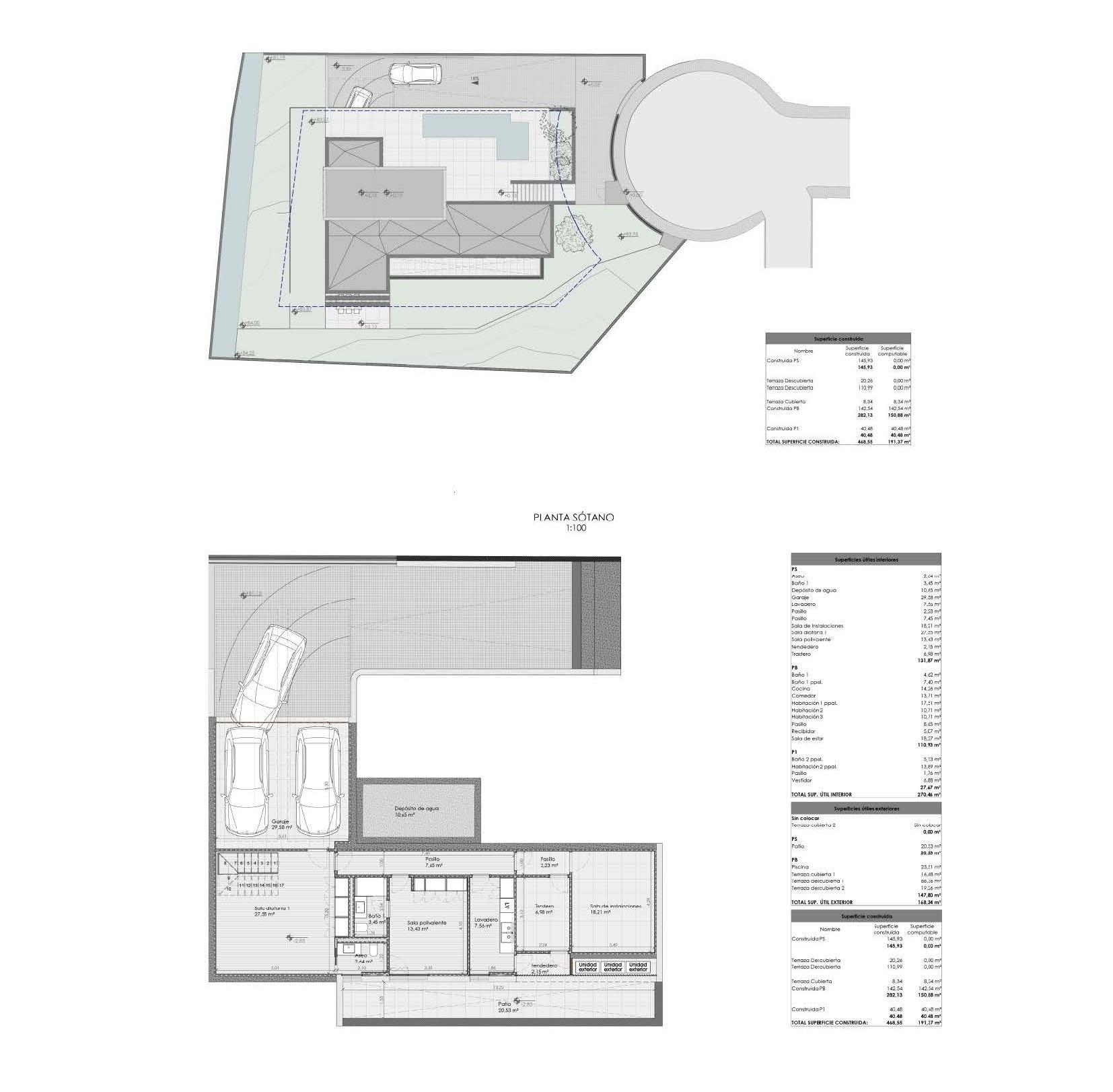
Modern New Build Villa with Luxury Features in Javea Contemporary Mediterranean Living on the Costa Blanca This stunning detached new build villa in Javea combines high quality finishes, elegant design and optimal functionality across three spacious levels. Located in one of the most desirable coastal towns in the Costa Blanca North, the property offers a peaceful residential environment surrounded by green mountains, natural parks and beautiful beaches. Javea is renowned for its crystal clear waters, traditional gastronomy and Mediterranean lifestyle, making it an ideal location for both permanent living and investment. Spacious Basement Designed for Versatility The basement level is thoughtfully designed to meet modern lifestyle needs. It includes an open garage for two cars, a bathroom, a guest toilet, an open concept room, a multipurpose room and a patio that brings natural light into the space. This floor provides endless possibilities, whether you envision a gym, entertainment room, office or guest suite. Elegant Ground Floor with Connected Living Spaces The ground floor features a bright living dining room that integrates seamlessly with the fully equipped kitchen, creating a perfect area for family gatherings. An entrance hall, guest toilet and hallways add practicality and flow. This level includes two comfortable bedrooms sharing a modern bathroom and a generous master bedroom with an en suite bathroom, offering privacy and comfort. Luxurious Upper Floor Master Suite The upper floor is dedicated to a second master bedroom, providing an exclusive retreat with its own en suite bathroom, dressing room and hallway. This private space ensures comfort and tranquillity with beautiful views of the surrounding green landscapes. Outdoor Living Designed for the Mediterranean Climate The exterior areas of the property are created for enjoying outdoor living all year round. It features two covered terraces and two uncovered terraces on the ground floor. One of the covered terraces surrounds the swimming pool, perfect for summer relaxation, while the uncovered terrace next to the kitchen is ideal for outdoor dining and gatherings. Equipped with underfloor heating and ducted air conditioning, the villa guarantees comfort in every season. Prime Location in Javea El Arenal Beach 3 km Javea Port and Marina 7 km Javea Golf Club 3 km Alicante Airport 100 km Valencia Airport 125 km Your Mediterranean Home Awaits Whether you are looking for a luxury residence, a holiday home or a secure long term investment, this villa offers an exceptional lifestyle in Javea. Contact us today to arrange a visit and discover your future home on the Costa Blanca.

Beliggende i

Købekraft

Beregn din månedlige afdrag på lån

Din forventede månedlige ydelse

Bliv forhåndsgodkendt

Bolig-udland samarbejder med Mortage Direct

Vi tilbyder vores kunder de bedst mulige boliglån til ejendomskøb i Spanien. Få det bedste spanske boliglån med Mortgage Direct.

Mere info

Købsomkostninger

Vores udgiftskalkulator giver et skøn over alle omkostninger forbundet med at købe et hus i Spanien. Brug kun disse tal som vejledning: De faktiske tal varierer afhængigt af ejendommen, ejendommens placering og den bank du vælger sammen med andre faktorer. Til det samlede beløb skal du tilføje dine afdrag på dit realkreditlån samt bankgebyrer, hvis din bank opkræver det.

Samlede udgifter

Du kan måske også lide disse boliger

3 sovevær. · 4 badevær. · 235 m²
€950,000 - €950,000
REF. ID: R5142703
Nybyg/ Projektsalg
4 sovevær. · 6 badevær. · 676 m²
€4,500,000 - €4,500,000
REF. ID: R5351479
Nybyg/ Projektsalg