Villa til salg i Jávea

Bolig ID: RED-N9405

€2,200,000

4,701 €/m2


468
4
soveværelser
4
Badeværelser
1000
Grundareal

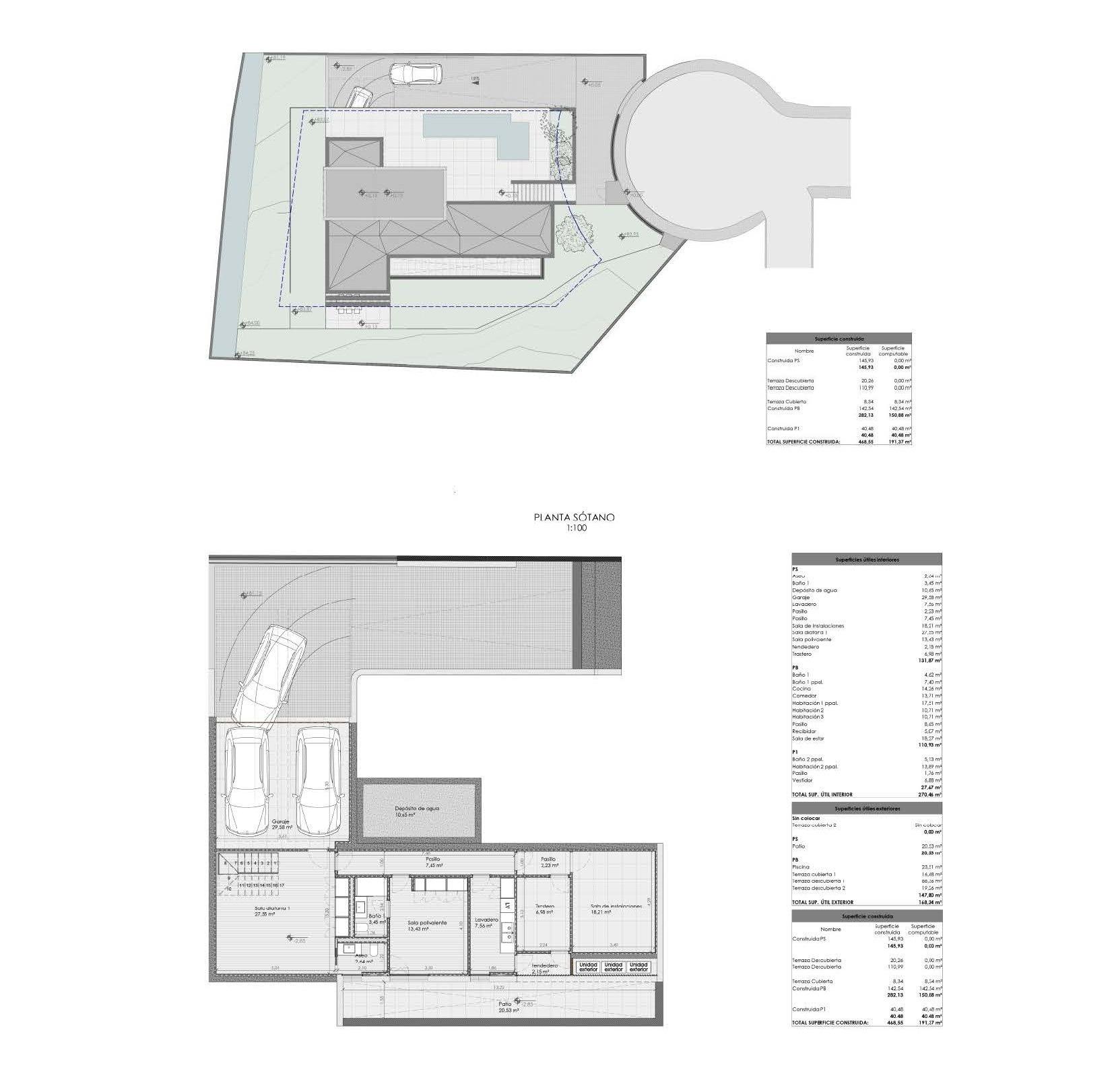
Moderne nybygget villa med luksuriøse detaljer i Javea Moderne middelhavsliv på Costa Blanca Denne fantastiske, nybyggede villa i Javea kombinerer høj kvalitet, elegant design og optimal funktionalitet på tre rummelige etager. Beliggende i en af de mest eftertragtede kystbyer på Costa Blanca Nord, tilbyder ejendommen et fredeligt boligmiljø omgivet af grønne bjerge, naturparker og smukke strande. Javea er kendt for sit krystalklare vand, traditionelle gastronomi og middelhavsstil, hvilket gør det til et ideelt sted for både permanent ophold og investering. Rummelig kælder designet til alsidighed Kælderniveauet er omhyggeligt designet til at imødekomme moderne livsstilsbehov. Det omfatter en åben garage til to biler, et badeværelse, et gæstetoilet, et åbent rum, et multifunktionsrum og en gårdhave, der bringer naturligt lys ind i rummet. Denne etage giver uendelige muligheder, uanset om du forestiller dig et fitnessrum, et underholdningsrum, et kontor eller en gæstelejlighed. Elegant stueetage med sammenhængende opholdsrum Stueetagen har en lys stue/spisestue, der integreres problemfrit med det fuldt udstyrede køkken, hvilket skaber et perfekt område til familiesammenkomster. En entré, gæstetoilet og gange tilføjer praktisk funktionalitet og flow. Denne etage omfatter to komfortable soveværelser, der deler et moderne badeværelse, og et generøst master-soveværelse med eget badeværelse, der tilbyder privatliv og komfort. Luksuriøs master suite på øverste etage Den øverste etage er dedikeret til et andet master bedroom, der tilbyder et eksklusivt tilflugtssted med eget badeværelse, påklædningsværelse og gang. Dette private rum sikrer komfort og ro med smuk udsigt over det omgivende grønne landskab. Udendørs opholdsrum designet til det middelhavsklima Ejendommens udendørsarealer er skabt til at nyde udendørslivet hele året rundt. Den har to overdækkede terrasser og to uoverdækkede terrasser i stueetagen. En af de overdækkede terrasser omgiver swimmingpoolen, perfekt til sommerafslapning, mens den uoverdækkede terrasse ved siden af køkkenet er ideel til udendørs spisning og sammenkomster. Villaen er udstyret med gulvvarme og kanaliseret aircondition, hvilket garanterer komfort i alle årstider. Fremragende beliggenhed i Javea El Arenal-stranden 3 km Javea havn og marina 7 km Javea Golf Club 3 km Alicante lufthavn 100 km Valencia lufthavn 125 km Dit middelhavshjem venter Uanset om du er på udkig efter en luksusbolig, et feriehus eller en sikker langsigtet investering, tilbyder denne villa en enestående livsstil i Javea. Kontakt os i dag for at arrangere et besøg og opdage dit fremtidige hjem på Costa Blanca.

Egenskaber

Features

  • Privat Terrasse
  • dresser-drawers-5
    Pulterrum
  • home-improvement-12_1
    Vaskehus

Parking

  • Mere end én

Pool

  • Private pool

Security

  • Lukket Kompleks

Setting

  • Nær Skole
  • Nær Forretninger

Beliggende i

Købekraft

Beregn din månedlige afdrag på lån

Din forventede månedlige ydelse

Bliv forhåndsgodkendt

Bolig-udland samarbejder med Mortage Direct

Vi tilbyder vores kunder de bedst mulige boliglån til ejendomskøb i Spanien. Få det bedste spanske boliglån med Mortgage Direct.

Mere info

Købsomkostninger

Vores udgiftskalkulator giver et skøn over alle omkostninger forbundet med at købe et hus i Spanien. Brug kun disse tal som vejledning: De faktiske tal varierer afhængigt af ejendommen, ejendommens placering og den bank du vælger sammen med andre faktorer. Til det samlede beløb skal du tilføje dine afdrag på dit realkreditlån samt bankgebyrer, hvis din bank opkræver det.

Samlede udgifter

Du kan måske også lide disse boliger

3 sovevær. · 4 badevær. · 235 m²
€950,000 - €950,000
REF. ID: R5142703
Nybyg/ Projektsalg
5 sovevær. · 5 badevær. · 796 m²
€2,790,000 - €2,790,000
REF. ID: R5071312
Nybyg/ Projektsalg