Villa til salg i Jávea

Bolig ID: RED-N9327

€1,450,000

6,905 €/m2


210
3
soveværelser
2
Badeværelser
1000
Grundareal

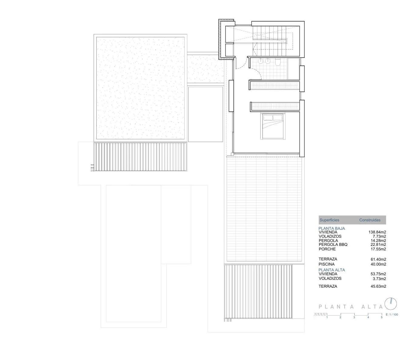
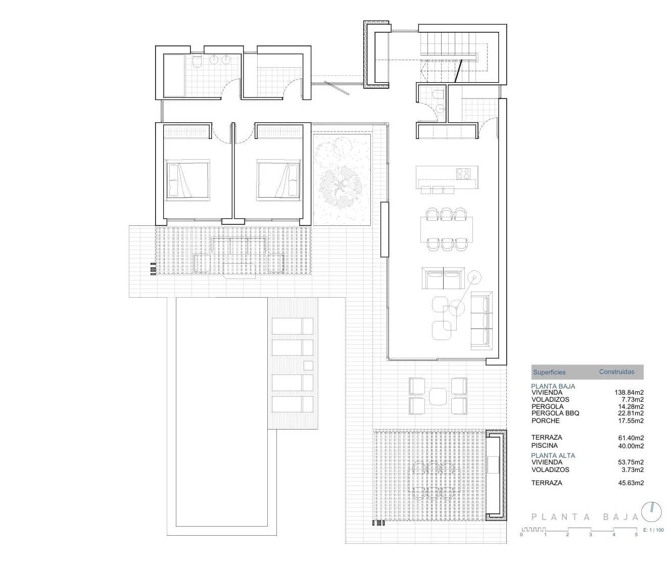
Moderne nybygget villa nær havet i Javea Eksklusivt middelhavsliv i Javea Oplev denne fantastiske moderne villa beliggende i et af de mest eftertragtede og fredelige områder i Javea, kun 800 meter fra havet. Beliggende mellem fyrretræer og tæt på den berømte Cala de la Barraca og Cala del Portixol, tilbyder denne bolig en privilegeret livsstil omgivet af natur og kystens skønhed. Javea, der ligger på Costa Blanca mellem Alicante og Valencia, er kendt for sit krystalklare vand, charmerende gamle bydel og milde klima året rundt, hvilket gør det til et af de mest eftertragtede rejsemål i Middelhavet. Elegant design og lyse åbne rum Denne villa er designet med komfort og stil for øje og har en moderne arkitektur med bløde linjer, store vinduer og en flydende integration mellem inde og ude. Naturligt lys bader hvert hjørne og skaber en varm og indbydende atmosfære, der er ideel til både at bo og underholde. Villaen er fordelt på to etager og omfatter Åben stue og spisestue med direkte adgang til terrasser og pool Fuldt møbleret åbent køkken 3 soveværelser og 2 badeværelser plus 1 gæstetoilet Vaskerum og spisekammer Privat have, terrasser og poolområde med sommerkøkken Privat master suite og udendørs livsstil Stueetagen omfatter to soveværelser, et badeværelse og rummelige fællesarealer. På øverste etage tilbyder det store soveværelse et privat fristed med eget badeværelse, et generøst walk-in-closet og en 45 m2 stor terrasse, der er perfekt til at nyde solopgangen og den middelhavsbrise. Det udendørs område er designet til afslapning med en privat pool, solterrasser og frodige omgivelser, der sikrer ro og privatliv. Fremragende beliggenhed i Costa Blanca Nord Javea tilbyder en enestående livsstil med smukke strande, vandreruter, lystbådehavne, golfbaner og gourmetrestauranter. Byen ligger 92 km fra Alicante og 105 km fra Valencia. Vigtige afstande Strand og Cala del Portixol: 0,8 km Javea havn og marina: 8 km Javea Golf Club: 10 km Alicante lufthavn: 100 km Valencia lufthavn: 125 km Dit middelhavshjem venter Uanset om du søger en permanent bolig, et luksuriøst feriested eller en førsteklasses investering, tilbyder denne villa privatliv, komfort og en enestående beliggenhed ved kysten. Kontakt os i dag for mere information eller for at arrangere en fremvisning af dette eksklusive, moderne hjem i Javea.

Egenskaber

Climate control

  • A/C

Features

  • Privat Terrasse
  • Solterasse

Parking

  • Privat

Pool

  • Private pool

Security

  • Lukket Kompleks

Setting

  • Nær Havet
  • Nær Skole
  • Nær Forretninger

Beliggende i

Købekraft

Beregn din månedlige afdrag på lån

Din forventede månedlige ydelse

Bliv forhåndsgodkendt

Bolig-udland samarbejder med Mortage Direct

Vi tilbyder vores kunder de bedst mulige boliglån til ejendomskøb i Spanien. Få det bedste spanske boliglån med Mortgage Direct.

Mere info

Købsomkostninger

Vores udgiftskalkulator giver et skøn over alle omkostninger forbundet med at købe et hus i Spanien. Brug kun disse tal som vejledning: De faktiske tal varierer afhængigt af ejendommen, ejendommens placering og den bank du vælger sammen med andre faktorer. Til det samlede beløb skal du tilføje dine afdrag på dit realkreditlån samt bankgebyrer, hvis din bank opkræver det.

Samlede udgifter

Du kan måske også lide disse boliger

5 sovevær. · 5 badevær. · 796 m²
€2,790,000 - €2,790,000
REF. ID: R5071312
Nybyg/ Projektsalg
3 sovevær. · 4 badevær. · 235 m²
€950,000 - €950,000
REF. ID: R5142703
Nybyg/ Projektsalg