Stueetagelejlighed til salg i Puerto de Mazarrón

Bolig ID: RED-SP1326

€221,000

3,453 €/m2


64
2
soveværelser
2
Badeværelser
23
Grundareal

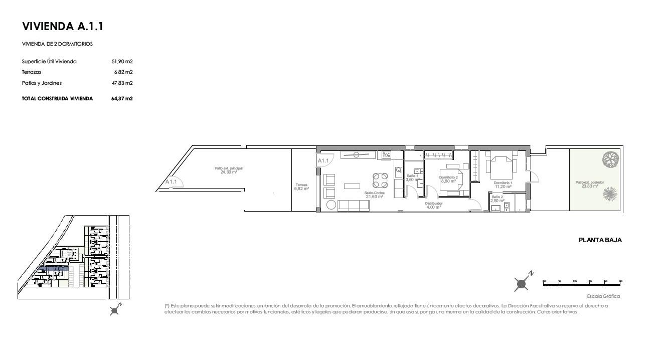
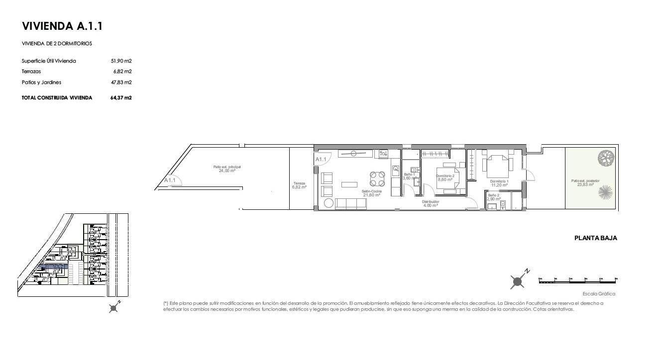
Nybyggede boliger kun 200 meter fra stranden i Puerto de Mazarrón Eksklusivt kystliv i Costa Cálida Vi præsenterer et nyt boligprojekt med moderne boliger i Puerto de Mazarrón, kun 200 meter fra den smukke Playa Negra. Beliggende i et af de mest eftertragtede kystområder i Murcia-regionen, tilbyder dette projekt en enestående mulighed for at nyde middelhavslivet tæt på havet, vigtige faciliteter og naturlige omgivelser. Puerto de Mazarrón er kendt for sine fantastiske strande, krystalklare vand, charmerende marina og afslappede atmosfære. Med fremragende service, udendørs fritidsaktiviteter og et varmt klima året rundt er det et ideelt rejsemål for både permanent ophold og ferieophold. Moderne design og funktionelle indretninger Dette eksklusive byggeri består af 30 moderne boliger med 2 soveværelser og 1 eller 2 badeværelser, der er omhyggeligt designet for at give komfort, stil og effektivitet. Det lave kompleks omfatter lejligheder i stueetagen med private terrasser og haver samt lejligheder på første sal med terrasser og private solterrasser på taget. Husene har private parkeringspladser enten på ejendommen eller inden for boligkomplekset. Boligerne er indrettet med henblik på at maksimere det naturlige lys med åbne opholdsrum, store vinduer og eksklusive finish. Første fase tilbyder boliger, der kan tilpasses med funktionelle indretninger, der kan personliggøres, så de passer til dine livsstilsbehov. Boligerne i stueetagen har en privat have, bagterrasse og parkering på grunden eller fælles parkering. Boligerne på øverste etage har privat adgang i stueetagen, terrasse på første etage og solterrasse på taget samt tildelt parkering. Ekstraudstyr omfatter private pools på terrasser i stueetagen eller jacuzzier på solterrasser. Højkvalitets specifikationer Hver bolig har Forstærket indgangsdør Forinstallation til kanaliseret aircondition Komplette badeværelser med møbler, spejl og brusevægge Udendørsarealer designet til grill, pergolaer og afslapningsområder Dette boligområde tilbyder et sikkert, familievenligt og etableret miljø inden for gåafstand af supermarkeder, skoler, lægehjælp, parker og stranden. Fremragende beliggenhed i Puerto de Mazarrón Afstande til vigtige seværdigheder Playa Negra 0,2 km Mazarrón Marina 2 km Mazarrón Park Shopping Centre 5 km Cartagena 35 km Murcia City 70 km Murcia Corvera Airport 45 km Golfbaner Camposol og Hacienda del Álamo 25–35 km Nyd vandsport, vandreture og cykling i den nærliggende Sierra de las Moreras, og oplev det bedste af Costa Cálida-livsstilen. Gør Middelhavet til dit hjem Gå ikke glip af muligheden for at sikre dig en nybygget ejendom kun få skridt fra stranden i Puerto de Mazarrón. Kontakt os i dag for at høre om ledige ejendomme, få yderligere oplysninger og aftale en fremvisning.

Egenskaber

Climate control

  • A/C

Features

  • Privat Terrasse
  • bus-2
    Tæt På Transport

Parking

  • Privat

Security

  • Lukket Kompleks

Setting

  • Nær Havet
  • Nær Skole
  • Nær Forretninger

Udsigt

  • Hav

Beliggende i

Købekraft

Beregn din månedlige afdrag på lån

Din forventede månedlige ydelse

Bliv forhåndsgodkendt

Bolig-udland samarbejder med Mortage Direct

Vi tilbyder vores kunder de bedst mulige boliglån til ejendomskøb i Spanien. Få det bedste spanske boliglån med Mortgage Direct.

Mere info

Købsomkostninger

Vores udgiftskalkulator giver et skøn over alle omkostninger forbundet med at købe et hus i Spanien. Brug kun disse tal som vejledning: De faktiske tal varierer afhængigt af ejendommen, ejendommens placering og den bank du vælger sammen med andre faktorer. Til det samlede beløb skal du tilføje dine afdrag på dit realkreditlån samt bankgebyrer, hvis din bank opkræver det.

Samlede udgifter

Du kan måske også lide disse boliger