Byhus/Rækkehus til salg i Estepona

Bolig ID: RED-SP1223

€962,000

3,879 €/m2


248
3
soveværelser
3
Badeværelser
0
Grundareal

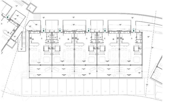
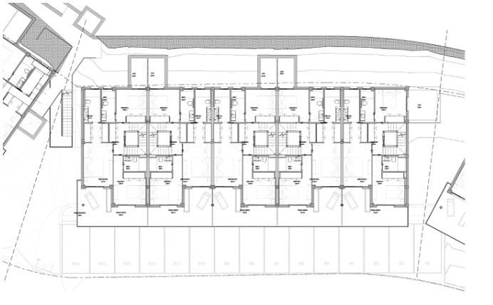
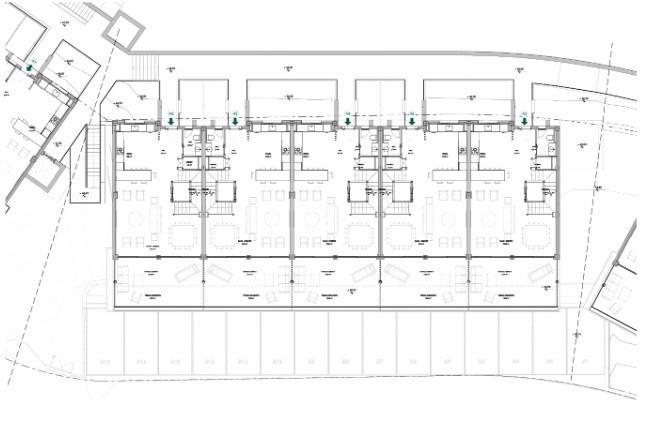
Nybyggede boliger i Esteponas eksklusive New Golden Mile Fremragende beliggenhed i Cancelada, Estepona Oplev et unikt boligprojekt i Cancelada, beliggende i Esteponas prestigefyldte New Golden Mile, et af de mest eftertragtede områder på Costa del Sol. Cancelada er kendt for sin ro, naturlige skønhed og nærhed til førsteklasses faciliteter og tilbyder den perfekte ramme for at nyde en middelhavsstil, hvor havet og bjergene mødes i harmoni. Afstande til vigtige seværdigheder: Strand: 2 km Puerto Banús: 12 km Marbella: 20 km Estepona bymidte: 10 km Málaga Internationale Lufthavn: 65 km Golfbaner: Flamingos, El Campanario, Atalaya og flere inden for 2-5 km Moderne boliger med rummelige indretninger Dette eksklusive byggeri tilbyder en række forskellige boligtyper, der passer til alle behov: Boliger med 2, 3 og 4 soveværelser Boliger i stueetagen og mellemste etage med store terrasser Penthouse-lejligheder med private solterrasser og panoramaudsigt Rækkehuse med flere terrasser Alle boliger har åbent interiør, store terrasser mod sydvest og finish i høj kvalitet. Naturligt lys strømmer ind i alle rum og skaber lyse og indbydende rum, der er perfekte til at bo i året rundt. Høj kvalitet og energieffektivitet Hver bolig er designet med komfort og bæredygtighed for øje, herunder: Aerotermisk varmt vand og aircondition Badeværelser med møbler, spejle og bruseskærme Elektrisk gulvvarme i badeværelser Privat parkeringsplads og opbevaringsrum inkluderet Eksklusive fællesfaciliteter Bebyggelsens design forbedrer beboernes livskvalitet og tilbyder exceptionelle fællesarealer såsom: Anlagte middelhavshaver og gangstier Afslapningsområder og fælles lounge Swimmingpool Fuldt udstyret fitnesscenter og spa Livsstil i Esteponas nye Golden Mile Cancelada er et paradis for golfelskere, med nogle af Andalusiens mest prestigefyldte baner kun få minutter væk. Costa del Sol, også kendt som »Costa del Golf«, kan prale af mere end 70 baner, hvilket gør det til en drømmedestination for golfentusiaster. Beboerne nyder også godt af nem adgang til internationale skoler, moderne hospitaler, indkøbscentre, eksklusive butikker, kulturelle steder og restauranter i verdensklasse. Med over 320 solskinsdage om året og en gennemsnitstemperatur på 20 ºC er Estepona det perfekte sted at nyde den middelhavsinspirerede livsstil. Sikr dig dit drømmehus i Estepona Gå ikke glip af muligheden for at bo i et af de mest eftertragtede områder på Costa del Sol. Kontakt os i dag for at arrangere et besøg og opdag dit fremtidige hjem i Esteponas nye Golden Mile. 849

Egenskaber

Features

  • Privat Terrasse
  • dresser-drawers-5
    Pulterrum
  • Motionsrum

Parking

  • Privat

Pool

  • Fælles

Security

  • Lukket Kompleks

Setting

  • Nær Skole
  • Nær Forretninger

Beliggende i

Købekraft

Beregn din månedlige afdrag på lån

Din forventede månedlige ydelse

Bliv forhåndsgodkendt

Bolig-udland samarbejder med Mortage Direct

Vi tilbyder vores kunder de bedst mulige boliglån til ejendomskøb i Spanien. Få det bedste spanske boliglån med Mortgage Direct.

Mere info

Købsomkostninger

Vores udgiftskalkulator giver et skøn over alle omkostninger forbundet med at købe et hus i Spanien. Brug kun disse tal som vejledning: De faktiske tal varierer afhængigt af ejendommen, ejendommens placering og den bank du vælger sammen med andre faktorer. Til det samlede beløb skal du tilføje dine afdrag på dit realkreditlån samt bankgebyrer, hvis din bank opkræver det.

Samlede udgifter

Du kan måske også lide disse boliger