
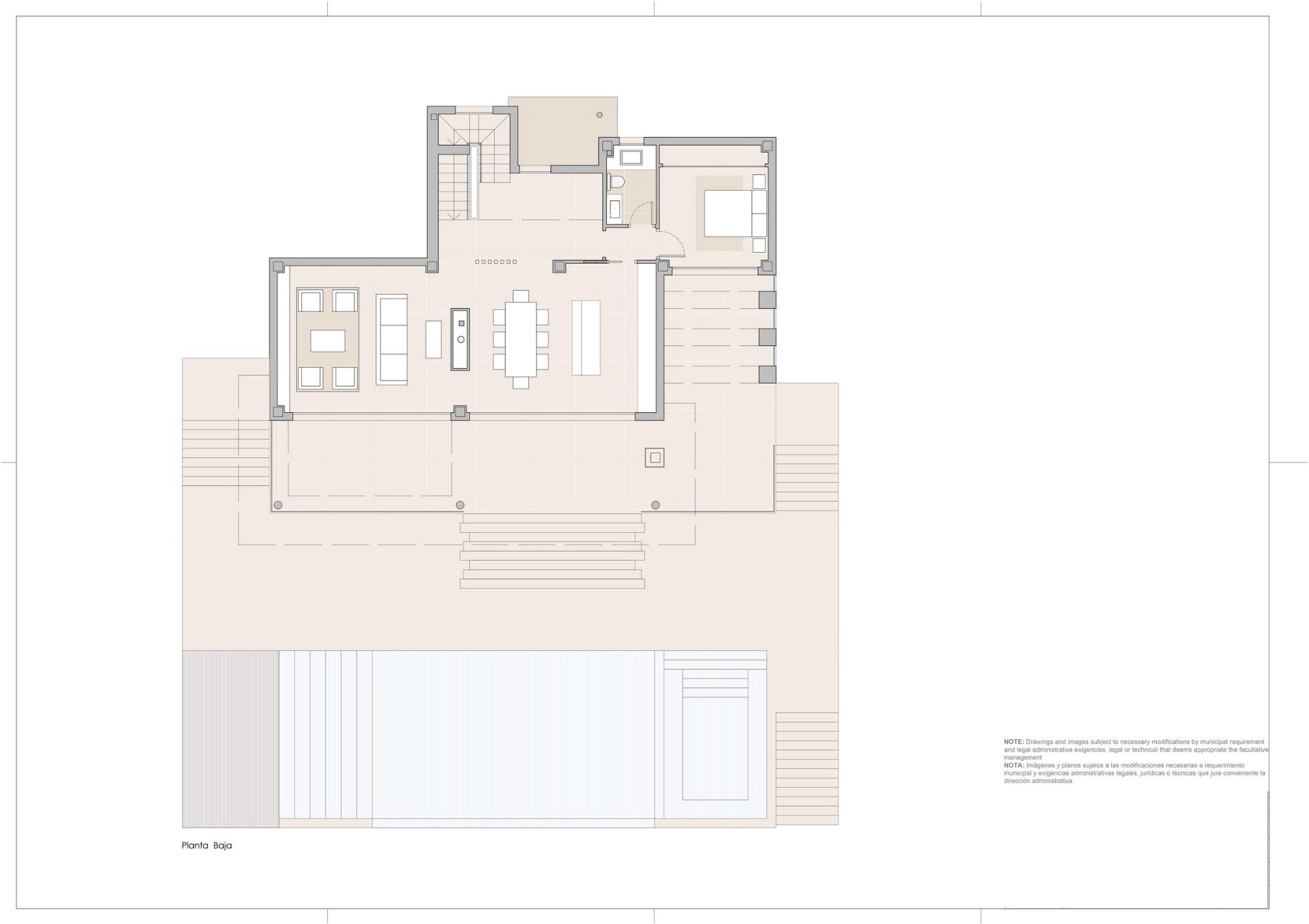
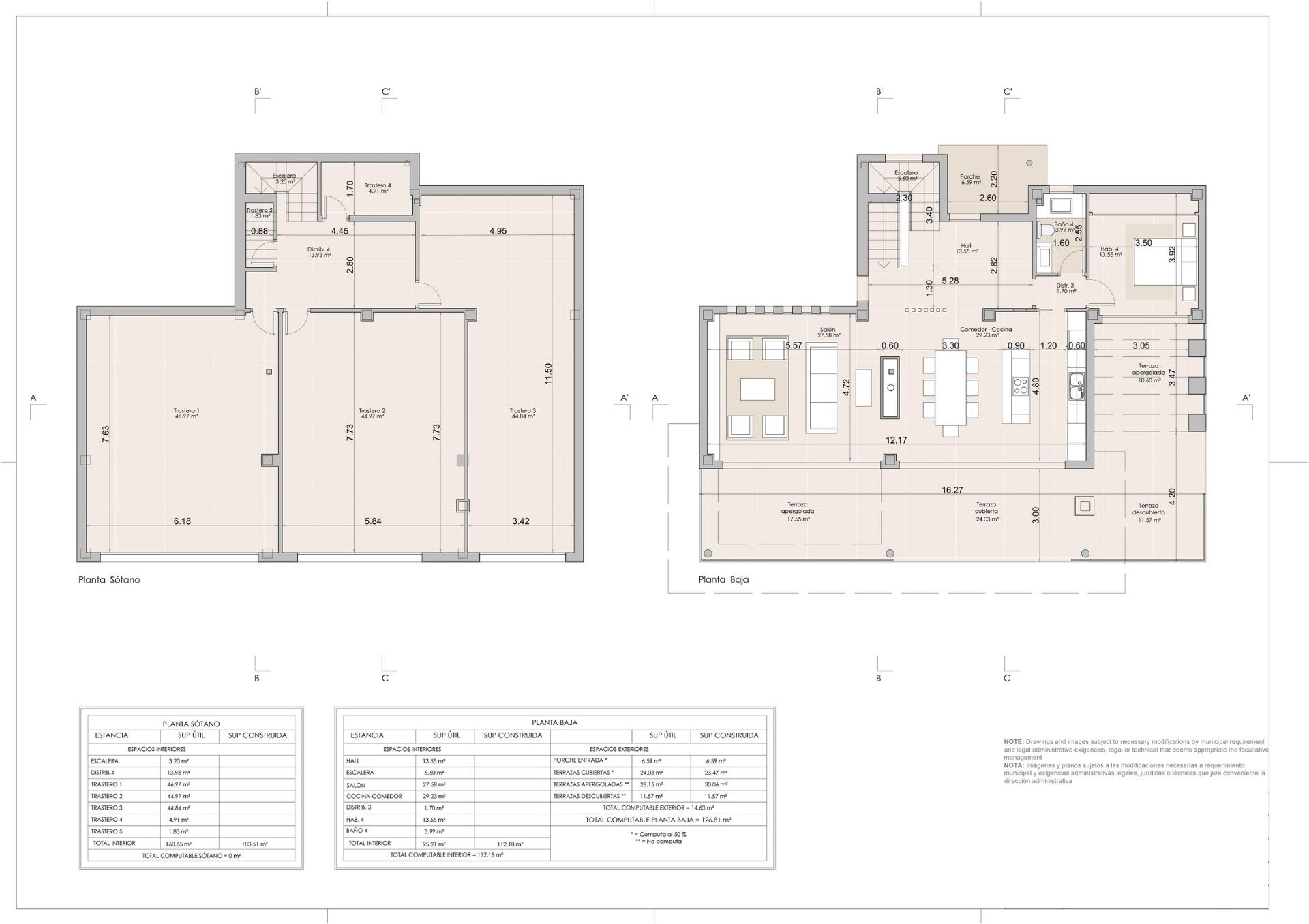
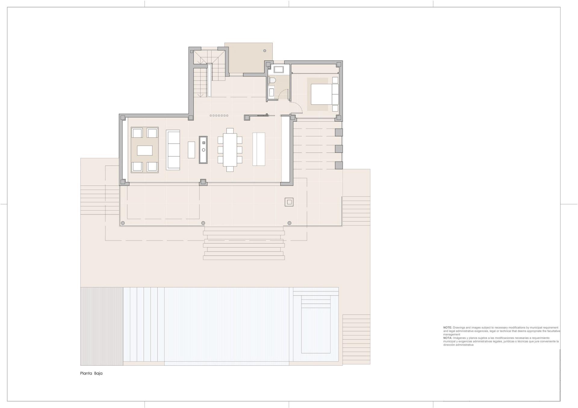
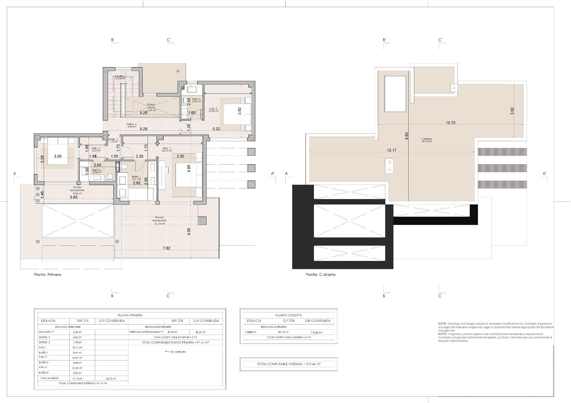
Simon Mosel
Costa del Sol
5,081 €/m2
Beregn din månedlige afdrag på lån
Få en tryg bolighandel i Spanien med dansk realkredit.
Mere infoVores udgiftskalkulator giver et skøn over alle omkostninger forbundet med at købe et hus i Spanien. Brug kun disse tal som vejledning: De faktiske tal varierer afhængigt af ejendommen, ejendommens placering og den bank du vælger sammen med andre faktorer. Til det samlede beløb skal du tilføje dine afdrag på dit realkreditlån samt bankgebyrer, hvis din bank opkræver det.