Byhus/Rækkehus til salg i Los Alcazares

Bolig ID: RED-N9307

€357,000

2,644 €/m2


135
3
soveværelser
2
Badeværelser
0
Grundareal

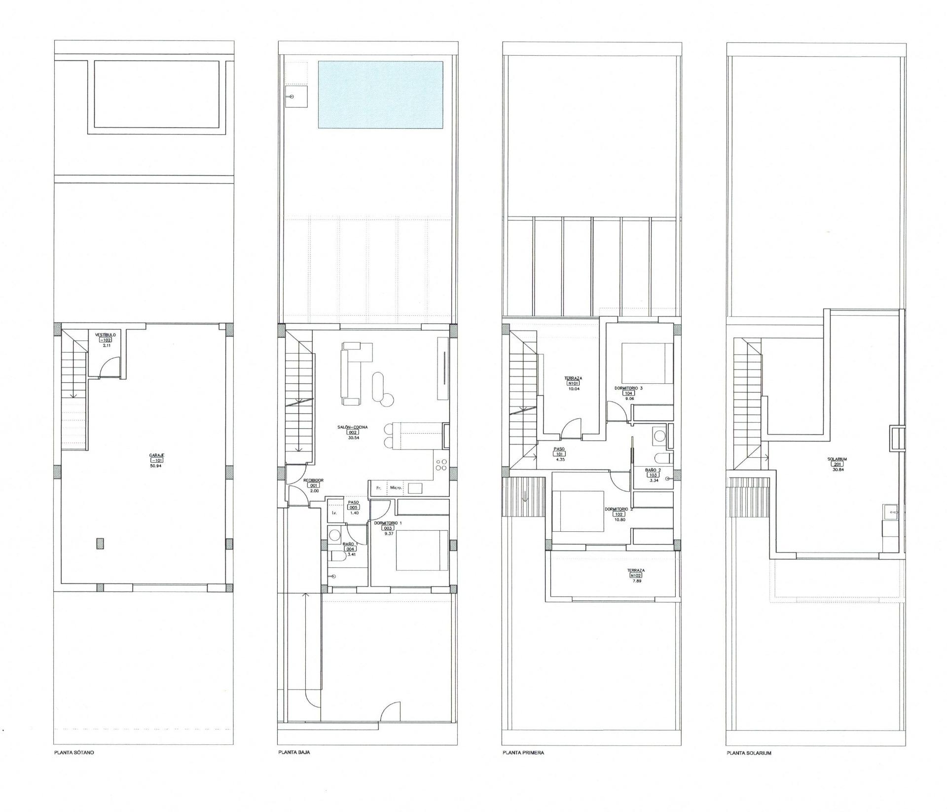
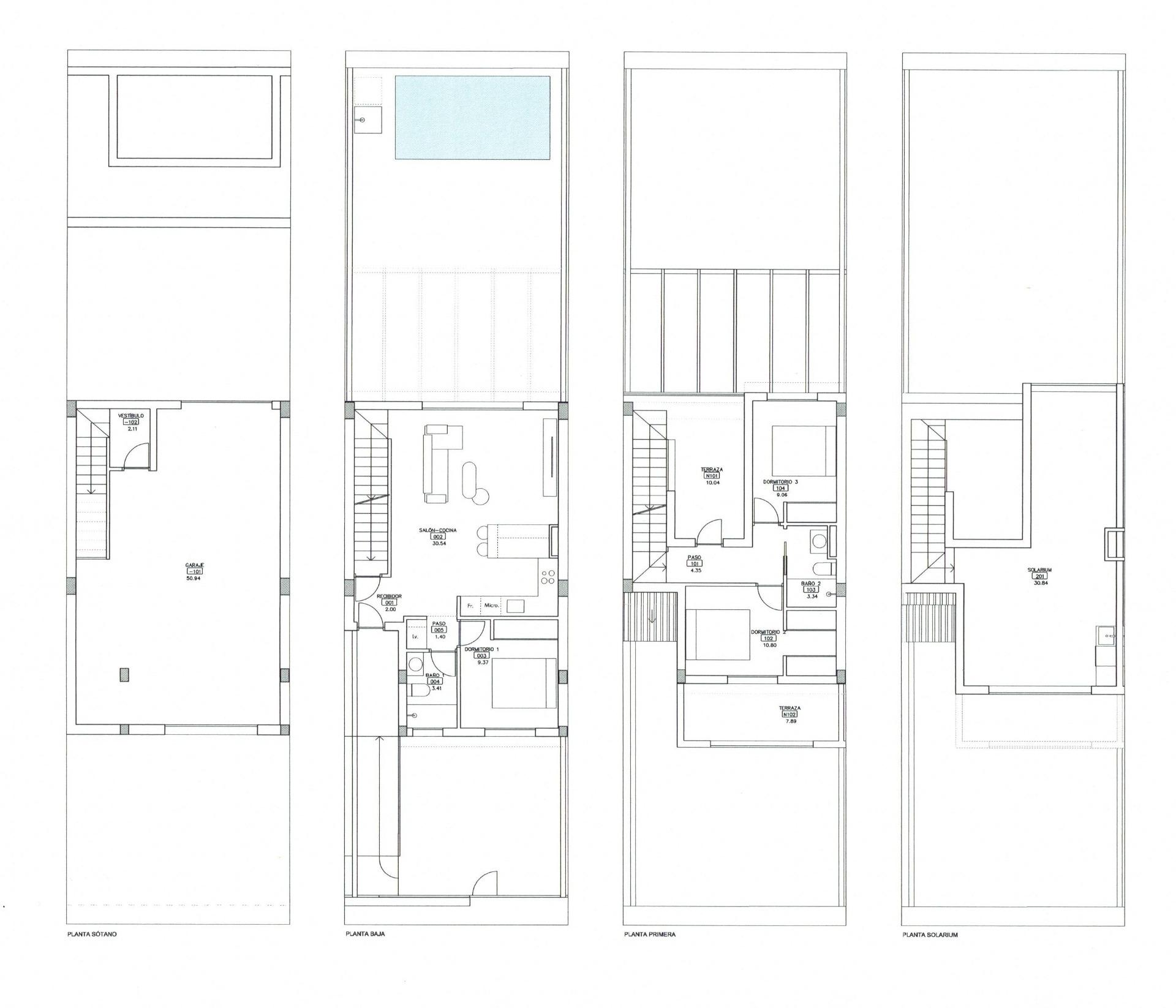
Nybyggede rækkehuse ved La Serena Golf i Los Alcázares Førsteklasses beliggenhed ved golfbanen og havet Oplev et eksklusivt boligkompleks med 31 nybyggede rækkehuse beliggende ved La Serena Golf i Los Alcázares, kun 600 m fra Mar Menor. Beliggende i hjertet af Costa Cálida kombinerer denne privilegerede beliggenhed golf, strand og middelhavslivsstil. Med alle faciliteter i nærheden og fremragende vejadgang er det det ideelle sted til både ferie og helårsbeboelse. Moderne huse med privat pool og solterrasse på taget Hvert hus har et stilfuldt, moderne design og lyse indvendige rum. Husene er indrettet på tre niveauer plus solterrasse på taget, hvilket giver maksimal komfort og privatliv: Kælder med privat garage til 2 biler og adgang til en gårdhave Stueetage med åbent opholdsstue og køkken, der fører ud til en have og privat pool, 1 soveværelse og 1 badeværelse Første sal med 2 soveværelser, 1 badeværelse og 2 terrasser Tagterrasse med sommerkøkken, ideel til afslapning og nydelse af panoramaudsigten Øst- og vestorientering sikrer fremragende naturligt lys og udendørs ophold hele dagen. Høj kvalitet og komfort Disse huse er bygget efter de højeste standarder og tilbyder førsteklasses faciliteter, herunder: Privat swimmingpool Kældergarage til 2 biler med motoriseret port Aerotermisk varmtvandssystem Fuldt installeret kanaliseret aircondition Møbleret og udstyret køkken Fuldt udstyrede badeværelser med møbler, spejle og brusevægge Sikkerhedsdør Bo mellem havet og golfbanen Dette eksklusive boligområde ligger midt i det frodige middelhavslandskab og tilbyder et fredeligt liv ved siden af Serena Golfbanen, en berømt 18-hullers bane omgivet af natur og rolige søer. Det varme, lave vand i Mar Menor er perfekt til svømning og vandsport som sejlads, paddle surf og kajak året rundt. Vigtige afstande: Strand (Mar Menor): 600 m La Serena Golf: ved siden af komplekset Los Alcázares centrum: 2 km Cartagena: 22 km Murcia by: 40 km Murcia lufthavn: 30 km Alicante lufthavn: 90 km Sikr dig din middelhavsstil Uanset om du er på udkig efter en permanent bolig, et feriehus eller en rentabel investering, tilbyder disse huse luksus, bekvemmelighed og en overlegen kyststil. Kontakt os i dag for at aftale en fremvisning og sikre dig dit nye hjem i Los Alcázares.

Egenskaber

Features

  • Privat Terrasse
  • Solterasse
  • dresser-drawers-5
    Pulterrum

Parking

  • Mere end én

Pool

  • Private pool

Security

  • Lukket Kompleks

Setting

  • Nær Havet
  • Nær Golf
  • Nær Skole
  • Nær Forretninger

Beliggende i

Købekraft

Beregn din månedlige afdrag på lån

Din forventede månedlige ydelse

Bliv forhåndsgodkendt

Bolig-udland samarbejder med Mortage Direct

Vi tilbyder vores kunder de bedst mulige boliglån til ejendomskøb i Spanien. Få det bedste spanske boliglån med Mortgage Direct.

Mere info

Købsomkostninger

Vores udgiftskalkulator giver et skøn over alle omkostninger forbundet med at købe et hus i Spanien. Brug kun disse tal som vejledning: De faktiske tal varierer afhængigt af ejendommen, ejendommens placering og den bank du vælger sammen med andre faktorer. Til det samlede beløb skal du tilføje dine afdrag på dit realkreditlån samt bankgebyrer, hvis din bank opkræver det.

Samlede udgifter

Du kan måske også lide disse boliger