Villa til salg i San Juan de Los Terreros

Bolig ID: RED-N8343

€395,495

3,242 €/m2


122
3
soveværelser
2
Badeværelser
258
Grundareal

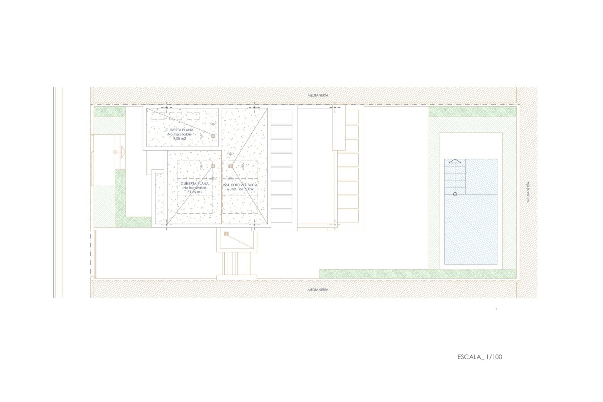
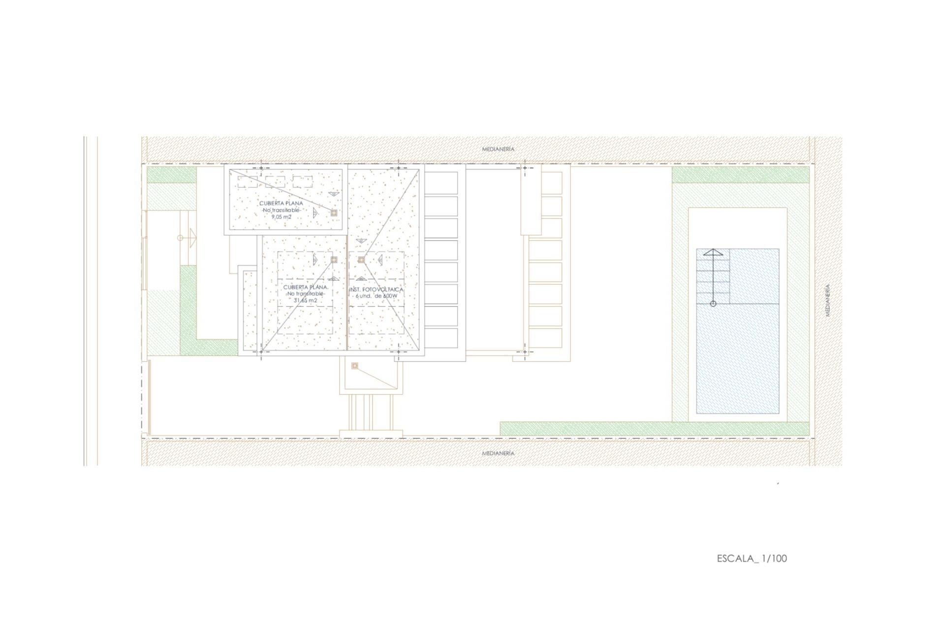
NYBYGGEDE VILLAER I SAN JUAN DE LOS TERREROS Den moderne og innovative arkitektur af moderne villaer skaber et boligkompleks i byen San Juan de los Terreros i Pulpí, Almería, i det sydlige Spanien. Disse omhyggeligt udformede boliger og boligkomplekset kombinerer et enestående niveau af design og kvalitet med de højeste standarder for bæredygtighed og velvære. Boligerne er omhyggeligt designet af det tekniske team af arkitekter, så lys, rummelighed og orientering giver hver bolig og grund en særlig karakter. Unikke rum, der åbner døren til en ny livsstil, som man kan nyde. Husenes fundament og struktur er udført i armeret beton og med ti års garanti. Facader, der er designet til at reducere husets energibehov, kombineret med forskellige materialer for at opnå en æstetik, der er konsistent med hensyn til sammensætning og farve, som det fremgår af infografikken. Rummelige terrasser udstyret med solide brystninger for at give sikkerhed på terrassens rækværk, hvilket giver amplitude og lysstyrke. De udvendige indhegninger af grunden vil blive behandlet med de samme materialer, som bruges i huset, hvilket sikrer integration i boligkomplekset. Ventilerede og isolerede flade tage på plader med forskellige overflader alt efter deres placering og brug. Indgangsdøren til huset bliver pansret. Dørene til det store soveværelse, de sekundære badeværelser og toiletterne vil have låse. Det udvendige tømrerarbejde består af vinduer og terrassedøre af lakeret aluminium med rullegardiner af aluminiumslameller, motoriserede i stuerne. Video-intercom-system, som garanterer individuel adgangskontrol til hvert af husene. Badeværelserne vil være udstyret med håndvask, toilet og bruser, og toiletterne vil have toilet og håndvask. Badeværelserne har sanitetsudstyr i moderne design, lavet af glaseret porcelæn med hvid finish, fra Roca-mærket og Gap-modellen, med krom eller matsort etgrebsarmatur at vælge imellem. Bruseafskærmningerne vil blive monteret med 8 mm hærdet glas med en længde på 80 cm. Hver præinstallation er designet til et system med op til 10 paneler, som kan installeres med en solcelleinverter, der er forbundet med hjemmets elnet for at minimere elforbruget. Disse paneler vil blive integreret på taget i installationsområdet, skjult fra boligens yderside. Lufttilførslen til boligerne sikres ved at indbygge et mikroventilationssystem i vinduerne i stuer og soveværelser. Uafhængig røgudsugning til køkkenemhætten. En præinstallation af hjemmeautomatisering i boligen med forberedelse til en fremtidig installation af hjemmeautomatisering til styring af rumklima og opvarmning, persienner og mulige indbrudsalarmsystemer. Præinstallation af videoovervågning i parkeringsområdet og de indre zoner på grunden. Hver bolig vil have et fuldt installeret køkken i mat hvid, i henhold til design, med et GOLA-system. De indvendige skabe vil være hvide, med hængslede døre og skuffer med bremser under den keramiske kogeplade, klar til at installere synlige apparater. Hvidevarer er ikke inkluderet. Soveværelser med indbyggede garderobeskabe leveres med skydedøre i mat hvid. Disse boliger vil være energieffektive og -besparende samt have lav forurening. De er designet med fokus på større effektivitet for lavere energiforbrug, hvilket fremmer rationelt energiforbrug, samtidig med at der tages hensyn til miljøet, kvaliteten og klimakomforten i boligen. Glas med lav emissivitet forhindrer varmetab udadtil, hvilket resulterer i økonomiske besparelser ved at holde på varmen i boligen om vinteren og forhindre varmen i at trænge ind om sommeren. HVAC- og varmtvandssystemerne er designet med individuelle systemer for at maksimere forbruget og effektiviteten i hver bolig. San Juan de los Terreros er en kystby, der hører til Pulpí kommune. Den er kendt for sine storslåede strande, de sidste i Andalusien. Ud for San Juan de los Terreros' kyst ligger der to små holme af vulkansk natur, som udgør naturmonumentet Isla de Terreros-Isla Negra. Byens mest karakteristiske monument er San Juan de los Terreros-slottet, der blev bygget i 1764 på et forbjerg, hvorfra man på klare dage kan se en stor del af Almerías og Murcias kystlinjer. Integreret i roen og skønheden i sin egen natur, badet af strande og bugter med krystalklart vand, der er klassificeret som nogle af de bedste i Spanien. Omgivet af beskyttede naturlandskaber, der fylder os med ro og samtidig lader os op med energi takket være et levende gastronomisk, socialt og sportsligt tilbud. Eksklusive restauranter, sportsklubber og selvfølgelig fremragende golfbaner med udsigt over havet som Aguilón Golf. En perfekt destination at nyde med familien hele året rundt.

Egenskaber

Climate control

  • A/C

Features

  • Privat Terrasse

Parking

  • Privat

Pool

  • Private pool

Security

  • Lukket Kompleks

Setting

  • Nær Havet
  • Nær Skole
  • Nær Forretninger

Beliggende i

Købekraft

Beregn din månedlige afdrag på lån

Din forventede månedlige ydelse

Bliv forhåndsgodkendt

Bolig-udland samarbejder med Mortage Direct

Vi tilbyder vores kunder de bedst mulige boliglån til ejendomskøb i Spanien. Få det bedste spanske boliglån med Mortgage Direct.

Mere info

Købsomkostninger

Vores udgiftskalkulator giver et skøn over alle omkostninger forbundet med at købe et hus i Spanien. Brug kun disse tal som vejledning: De faktiske tal varierer afhængigt af ejendommen, ejendommens placering og den bank du vælger sammen med andre faktorer. Til det samlede beløb skal du tilføje dine afdrag på dit realkreditlån samt bankgebyrer, hvis din bank opkræver det.

Samlede udgifter

Du kan måske også lide disse boliger