Penthouse til salg i Estepona

Bolig ID: RED-N8137

€1,250,000

11,468 €/m2


109
3
soveværelser
2
Badeværelser
0
Grundareal

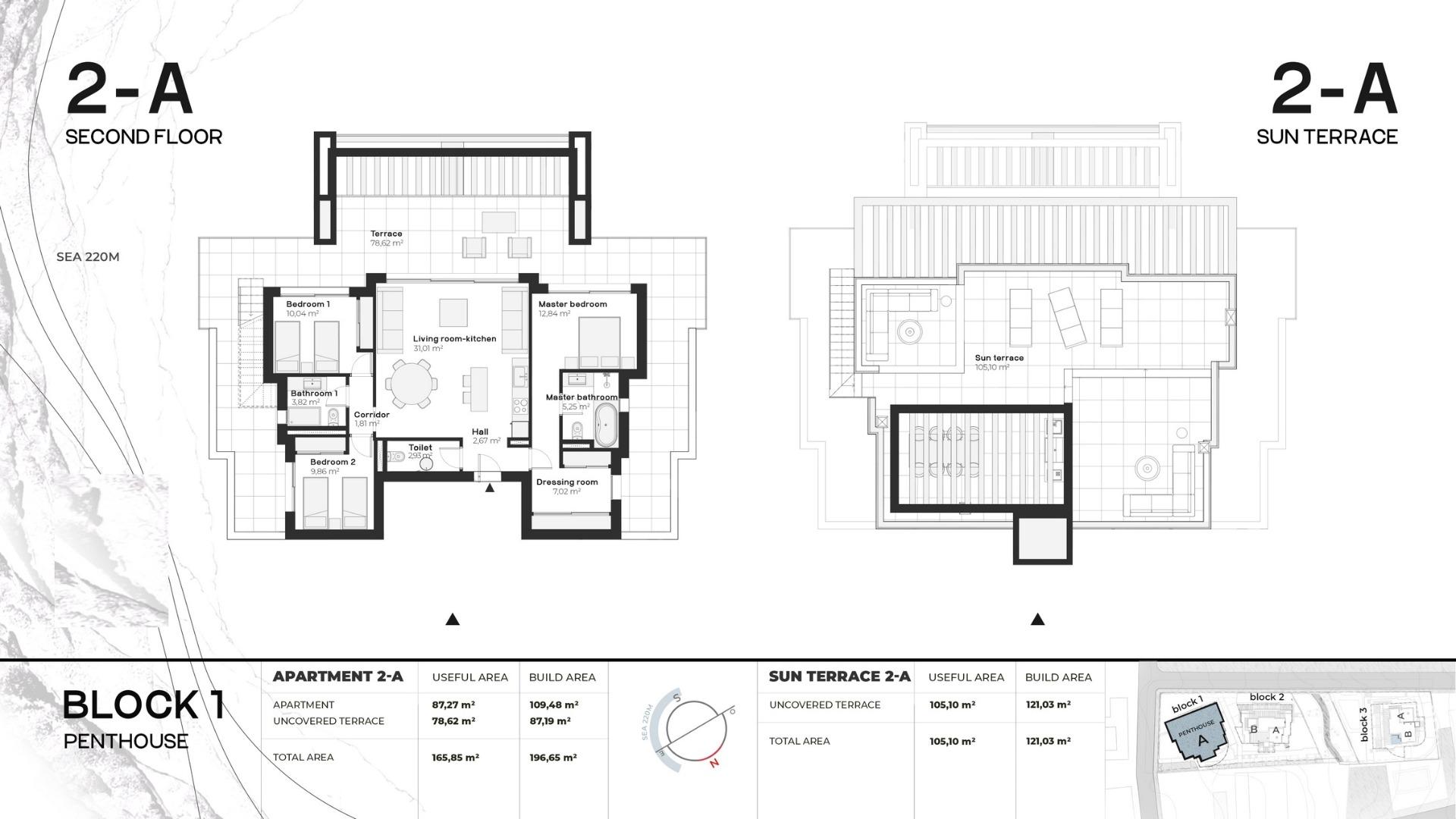
NYBYGGET BOLIGKOMPLEKS NÆR ESTEPONA Nybygget boligkompleks med luksuslejligheder i Buenas Noches, nær Estepona. Komplekset ligger kun 220 m fra stranden og består af 3 blokke, hver med 5 lejligheder, i et lukket område med videoovervågning, hvilket giver maksimal privatliv og personlig komfort. Dette nybyggede projekt byder på gennemtænkte moderne layouts og panoramavinduer, hvilket er usædvanligt på dette sted. Projektet udmærker sig ved brug af materialer af høj kvalitet og førsteklasses konstruktion. Den enestående beliggenhed og den gennemtænkte arkitektur vil sikre de kommende beboere en uforglemmelig udsigt fra deres vinduer og terrasser samt mulighed for at opleve solopgangen hver morgen med havkysten som baggrund. Buenas Noches er et lille, veletableret område i Estepona. Det ligger på begge sider af motorvej A-7, ca. 5 km vest for Estepona by, i retning af Sabinillas og Puerto Duquesa. Der ligger Hotel Pedro Paloma, som er åbent om sommeren, ved siden af kystvejen, og der er også et kommercielt center, en tankstation og en fodgængerbro. De fleste ejendomme har god havudsigt, da området er naturligt kuperet. Der er en lille, rolig strand ved navn Playa de la Galera eller Playa Buenas Noches, og i den ene ende af den ligger Islote de las Palomas.

Egenskaber

Climate control

  • A/C

Features

  • lift
    Elevator
  • Privat Terrasse
  • Solterasse
  • bus-2
    Tæt På Transport
  • dresser-drawers-5
    Pulterrum

Parking

  • Privat

Pool

  • Fælles

Security

  • Lukket Kompleks

Setting

  • Nær Havet
  • Nær Skole
  • Nær Forretninger

Udsigt

  • Hav

Beliggende i

Købekraft

Beregn din månedlige afdrag på lån

Din forventede månedlige ydelse

Bliv forhåndsgodkendt

Bolig-udland samarbejder med Mortage Direct

Vi tilbyder vores kunder de bedst mulige boliglån til ejendomskøb i Spanien. Få det bedste spanske boliglån med Mortgage Direct.

Mere info

Købsomkostninger

Vores udgiftskalkulator giver et skøn over alle omkostninger forbundet med at købe et hus i Spanien. Brug kun disse tal som vejledning: De faktiske tal varierer afhængigt af ejendommen, ejendommens placering og den bank du vælger sammen med andre faktorer. Til det samlede beløb skal du tilføje dine afdrag på dit realkreditlån samt bankgebyrer, hvis din bank opkræver det.

Samlede udgifter

Du kan måske også lide disse boliger