Lejlighed til salg i Torrevieja

Bolig ID: RED-N7101

€344,000

4,845 €/m2


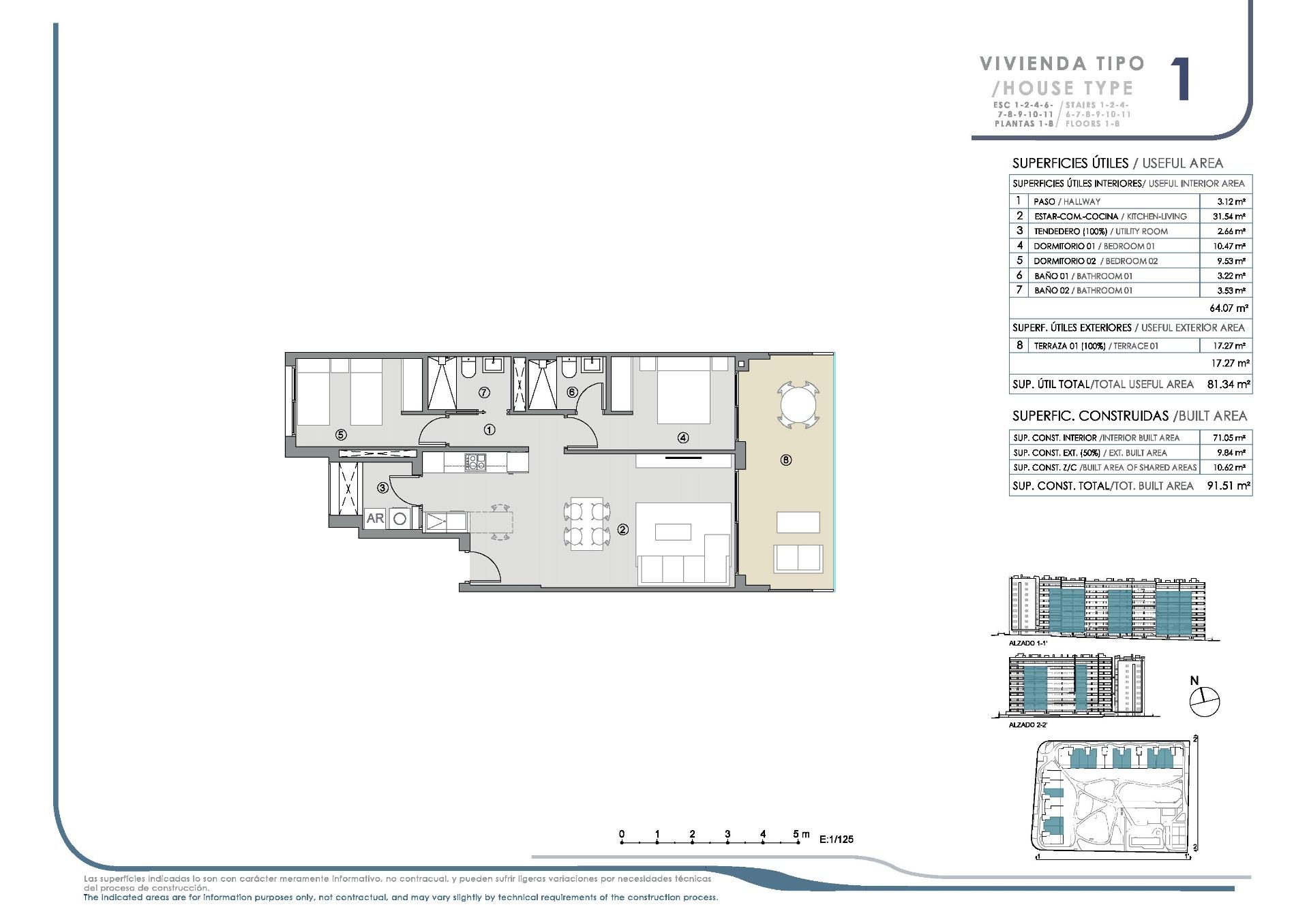
71
2
soveværelser
2
Badeværelser
0
Grundareal

NYBYGGET BOLIGKOMPLEKS I PUNTA PRIMA Nybygget boligkompleks med 220 lejligheder i Punta Prima, Torrevieja. Lejligheder med 2 og 3 soveværelser og 2 badeværelser, åbent køkken med stue, indbyggede garderobeskabe, alle med store terrasser. Lejligheder i stueetagen med have og penthouselejligheder med solarium. Alle boliger leveres med en underjordisk parkeringsplads. Boligområdet har haveområder med swimmingpools og paddle tennisbane. Børnene kan nyde deres egen børnepool, samt et legeområde for børn. Punta Prima, der ligger kun 5 km fra Torrevieja, er kendetegnet ved gode kommunikations- og sundhedsinfrastrukturer, nærheden til Alicante lufthavn og antallet af tjenester, der er åbne hele året rundt. Kun 10 km væk finder vi golfbanerne Villamartín, Campoamor, Las Ramblas, Las Colinas og Lo Romero samt de kommercielle centre La Zenia og Habaneras.

Egenskaber

Features

  • Tennisbane
  • Solterasse
  • Paddle Tennis
  • dresser-wardrobe
    Indbyggede Garderobeskabe

Parking

  • Parkeringskælder

Setting

  • Nær Golf
  • Nær Marina

Beliggende i

Købekraft

Beregn din månedlige afdrag på lån

Din forventede månedlige ydelse

Bliv forhåndsgodkendt

Bolig-udland samarbejder med Mortage Direct

Vi tilbyder vores kunder de bedst mulige boliglån til ejendomskøb i Spanien. Få det bedste spanske boliglån med Mortgage Direct.

Mere info

Købsomkostninger

Vores udgiftskalkulator giver et skøn over alle omkostninger forbundet med at købe et hus i Spanien. Brug kun disse tal som vejledning: De faktiske tal varierer afhængigt af ejendommen, ejendommens placering og den bank du vælger sammen med andre faktorer. Til det samlede beløb skal du tilføje dine afdrag på dit realkreditlån samt bankgebyrer, hvis din bank opkræver det.

Samlede udgifter

Du kan måske også lide disse boliger