Byhus/Rækkehus til salg i Orihuela Costa

Bolig ID: RED-N6851

€358,000

3,691 €/m2


97
2
soveværelser
2
Badeværelser
178
Grundareal

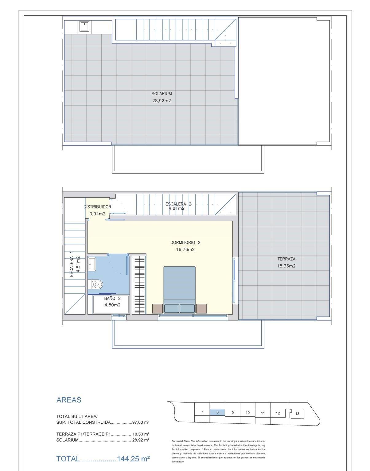
NYBYGGEDE RÆKKEHUSE I ORIHUELA COSTA Nybyggede rækkehuse i Las Filipinas, Orihuela Costa. Komplekset af 12 rækkehuse, hver med 2 soveværelser, 2 badeværelser, for- og baggårde og deres egen tagterrasse. I stueetagen er der en lys stue med åbent køkken i åbent plan, et rummeligt soveværelse med indbygget garderobe og et badeværelse. På første sal er der et andet stort soveværelse med indbygget garderobe og et badeværelse. Fra soveværelset er der udgang til en solrig altan med plads til terrassemøbler. Ovenpå har I tagterrassen, hvor I kan placere et udendørs køkken, jacuzzi og chill-out område. Ejendommene leveres med præinstalleret kanal A/C, monterede badeværelser, aerotermisk varmtvandssystem, intercom, LED-belysningspakke, udendørs køkken og parkeringsplads. Privat swimmingpool 5,5 x 2,5 m . Udvikling beliggende nær tre populære golfbaner (Villamartin, Las Ramblas og Campoamor), kun fem minutter fra de bedste strande i Orihuela Costa. Inden for et par minutters gang finder du alle tjenester såsom barer, restauranter og butikker, La Fuente indkøbscenter. Las Filipinas ligger omkring 10 minutters gang fra den berømte Villamartin Plaza & Golfbane, hvor du finder mange barer og restauranter, supermarked, banker, en taxaholdeplads og det lokale busstoppested. De gyldne Orihuela Costa strande er kun 5 minutters kørsel væk, ligesom det nye Zenia Boulevard indkøbscenter (det største indkøbscenter i Alicante provinsen med den største Primark tøjbutik i Europa). Der er 3 andre golfbaner alle inden for 5 minutters kørsel. Der er tennisbaner og tennisundervisning på det nærliggende Campoamor-hotel. Alicante & Murcia lufthavne er 45 minutters kørsel væk.

Egenskaber

Climate control

  • A/C

Features

  • Tennisbane
  • Jacuzzi

Setting

  • Nær Golf
  • Nær Forretninger
  • Nær Havet
  • shanty-house-village-1
    Nær By
  • Nær Marina

Beliggende i

Købekraft

Beregn din månedlige afdrag på lån

Din forventede månedlige ydelse

Bliv forhåndsgodkendt

Bolig-udland samarbejder med Mortage Direct

Vi tilbyder vores kunder de bedst mulige boliglån til ejendomskøb i Spanien. Få det bedste spanske boliglån med Mortgage Direct.

Mere info

Købsomkostninger

Vores udgiftskalkulator giver et skøn over alle omkostninger forbundet med at købe et hus i Spanien. Brug kun disse tal som vejledning: De faktiske tal varierer afhængigt af ejendommen, ejendommens placering og den bank du vælger sammen med andre faktorer. Til det samlede beløb skal du tilføje dine afdrag på dit realkreditlån samt bankgebyrer, hvis din bank opkræver det.

Samlede udgifter

Du kan måske også lide disse boliger