Lejlighed til salg i Orihuela Costa

Bolig ID: RED-N5811

€469,000

4,989 €/m2


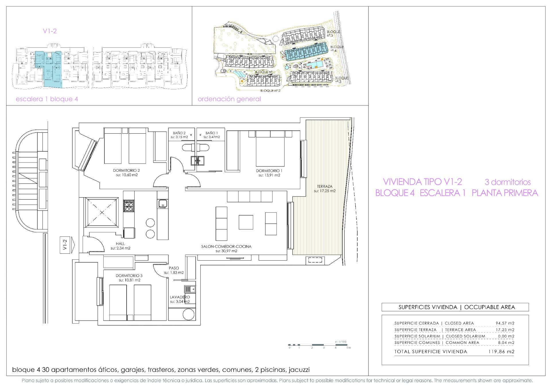
94
3
soveværelser
2
Badeværelser
0
Grundareal

NYBYGNING BOLIG VED PLAYA FLAMENCA!!! Fra en veletableret udvikler er vi stolte af at tilbyde dette netop frigivne nye boligområde kun 500 m væk fra havet ved populære Playa Flamenca (Orihuela Costa). Bolig med dejlige fælles pools, jacuzzier og dejlige fælles haver. Alle tjenester som supermarkeder, barer og restauranter osv. er inden for gåafstand på et meget centralt sted ved Orihuela Costa. Stort udvalg af typer at vælge imellem: 2, 3 eller 4 værelses lejligheder. Lave etager med private haver eller øverste etager med private solarier. Alle huse leveres med parkeringsplads og depotrum inkluderet i prisen. Zenia Boulevard indkøbscenter 1 km væk og adskillige golfbaner som Villamartin, Campoamor inden for 5 km fra dette boligområde vil være en ideel beliggenhed for din ferie eller dit permanente ophold.

Egenskaber

Climate control

  • A/C

Features

  • lift
    Elevator
  • Privat Terrasse
  • bus-2
    Tæt På Transport
  • dresser-drawers-5
    Pulterrum

Parking

  • Privat

Pool

  • Fælles

Security

  • Lukket Kompleks

Setting

  • Nær Havet
  • Nær Skole
  • Nær Forretninger

Beliggende i

Købekraft

Beregn din månedlige afdrag på lån

Din forventede månedlige ydelse

Bliv forhåndsgodkendt

Bolig-udland samarbejder med Mortage Direct

Vi tilbyder vores kunder de bedst mulige boliglån til ejendomskøb i Spanien. Få det bedste spanske boliglån med Mortgage Direct.

Mere info

Købsomkostninger

Vores udgiftskalkulator giver et skøn over alle omkostninger forbundet med at købe et hus i Spanien. Brug kun disse tal som vejledning: De faktiske tal varierer afhængigt af ejendommen, ejendommens placering og den bank du vælger sammen med andre faktorer. Til det samlede beløb skal du tilføje dine afdrag på dit realkreditlån samt bankgebyrer, hvis din bank opkræver det.

Samlede udgifter

Du kan måske også lide disse boliger