Kommercielle Lokaler til salg i Estepona

Bolig ID: R5351233

€215,000

2,194 €/m2


98
2
soveværelser
0
Badeværelser
0
terrace
98
Grundareal

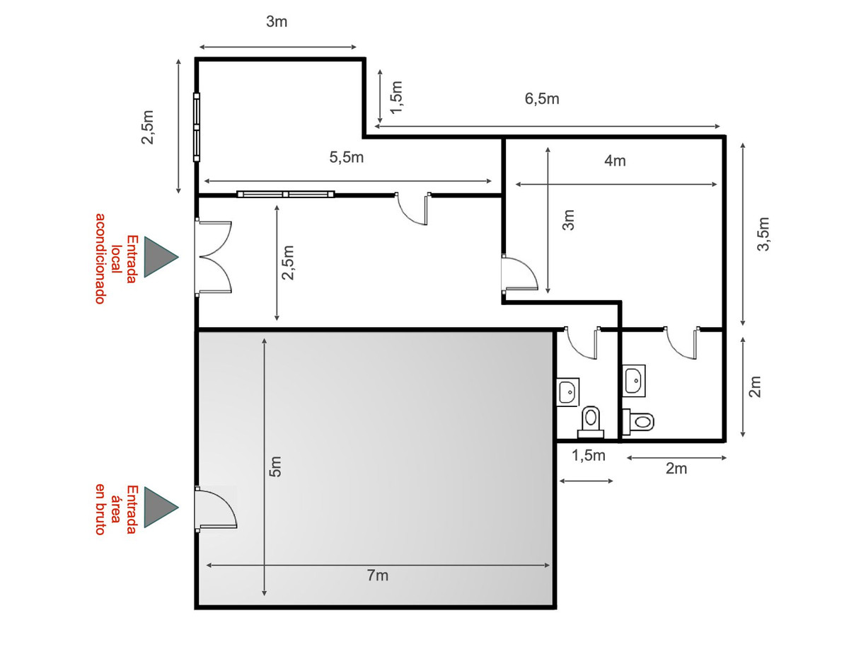
A unique opportunity in Estepona! Commercial premises with potential for conversion into a home.
If you're looking for a blank canvas with endless possibilities, these 98 m2 premises are for you. Located in a quiet residential area just 5 minutes from the heart of Estepona, this space stands out for its versatility and strategic location.
What makes this property special:
. Smart Layout: Currently, the premises are divided into two areas of approximately 49 m2 each. Half is fully fitted out and ready to use, whilst the other half is in its raw state, ideal for designing from scratch.
. Residential Potential: Following the trend of neighbouring premises, this space is ideal for transforming into a modern loft-style home or maintaining a hybrid format of home and business.
. Premium Location: Enjoy the peace of a residential area without sacrificing proximity to the town centre and all its amenities.
Whether you wish to start your own business, create your dream home, or both, this property is the smart investment you've been looking for.
Note: Property registered as commercial premises. Any plans to change the use to residential must be verified by the buyer in accordance with current regulations issued by Estepona Town Council.
Estimated costs payable by the buyer: The purchase is subject to Property Transfer Tax (ITP) (Law 5/2021 on Assigned Taxes), the standard maximum rate of which is 7%. The taxable base will be the higher of the registered price and the cadastral reference value (Art. 10 TRLITPAJD). Reduced rates may apply depending on the buyer's personal circumstances. The costs of the public deed and registration in the Land Registry are governed by official tariffs (RD 1426/1989) and (RD 1427/1989) respectively. An indicative estimate of between €500 and €2,000 for notary fees and between €250 and €1,500 for registration fees. Administrative agency (if engaged voluntarily, fees are unregulated): Estimated between €300 and €500. Municipal capital gains tax (IIVTNU) is payable by the seller (Art. 104 TRLRHL). Estimated total cost to the buyer: 215.000€. (+10%) This estimate is indicative and is provided in accordance with Art. 20.1.c) TRLGDCU. The final amount will depend on the specific circumstances of the transaction and the buyer. Brokerage fees are payable by the seller.


Egenskaber

Climate control

  • Centralvarme

Features

  • wood-material-1
    Trægulv

Furniture

  • Umøbleret

Orientation

  • Sydvest

Beliggende i

Købekraft

Beregn din månedlige afdrag på lån

Din forventede månedlige ydelse

Bliv forhåndsgodkendt

Bolig-udland samarbejder med Mortage Direct

Vi tilbyder vores kunder de bedst mulige boliglån til ejendomskøb i Spanien. Få det bedste spanske boliglån med Mortgage Direct.

Mere info

Købsomkostninger

Vores udgiftskalkulator giver et skøn over alle omkostninger forbundet med at købe et hus i Spanien. Brug kun disse tal som vejledning: De faktiske tal varierer afhængigt af ejendommen, ejendommens placering og den bank du vælger sammen med andre faktorer. Til det samlede beløb skal du tilføje dine afdrag på dit realkreditlån samt bankgebyrer, hvis din bank opkræver det.

Samlede udgifter

Du kan måske også lide disse boliger