Land til salg i Estepona

Bolig ID: R5291101

€350,000

€/m2


0
0
soveværelser
0
Badeværelser
0
terrace
880
Grundareal

Important Notice: In order for us to provide you with the highest level of service, we kindly request that you include your email address and telephone number when submitting your enquiry. Thank you.

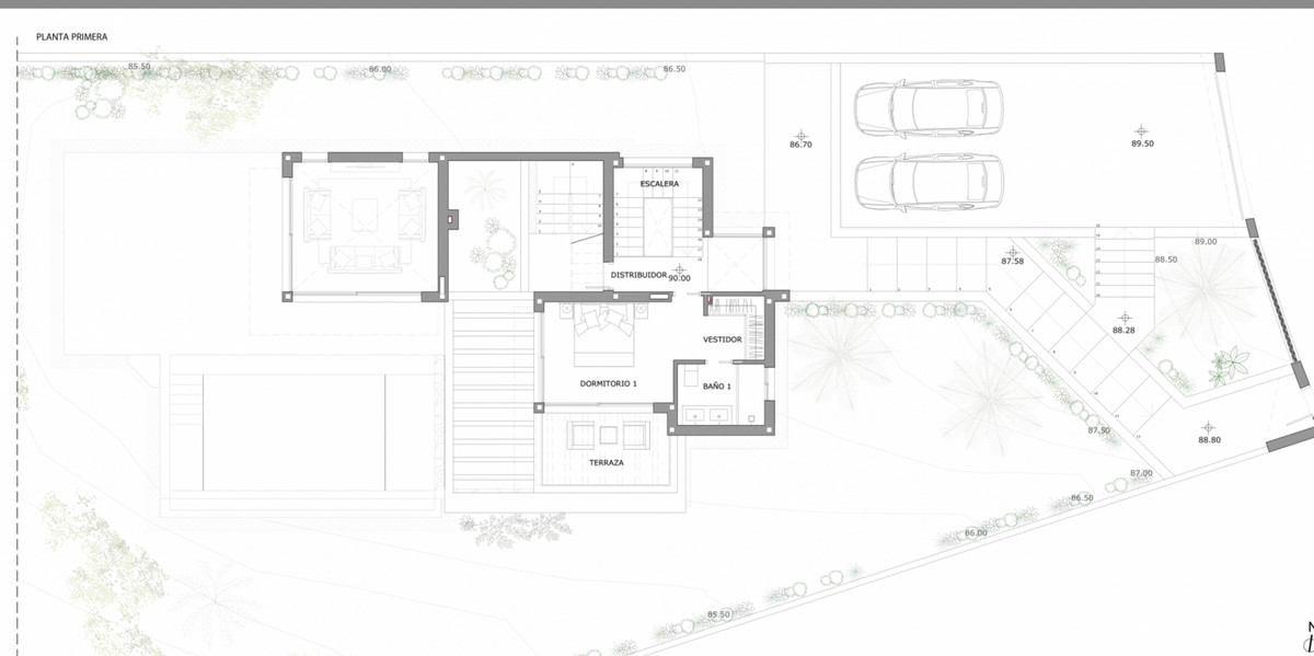
Prime 880 m² Building Plot with project and structure in Estepona with sea and golf views – Ideal for Custom or Investment Development
This 880.33 m² plot in a growing residential area of Estepona presents an excellent opportunity to develop a private villa just minutes from the beach, golf courses, and all local amenities.

The property includes existing foundations, giving the future owner two clear options:
Option 1: Build a villa based on the existing structural foundations (execution project available).
Option 2: Remove the current foundations and develop a completely new design from scratch.

In either case, the buyer will need to apply for a building license through the local town hall.
Located in a quiet yet well-connected part of Estepona, this plot is ideal for private buyers, developers, or investors looking to build a modern villa with a pool, garden, and open living spaces. With good sun exposure and easy access to Estepona town, Marbella, Puerto Banús, and Málaga Airport, the location offers long-term value and lifestyle appeal.

OUR AGENCY IS REDEFINING THE REAL ESTATE EXPERIENCE WITH A DEDICATION TO SEAMLESS, CLIENT-CENTRIC SERVICE.
Our mission goes far beyond property transactions — we deliver a complete, elevated journey into property ownership, designed to make every step as smooth and stress-free as possible.

With our specialized Visa support, we simplify international relocation by expertly handling the legal and administrative complexities for you and your family. To make your start in Spain even easier, we also offer complimentary N.I.E. assistance, removing bureaucratic obstacles and saving you valuable time.
we understand that every investment matters. That's why our in-house mortgage brokerage team works tirelessly to secure the most competitive terms tailored to your unique financial profile — making your property dreams more attainable than ever.

Our approach is clear and direct: you deal exclusively with us, without unnecessary intermediaries. This ensures a transparent, streamlined buying process. We also provide complimentary legal guidance to safeguard your investment and guarantee your interests are protected throughout.
you benefit from exclusive access to premium listings, offered by our dedicated agents who possess deep market insight and access to off-market opportunities. This is not just about finding a property — it's about creating a personalized experience that fits your lifestyle and long-term vision.

we don't just sell properties — we help you build your future, with care, clarity, and confidence.
Key features:

Plot size: 880.33 m²
Suitable for building a villa with pool
Quiet residential setting with sea and golf views
Close to golf, beaches, and services
Excellent investment potential

Don't miss this chance to build your ideal home in one of southern Spain's most attractive coastal locations.
LET US MOVE YOU!


Egenskaber

Orientation

  • Sydvest

Setting

  • Nær Havn/Marina
  • Nær Forretninger
  • Nær Havet
  • shanty-house-village-1
    Nær By
  • Nær Skole

Udsigt

  • Hav
  • Bjerge
  • Golf
  • Landområde
  • Panoramisk

Beliggende i

Købekraft

Beregn din månedlige afdrag på lån

Din forventede månedlige ydelse

Bliv forhåndsgodkendt

Bolig-udland samarbejder med Mortage Direct

Vi tilbyder vores kunder de bedst mulige boliglån til ejendomskøb i Spanien. Få det bedste spanske boliglån med Mortgage Direct.

Mere info

Købsomkostninger

Vores udgiftskalkulator giver et skøn over alle omkostninger forbundet med at købe et hus i Spanien. Brug kun disse tal som vejledning: De faktiske tal varierer afhængigt af ejendommen, ejendommens placering og den bank du vælger sammen med andre faktorer. Til det samlede beløb skal du tilføje dine afdrag på dit realkreditlån samt bankgebyrer, hvis din bank opkræver det.

Samlede udgifter

Du kan måske også lide disse boliger