Byhus/Rækkehus til salg i Estepona

Bolig ID: R5284240

€799,000

3,196 €/m2


250
8
soveværelser
4
Badeværelser
0
terrace
112
Grundareal

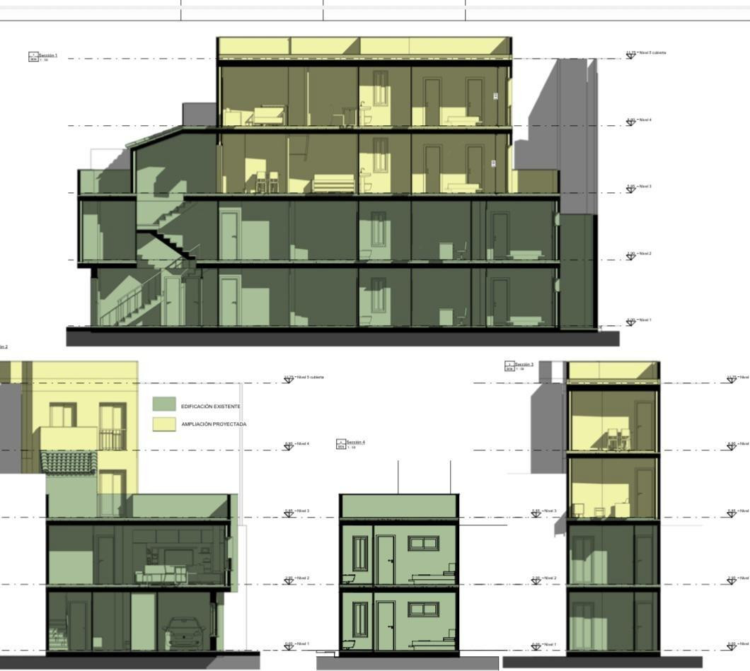
Fantastic opportunity to renovate in one of Estepona's most central areas, on a 122 m2 plot with a current 250 m2 building distributed across the ground, first, and second floors, and the possibility of adding another floor.
A permit is in place to add an attic level, which would bring the total to four levels. A detailed project report is available.

The current layout is as follows:
- Ground Floor (85 m2): spacious living room, four bedrooms, and two bathrooms. Spaces with abundant natural light and excellent potential for redistribution to suit your needs.

- First Floor (92 m2): living room, four bedrooms, and two bathrooms, offering great versatility to create spacious rooms or even two separate units.

- Second Floor: features two large terraces with incredible potential:
• 54 m2 terrace ideal for a chill-out area, private garden, or pool/solarium.

• 33 m2 terrace, perfect for an outdoor dining area or reading nook with views.

Project and permit for the renovation and expansion of 3 dwellings!

This property stands out for its large built area, its versatility, and the possibility of adding another floor, making it an exceptional investment for a family residential project, development, or holiday rental.

Don't miss this opportunity!


Egenskaber

Climate control

  • Centralvarme

Condition

  • Meget God

Features

  • wood-material-1
    Trægulv

Furniture

  • Umøbleret

Utilities

  • Drikkevand

Beliggende i

Købekraft

Beregn din månedlige afdrag på lån

Din forventede månedlige ydelse

Bliv forhåndsgodkendt

Bolig-udland samarbejder med Mortage Direct

Vi tilbyder vores kunder de bedst mulige boliglån til ejendomskøb i Spanien. Få det bedste spanske boliglån med Mortgage Direct.

Mere info

Købsomkostninger

Vores udgiftskalkulator giver et skøn over alle omkostninger forbundet med at købe et hus i Spanien. Brug kun disse tal som vejledning: De faktiske tal varierer afhængigt af ejendommen, ejendommens placering og den bank du vælger sammen med andre faktorer. Til det samlede beløb skal du tilføje dine afdrag på dit realkreditlån samt bankgebyrer, hvis din bank opkræver det.

Samlede udgifter

Du kan måske også lide disse boliger