
5,114 €/m2
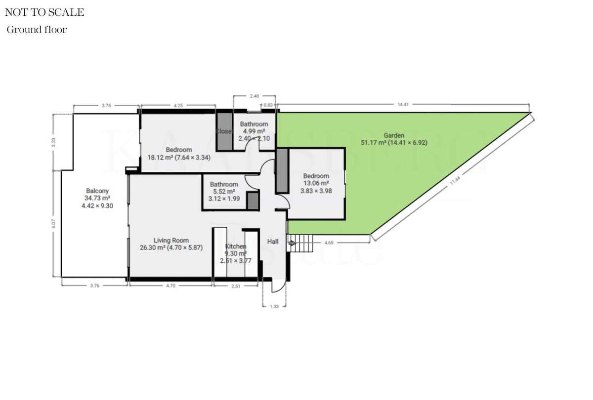
Velkommen til denne imponerende stuelejlighed i det prestigefyldte Artola Homes, som byder på fire soveværelser, tre badeværelser og en enestående rumfornemmelse fordelt over to plan.
Perfekt beliggende direkte ud til golfbanen, hvorfra boligen har fri udsigt over fairways - en fredelig og malerisk kulisse til hverdagen.
Stueetagen rummer en lys og rummelig stue- og spisestue i åben planløsning, hvor store skydedøre forbinder rummet med den private terrasse - det ideelle sted at slappe af og nyde den betagende udsigt over golfbanen.
Det fuldt udstyrede køkken forener moderne stil med hverdagens funktionalitet og fungerer som hjemmets naturlige samlingspunkt.
På denne etage finder du også det elegante master-soveværelse med eget en-suite badeværelse og direkte adgang til terrassen, samt endnu et rummeligt soveværelse med adgang til en privat have og et ekstra badeværelse til gæster og familie.
Underetagen åbner sig til et stort, multifunktionelt opholdsrum, der i øjeblikket anvendes som lounge, men som rummer utallige muligheder - lige fra spillerum og hjemmebiograf til familiestue.
Her finder du yderligere to soveværelser samt et tredje rum, der i dag fungerer som opbevaring, men nemt kan omdannes til fitnessrum, kontor eller hobbyrum.
Et mindre depotrum giver ekstra praktisk opbevaring og holder hjemmet organiseret og funktionelt.
Boligen er gennemtænkt og udført i høj kvalitet og forener komforten ved at bo i stueplan med de generøse rammer, man normalt kun finder i en familiebolig.
Som en del af Artola Homes får beboerne adgang til fremragende fællesfaciliteter, herunder smukke haver, en stor infinity-pool med separat børnepool, en legeplads og sikker parkering. Til velvære og fritid er der desuden indendørs pool, moderne fitnessrum og spa-faciliteter, hvilket gør området lige så afslappende, som det er praktisk. Alt dette findes i et trygt, indhegnet område, der sikrer både komfort og ro i hverdagen.
Beliggenheden er ideel - tæt på gyldne sandstrande, golfbaner, indkøbsmuligheder og restauranter. Artola Homes ligger desuden blot få skridt fra den charmerende Cabopino-havn med sin livlige atmosfære, hyggelige spisesteder og en af Costa del Sols mest maleriske marinaer.
Uanset om du søger en permanent bolig, et ferieophold eller en attraktiv investering, er denne lejlighed en ejendom, der skiller sig ud.
Egenskaber
Climate control
-
A/C
-
Gulvvarme
Condition
-
Meget God
-
NyByggeri
Features
-
Overdækket Terrasse
-
Elevator
-
Indbyggede Garderobeskabe
-
Tæt På Transport
-
Privat Terrasse
-
Motionsrum
-
Pulterrum
-
Vaskehus
-
En-Suite Badeværelse
-
Marmorgulv
-
Barbeque
-
Termoruder
-
Optisk Fiber
Furniture
-
Fuldt møbleret
Garden
-
Fælles
-
Privat
-
Anlagt
-
Nem vedligeholdelse
Kitchen
-
Fuldt Udstyret
Orientation
-
Syd
-
Sydvest
Parking
-
Fælles
-
Privat
Pool
-
Fælles
Security
-
Lukket Kompleks
-
Elektriske skodder
Setting
-
Nær Golf
-
Nær Havet
-
Nær Marina
-
Aflukket boligområde
Utilities
-
Elektricitet
Udsigt
-
Bjerge
-
Golf
Beliggende i
Købekraft
Beregn din månedlige afdrag på lån
Din forventede månedlige ydelse
Bliv forhåndsgodkendtBolig-udland samarbejder med Mortage Direct
Vi tilbyder vores kunder de bedst mulige boliglån til ejendomskøb i Spanien. Få det bedste spanske boliglån med Mortgage Direct.
Mere infoKøbsomkostninger
Vores udgiftskalkulator giver et skøn over alle omkostninger forbundet med at købe et hus i Spanien. Brug kun disse tal som vejledning: De faktiske tal varierer afhængigt af ejendommen, ejendommens placering og den bank du vælger sammen med andre faktorer. Til det samlede beløb skal du tilføje dine afdrag på dit realkreditlån samt bankgebyrer, hvis din bank opkræver det.