Villa til salg i Atalaya

Bolig ID: R5142733

€1,790,000

5,967 €/m2


300
4
soveværelser
4
Badeværelser
50
terrace
471
Grundareal

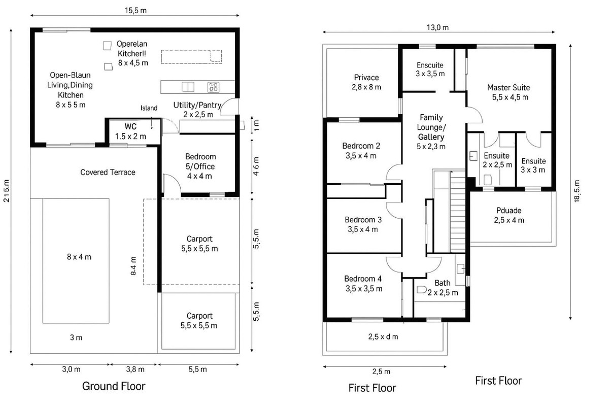
Off-Plan Modern Golf Villa – El Campanario

Seize the chance to own a brand-new frontline golf villa with direct views over El Campanario's fairways. This off-plan contemporary residence combines minimalist architecture with warm natural details and boho-tropical interiors, designed for effortless Mediterranean living.

Enjoy approx. 471 m² plot / 280–320 m² built, featuring:
- 4–5 bedrooms, all ensuite (master with private terrace)
- Spacious open-plan living & dining (8×6 m) with floor-to-ceiling glass
- Designer kitchen with island & outdoor BBQ/dining connection
- Modern flat-roof design, glass balustrades, stone & wood accents

An exclusive opportunity to personalize your future home before construction – blending modern design, comfort, and golf-front luxury.


Egenskaber

Climate control

  • A/C

Condition

  • Meget God

Features

  • Overdækket Terrasse
  • dresser-wardrobe
    Indbyggede Garderobeskabe
  • Privat Terrasse
  • Satelit TV
  • dresser-drawers-5
    Pulterrum
  • home-improvement-12_1
    Vaskehus
  • En-Suite Badeværelse
  • Barbeque
  • Termoruder

Furniture

  • Kan købes

Orientation

  • Øst
  • Sydøst
  • Syd

Parking

  • Garage
  • Carport
  • Privat

Pool

  • Privat

Setting

  • Golfbane Første Række
  • Nær Golf
  • Nær Havn/Marina
  • Nær Forretninger
  • shanty-house-village-1
    Nær By

Utilities

  • wall-socket
    Elektricitet
  • Drikkevand

Udsigt

  • Golf
  • Panoramisk
  • Have
  • Pool

Beliggende i

Købekraft

Beregn din månedlige afdrag på lån

Din forventede månedlige ydelse

Bliv forhåndsgodkendt

Bolig-udland samarbejder med Mortage Direct

Vi tilbyder vores kunder de bedst mulige boliglån til ejendomskøb i Spanien. Få det bedste spanske boliglån med Mortgage Direct.

Mere info

Købsomkostninger

Vores udgiftskalkulator giver et skøn over alle omkostninger forbundet med at købe et hus i Spanien. Brug kun disse tal som vejledning: De faktiske tal varierer afhængigt af ejendommen, ejendommens placering og den bank du vælger sammen med andre faktorer. Til det samlede beløb skal du tilføje dine afdrag på dit realkreditlån samt bankgebyrer, hvis din bank opkræver det.

Samlede udgifter

Du kan måske også lide disse boliger