Byggegrund til salg i Los Monteros

Bolig ID: R5046775

€690,000

€/m2


0
3
soveværelser
2
Badeværelser
0
terrace
1509
Grundareal

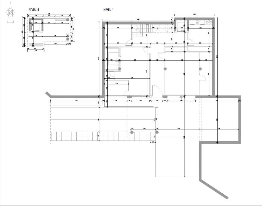
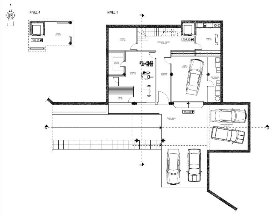
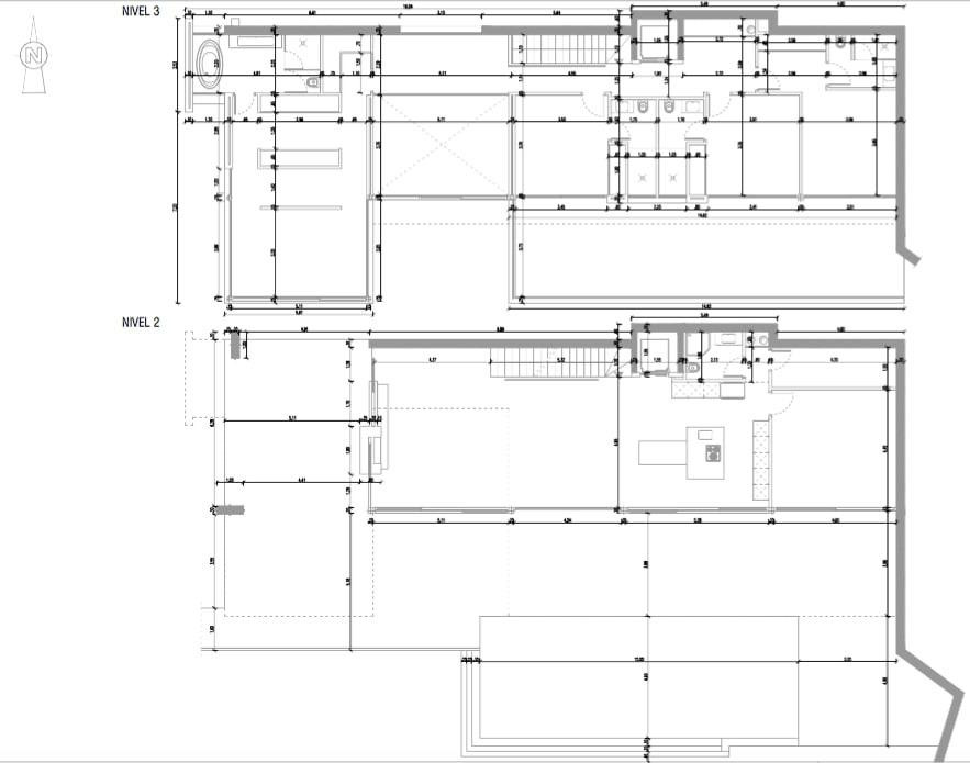
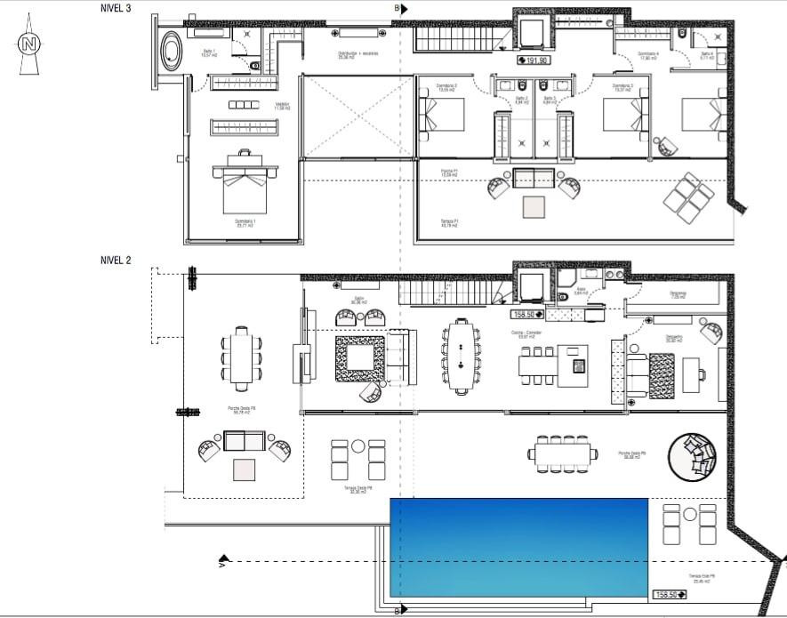
Land for sale in LOS ALTOS DE LOS MONTEROS urbanization, MARBELLA (MÁLAGA) with unobstructed views of the sea along with an attractive 4-storey single-family housing project, the building permit has been issued. The construction project is included in the price. The construction project has 5 parking spaces, 3 in the garage and 2 for visits with sea views. In the basement we have a large panoramic sauna (sea views), gym and Turkish bath. Large storage room, laundry room and staircase that connects the 4 floors and elevator. On the ground floor, a spacious living room with double height and led fireplace, kitchen with American island, large pantry, guest bathroom and office. On the second floor 4 bedrooms each with bathroom, the master room with walking closet and bathtub with sea views., closets in the hallway. On the top floor, a large solar where you can place barbecue and rest facilities. It has 3 gardens, each one can be thematic.
Use: Residential
Subtype: Urban Land
Area: 1,509 m²
Buildable area: 458 m²


Egenskaber

Climate control

  • Centralvarme

Features

  • wood-material-1
    Trægulv

Furniture

  • Umøbleret

Pool

  • Fælles

Utilities

  • Drikkevand

Udsigt

  • Hav

Beliggende i

Købekraft

Beregn din månedlige afdrag på lån

Din forventede månedlige ydelse

Bliv forhåndsgodkendt

Bolig-udland samarbejder med Mortage Direct

Vi tilbyder vores kunder de bedst mulige boliglån til ejendomskøb i Spanien. Få det bedste spanske boliglån med Mortgage Direct.

Mere info

Købsomkostninger

Vores udgiftskalkulator giver et skøn over alle omkostninger forbundet med at købe et hus i Spanien. Brug kun disse tal som vejledning: De faktiske tal varierer afhængigt af ejendommen, ejendommens placering og den bank du vælger sammen med andre faktorer. Til det samlede beløb skal du tilføje dine afdrag på dit realkreditlån samt bankgebyrer, hvis din bank opkræver det.

Samlede udgifter

Du kan måske også lide disse boliger