Villa til salg i Elviria

Bolig ID: R3985633

€3,790,000

6,546 €/m2


579
7
soveværelser
8
Badeværelser
200
terrace
1335
Grundareal

A unique property located on the first line golf of the Santa Maria Golf Course with breathtaking sea views. This large villa (468m2 living space and 200m2 balconies and terraces) on a large plot of 1335m2 is fully renovated to the highest standards. It offers 7 bedrooms, an office and 8,5 bathrooms. Since the hillside location, the villa is divided into 5 floors which are accessible via the indoor elevator.

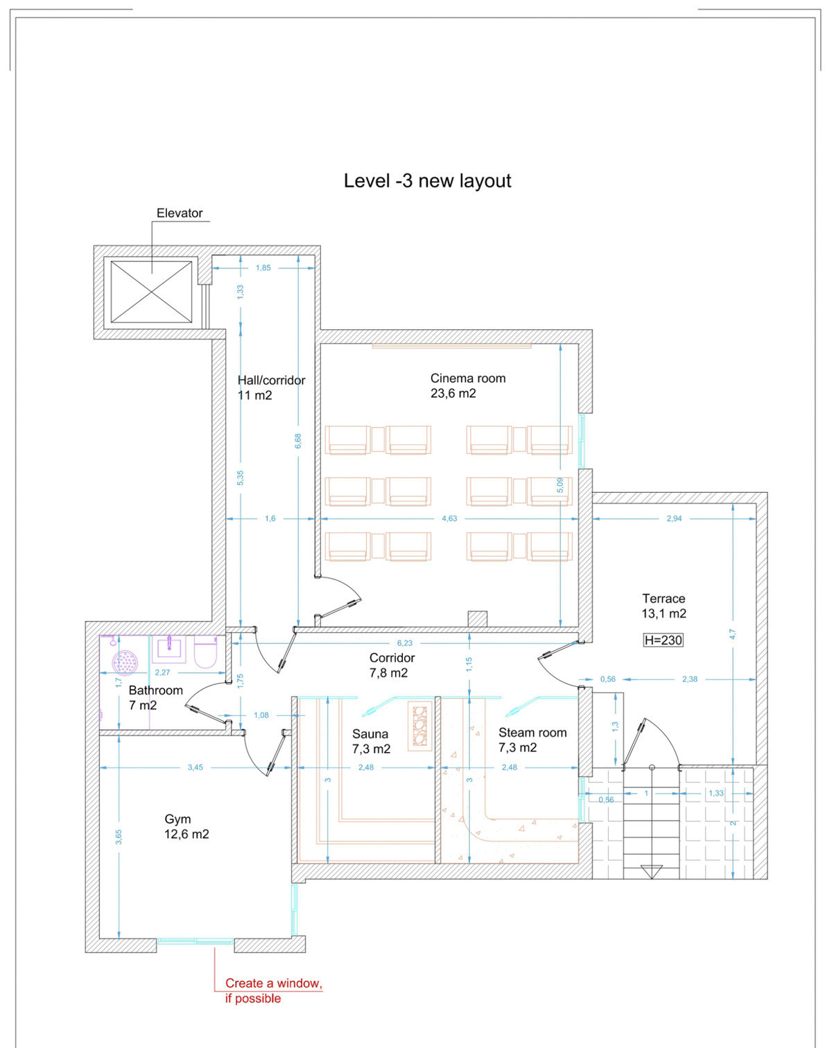
On the top floor (level +1 from street level) an office (or bedroom) is located with amazing sea views. On the driveway, with a carport with solar panels, there is space for 2 cars. On the street level, the garage for 2 cars is located with an electric car charger, as well as one of the main entrances to the house. Here the sports storeroom and the laundry room are located. Furthermore there are 2 bedrooms and a bathroom located on this level. This can easily be converted into an au-pair or valet apartment with a balcony. The bedroom level is located on level -1. Here you find 3 bedrooms, all with en-suite bathrooms as well as the master bedroom with amazing sea view, a large walk-in closet and an amazing master bathroom, with a freestanding bath with a glass ceiling and sea view, double showers, a separate toilet and bidet. The living floor is located on level -2. Here another main entrance to the house is located, as well as a bedroom with en-suite bathroom, the cloakroom and another storeroom. The living room is an open plan with the kitchen, where the 6-meter glass sliding door gives you direct access to the terrace with gazebo and outdoor kitchen and the large infinity pool. Finally the bonus of the villa you find on level -3 with the home cinema with bar, the gym and the spa with steam bath, sauna and an extra bathroom. Outside on this level you find a grass field with the sun loungers.

The villa is fully renovated. New piping, plumbing and wiring. All appliances are new and energy efficient. The windows have been replaced by aluminum isolated windows with electric shutters. The villa is equipped with solar panels. All bathrooms and the living room and kitchen are equipped with floor heating. The bathrooms are modern and equipped with Grohe taps. Both inside as outside the same greige large tiling is applied and the bedrooms have wooden floors.

The kitchen is fully equipped with an island, a hotplate with build-in extractor, 2 wine fridges, an interactive (Samsung) American Fridge, a steamoven, oven and micro-wave, plate warmer, two dishwashers, all of Siemens IQ700 line. The Quooker watertap has instant boiling water.

Furthermore the house is equipped with Siemens light switches and Fibaro demotica home automation. The villa will be equipped with a mesh internet network as well as Sonon speakers and an alarm system with cameras for maximum security. The entrance doors are equipped by the Salto door locks and open with a tag. The Mitshubishi airconditioning is divided per floor and equipped with Airzone.

The lush garden will be full of bamboo, palm trees, a waterfall and a marble fountain. The garden is equipped with an irrigation system. The garden (and the outside) of the house will be beautifully lighted.

The bright-colored Ibiza-style interior will be the icing on the cake of this modern villa with the Andalusian feeling. You just have to grab your bags and you are ready to move in the 1st of April 2022.
Details list Vileria

Total construction 579m2
Total living space 468m2
Total balcony terrace 200m2
Total plot size 1335m2
Total floors 5
Lift 4 floors
Total bedrooms 7
Office 1
Total bathrooms 6
Cloakroom 1
Home cinema, spa, gym, shower and toilet

Airconditioning
2x Mitsubishi Electric Duct 7.1Kw
2x Mitsubishi Electric Duct 12.1Kw
1x Multiroom Airzone Wifi
Partly linear ceiling slot diffuser lines (iso grill)

Heating
Bath room Electric floor heating & towel rack heating
Living room/kitchen Electric floor heating

Plumbing
Enitre new plumbing throughout the villa
Solar hot water boiler 2x 300 liter
Water filter
Return circulation pump

Electrics
Entire new cabling throughout the villa
Siemens Delta Carbon light switches and power plugs
Samsung Tablet controllers each floor + master
Fibaro home automation (Demotica)
Prosecur alarmsystem
Reolink 11 cameras system
Multi room audio streamers in each room + in ceiling speakers
Wifi Network Ubiquiti network 8 accesspoints
4 devided networks (Internet/ Camera/ Audio/ Demotica)
Electric car charger
Solar panels
Automated irrigation system
"Nice" garage gate/door motors
Doorbird intercom
Home cinema system basement
200+ in celing spots (white)
50+ outdoor house lights (black)
60+ garden spots (black)
Ceiling hanging lights

Windows/doors
Protec Aluminium windows majority with electric shutters
Buster & Punch copper door handles/ hidden door hinges
Salto door locks main entrance doors
Kitchen
Glass titanio furniture
Granit worktop
Samsung SIdebySide fridge with touchscreen
Siemens steam oven
Siemens oven
Siemens microwave
Siemens plate warmers (2x)
Siemens bob with extractor in hob
Siemens dishwasher
Winecooler (2x)
Quooker instant boiling water tap
Food waste dispenser

Bathrooms
Warm sunset/ hard graphite Grohe showers
Dos Avila/ Salgar wash basings
Grohe sanitary
Avila Dos/ Salgar sinks
Walk-in showers
Double shower master bathroom
Jacuzzi bathtub 190x90cm
Electric floor heating + towel rack heating
APE tiling

Bedrooms
Wooden herring bone floors
Power blinds windows
Build-in wardropes
Audio streamers and in-ceiling speakers

Tiling
Hallways/ stairs/ bathrooms/ living/ outdoor and pool
Same APE tilefloor (Blanco) 120x120cm
APE tiling bathrooms

Pool Infinity pool size approx 9x4x1,6m
New pipework infinity pool
New infinity deposit
New tiling
New RGB lights (3x)
Pool heating
Saltwater Generator Chlorinator
Outdoor shower

Garden
New lush type garden with Palmtrees/ Bambu
Artificial grass sun deck
Spotslights throughout garden
Outdoor kitchen with green egg and BBQ
Pergola outdoor dining area
Carport with solar panels

Laundry room
Kitchenette with Bosch washing machine and dryer

Home Cinema
HD Beamer + double surround sound system

Spa
Glas sauna (finish + steam) 2x2m
Turkish bath + chromotherapy (lights) 2x2m
Walk-in shower + toilet

Gym
Fully equipped gym


Egenskaber

Climate control

  • A/C

Condition

  • Renoveret for nylig

Features

  • Overdækket Terrasse
  • lift
    Elevator
  • Privat Terrasse
  • dresser-drawers-5
    Pulterrum
  • home-improvement-12_1
    Vaskehus
  • Jacuzzi
  • Barbeque
  • Termoruder
  • cellar-3
    Kælderen

Garden

  • Privat

Orientation

  • Sydøst

Parking

  • Privat

Pool

  • Privat

Setting

  • Nær Golf
  • Nær Havet
  • Nær Skole

Udsigt

  • Hav
  • Golf
  • Panoramisk

Beliggende i

Købekraft

Beregn din månedlige afdrag på lån

Din forventede månedlige ydelse

Bliv forhåndsgodkendt

Bolig-udland samarbejder med Mortage Direct

Vi tilbyder vores kunder de bedst mulige boliglån til ejendomskøb i Spanien. Få det bedste spanske boliglån med Mortgage Direct.

Mere info

Købsomkostninger

Vores udgiftskalkulator giver et skøn over alle omkostninger forbundet med at købe et hus i Spanien. Brug kun disse tal som vejledning: De faktiske tal varierer afhængigt af ejendommen, ejendommens placering og den bank du vælger sammen med andre faktorer. Til det samlede beløb skal du tilføje dine afdrag på dit realkreditlån samt bankgebyrer, hvis din bank opkræver det.

Samlede udgifter

Du kan måske også lide disse boliger