Land til salg i Binissalem

Bolig ID: MPG-547

€160,000

€/m2


0
0
soveværelser
0
Badeværelser
110
Grundareal

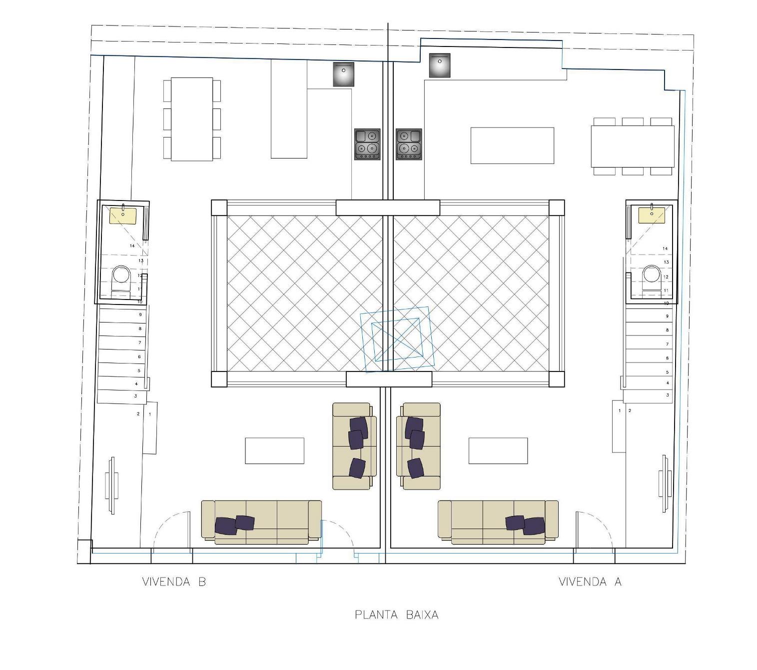
Til salg Mallorca, i landsbyen Binissalem en byggegrund med byjord på 110m2. Beliggende i et historisk område af landsbyen i en blind vej, tilbyder denne grund til salg i Binissalem mulighed for et enkelt hus på 189m2 med 94m2 over to etager eller to huse på 94m2 hver med 47m2 på hver etage. Offentlig service til kloak, vand og el er tilgængelig på gaden. Sydvestvendt, med uhindret byudsigt. De viste planer er et forslag til to huse med hver to soveværelser, begge med eget bruserum og gæstetoiletter i stueetagen. Stue og køkken omkranser en gårdhave. Binissalem ligger i centrum af øen med gode transportforbindelser til Palma de Mallorca og strandene på den nordlige del af øen Binissalem er en pulserende lille by. Kendt for vinproduktion og er den ældste og største betegnelse de Origen på Mallorca. Fra sin oprindelse, et velhavende samfund, har Binissalem mange store historiske bygninger bygget med den lokale sten, som landsbyen er berømt for.

Egenskaber

Features

  • bus-2
    Tæt På Transport

Setting

  • Nær Forretninger

Beliggende i

Købekraft

Beregn din månedlige afdrag på lån

Din forventede månedlige ydelse

Bliv forhåndsgodkendt

Bolig-udland samarbejder med Mortage Direct

Vi tilbyder vores kunder de bedst mulige boliglån til ejendomskøb i Spanien. Få det bedste spanske boliglån med Mortgage Direct.

Mere info

Købsomkostninger

Vores udgiftskalkulator giver et skøn over alle omkostninger forbundet med at købe et hus i Spanien. Brug kun disse tal som vejledning: De faktiske tal varierer afhængigt af ejendommen, ejendommens placering og den bank du vælger sammen med andre faktorer. Til det samlede beløb skal du tilføje dine afdrag på dit realkreditlån samt bankgebyrer, hvis din bank opkræver det.

Samlede udgifter

Du kan måske også lide disse boliger