Land til salg i Binissalem

Bolig ID: MPG-695

€225,000

€/m2


0
soveværelser
0
Badeværelser
234
Grundareal

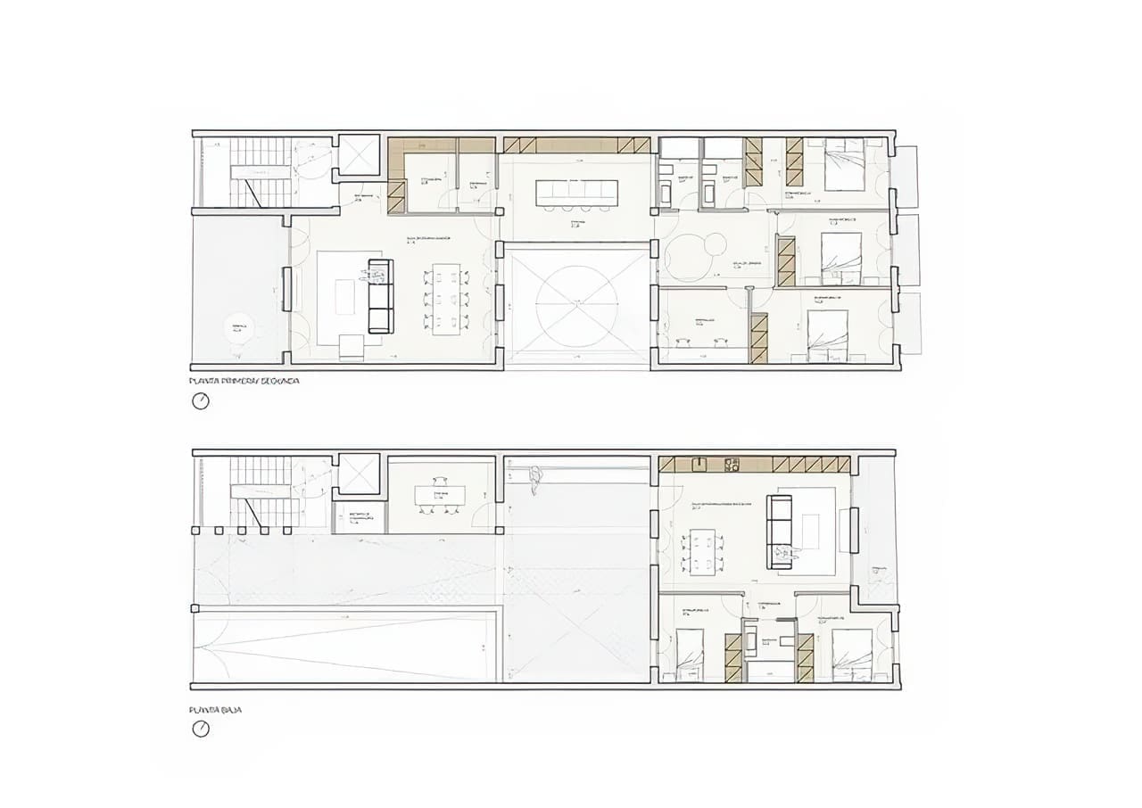
For sale in Binissalem build your dream in Binissalem: a 234 m2 plot. Perfect for building a single family house or for 3 apartments, near the main plaza and the train station. Located in the central area of the village of Binissalem, close to the main palza and a few mintues walk from the train station. Ideal to build either a single-family house, or to build three apartments plus a basement with parking and storage rooms for each of the apartment. There is a preliminary project with the designed of three homes: ground floor, first floor, second floor and basement with 3 parking spaces. It is also possiable to modify the draft project or to create a new one. First and second floor: Dining room of 41 m2. with exit to terrace of 18.34 m3. Kitchen of 21.45 m2. with pantry of 3.78 m2. and laundry of 6.08 m2. 3 bedrooms: 13.92 m2 double bedroom with en suite bathroom and dressing room, 11.27 m2 double bedroom with wardrobe and 14.20 m2 double bedroom. with wardrobe 2 bathrooms of 3.92 m2. Office of 9.04 m2. Games room of 11.61 m2. 1 balcony for each room. Ground floor: Large terrace on a floor of 45.09 m2. Living-dining room with open kitchen of 35.17 m2. with exit to terrace of 7.47 m2. 2 bedrooms with wardrobes: 10 m2. Office of 11.32 m2. Bathroom of 4.22 m2. Basement: Three storage rooms of 3.67 and a storage room of 15.43 m2. Parking area for the three homes. Very quiet area and a village with all services including train. For more information please contact us. Binissalem Mallorca within the county of the Raiguer Mallorca. Located in the centre of the island with good transport links to Palma de Mallorca and the beaches in the north of the island Binissalem is a vibrate small town. Famous for wine production and is the oldest and largest Denomination de Origen in Mallorca. From its origins a wealthy community Binissalem has many large historic buildings built with the local stone which the village is famous for. The original settlement was of Moorish origin the name of the village means the sons of (Binis) peace or salvation (Salem), Biniagual is a small hamlet included in the municipality.

Egenskaber

Features

  • bus-2
    Tæt På Transport

Setting

  • Nær Forretninger
  • Nær Skole

Beliggende i

Købekraft

Beregn din månedlige afdrag på lån

Din forventede månedlige ydelse

Bliv forhåndsgodkendt

Bolig-udland samarbejder med Mortage Direct

Vi tilbyder vores kunder de bedst mulige boliglån til ejendomskøb i Spanien. Få det bedste spanske boliglån med Mortgage Direct.

Mere info

Købsomkostninger

Vores udgiftskalkulator giver et skøn over alle omkostninger forbundet med at købe et hus i Spanien. Brug kun disse tal som vejledning: De faktiske tal varierer afhængigt af ejendommen, ejendommens placering og den bank du vælger sammen med andre faktorer. Til det samlede beløb skal du tilføje dine afdrag på dit realkreditlån samt bankgebyrer, hvis din bank opkræver det.

Samlede udgifter

Du kan måske også lide disse boliger