Lejlighed til salg i Torrevieja

Bolig ID: MLC-MLSC4878699

€131,900

1,589 €/m2


83
2
soveværelser
1
Badeværelser
0
Grundareal

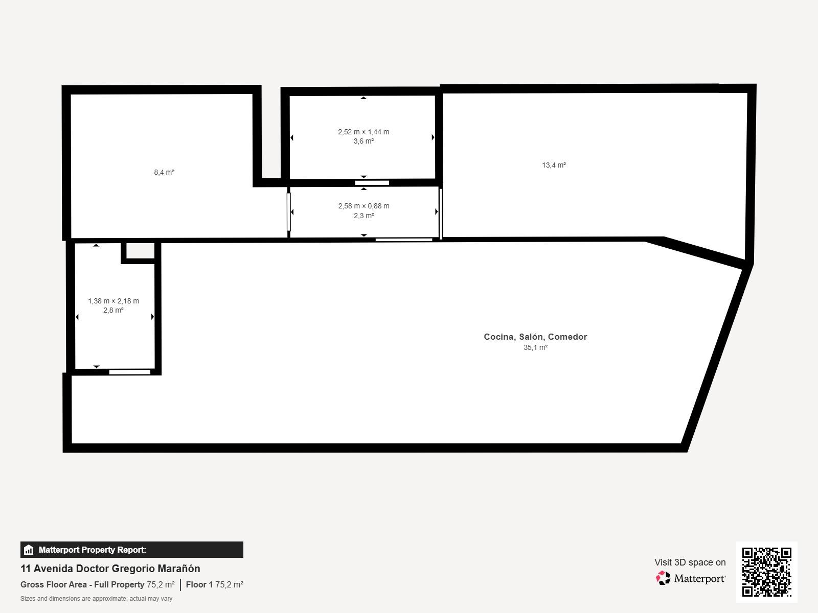
In one of the most sought-after areas of Torrevieja, next to the marina and just a few meters from the sea, this apartment is ideal for enjoying Mediterranean life with everything at hand. Its location makes it an excellent option for both year-round living and for those looking for a second residence or a safe investment in a high-demand area. 💡 A well-located opportunity with many possibilities With a price of 137,500 €, this property combines location, functionality, and comfort. Just a few steps from the Yacht Club and the beach, it is especially attractive for those who enjoy the sea, practice water sports, or simply wish to have all services nearby without giving up tranquility. 🏠 Main distribution and characteristics This apartment, renovated about 10 years ago, has 83 m² built and is practically distributed: 2 well-lit bedrooms. 1 functional and updated bathroom with shower. Spacious living-dining room, thanks to the incorporation of the terrace into the interior space, gaining spaciousness and brightness. 2 split-type air conditioning units to maintain the ideal temperature in summer. Pellet stove, perfect for heating the home efficiently during the winter months. Elevator in the building, which facilitates daily access. In addition, the building has a community patio at the entrance, ideal for leaving bicycles, something highly valued in coastal areas. 📍 Privileged location Located in the marina area of Torrevieja, just 100 meters from Acequión beach, this property is surrounded by services: supermarkets, pharmacies, restaurants, cafes, public transport, and walkways. If you have a boat or are thinking of getting one, the proximity to the yacht club makes this home a practical and comfortable choice. ℹ️ Other details of interest Selling price: 131,900 € Community fees: 95 € per quarter Annual IBI: 285 € Orientation: North Year of construction: 1982 (renovated 10 years ago) Built area: 83 m² Type of housing: Apartment No garage, storage room, or pool available Building with elevator Community patio at the entrance of the building 👥 Who might be interested in this property? Due to its location, this home is perfect for investors looking for profitability in a high occupancy tourist area, but also for couples or families who value living near the sea, with easy access to the yacht club and without needing to drive to move around the center. 📞 Interested? We provide all the details Request more information or schedule a visit. We are here to help you make a good decision. 🔒 Legal notice: This advertisement is not binding and may contain errors. It is shown for informational purposes only and is not contractual. The data presented are offered by third parties and are assumed to be correct. The offer may be subject to changes in price, withdrawal from the market, or modification without prior notice. The selling price does not include legal taxes or deed expenses.

Egenskaber

Climate control

  • A/C

Features

  • lift
    Elevator
  • bus-2
    Tæt På Transport
  • home-improvement-12_1
    Vaskehus

Setting

  • Nær Havet

Beliggende i

Købekraft

Beregn din månedlige afdrag på lån

Din forventede månedlige ydelse

Bliv forhåndsgodkendt

Bolig-udland samarbejder med Mortage Direct

Vi tilbyder vores kunder de bedst mulige boliglån til ejendomskøb i Spanien. Få det bedste spanske boliglån med Mortgage Direct.

Mere info

Købsomkostninger

Vores udgiftskalkulator giver et skøn over alle omkostninger forbundet med at købe et hus i Spanien. Brug kun disse tal som vejledning: De faktiske tal varierer afhængigt af ejendommen, ejendommens placering og den bank du vælger sammen med andre faktorer. Til det samlede beløb skal du tilføje dine afdrag på dit realkreditlån samt bankgebyrer, hvis din bank opkræver det.

Samlede udgifter

Du kan måske også lide disse boliger