Penthouse til salg i Fuengirola

Bolig ID: RED-N7085

€1,550,000

11,151 €/m2


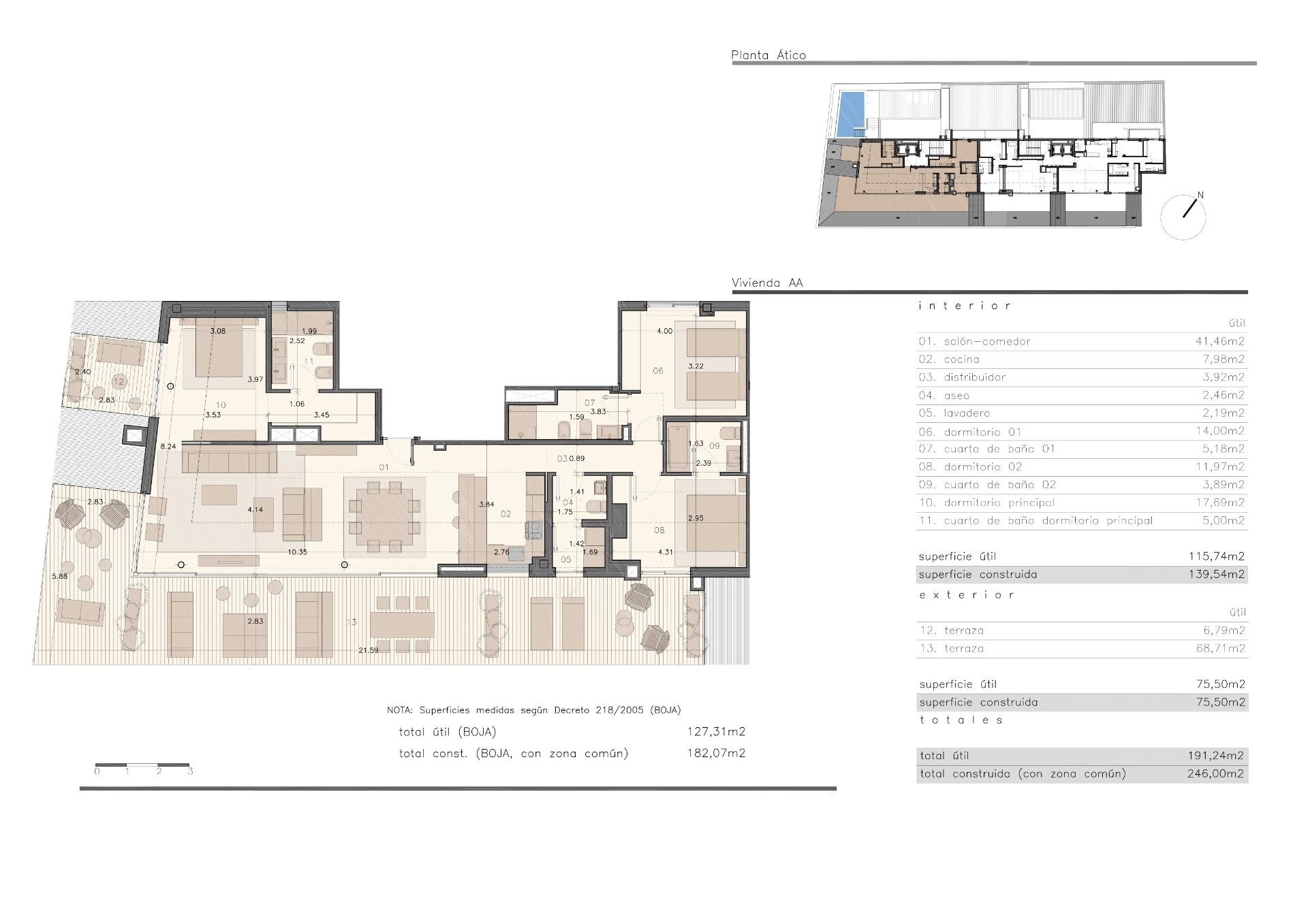
139
3
soveværelser
2
Badeværelser
0
Grundareal

NEW BUILD RESIDENTIAL COMPLEX IN FUENGIROLA New build residential will comprise 33 luxury apartments and penthouses with the most modern equipment and the best qualities on the market. The project is a modern construction designed by the prestigious architecture firm A0- project with its own style that reflects an exclusive concept of quality of life: current, elegant, classy and in line with the latest technology, all of which make liveability a pleasure for the senses. Located only 350 meters from the sea. Its elegant style makes this building an example of modern architecture in which everything has been designed with the comfort of its inhabitants in mind. It was created with the vocation to become an emblematic construction of Fuengirola and the entire Costa del Sol. The exterior gardened areas, garages, venues and passageways maintain the elegant and modern style. Living in in this complex means enjoying leisure activities, culture, services, tranquility and the Mediterranean lifestyle without having to give anything up. Between Marbella and Malaga, Fuengirola is one of the most lively cities on the Costa del Sol, one of the residential gems of the area and a rising value with a high quality of life. 849

Egenskaber

Climate control

  • Air Conditioning

Features

  • lift
    Lift
  • Private Terrace
  • dresser-drawers-5
    Storage Room

Parking

  • Private

Pool

  • Communal

Setting

  • Close To Sea

Beliggende i

Købekraft

Beregn din månedlige afdrag på lån

Din forventede månedlige ydelse

Bliv forhåndsgodkendt

Homes-abroad collaborate with all major banks in Spain

Homes-abroad real estate, work with mortgage brokers and all major banks in Spain. Through this link you can apply for a mortgage in Spain.

Mortgage calculator

Købsomkostninger

Vores udgiftskalkulator giver et skøn over alle omkostninger forbundet med at købe et hus i Spanien. Brug kun disse tal som vejledning: De faktiske tal varierer afhængigt af ejendommen, ejendommens placering og den bank du vælger sammen med andre faktorer. Til det samlede beløb skal du tilføje dine afdrag på dit realkreditlån samt bankgebyrer, hvis din bank opkræver det.

Samlede udgifter

Du kan måske også lide disse boliger