Villa til salg i Denia

Bolig ID: VPO-N8769

€1,250,000

5,580 €/m2


224
3
soveværelser
3
Badeværelser
716
Grundareal

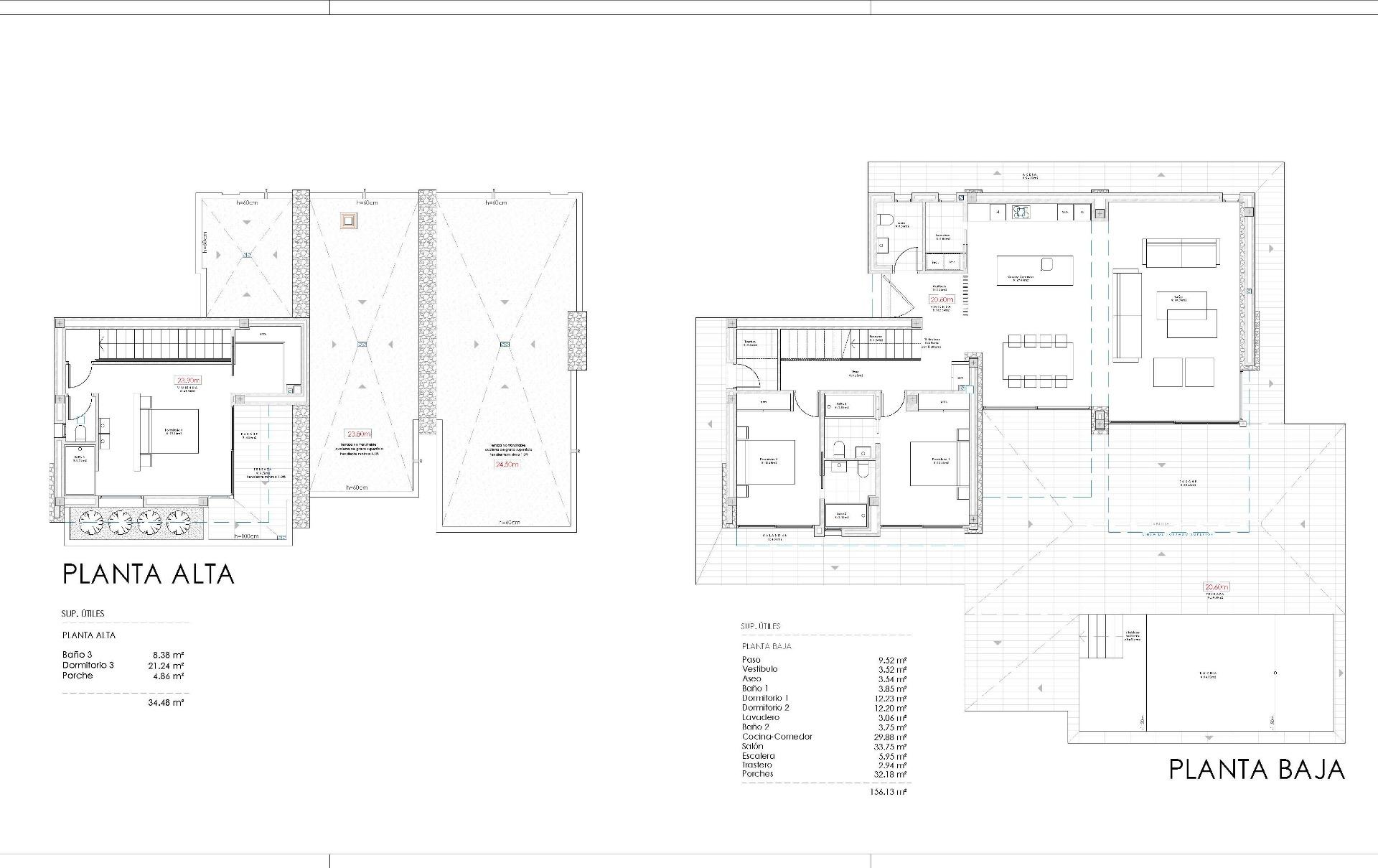
Exclusive Modern Villas in Dénia – Contemporary Luxury Near the Beach Elegant Villas with Private Pool and Mediterranean Charm Discover these exclusive modern villas in Dénia, designed to offer comfort, style, and functionality in a privileged location. With contemporary architecture, elegant natural stone details, and large windows, these homes are bathed in natural light, creating bright and inviting spaces. The private landscaped garden and swimming pool provide the perfect setting to enjoy the Mediterranean lifestyle all year round. Spacious Layout and High-Quality Design These villas are thoughtfully distributed over two levels: Ground Floor: Two spacious bedrooms with ensuite bathrooms, a guest toilet, a laundry room, and a storage area for added convenience. First Floor: A luxurious master bedroom with an ensuite bathroom and private terrace, offering open panoramic views. Prime Location – Walking Distance to the Beach and Town Center Set in a peaceful yet well-connected area, this villa is ideal as a permanent residence or an investment opportunity. The beach is just 900 meters away, allowing you to take a refreshing swim or enjoy a relaxing stroll along the shore within minutes. The town center is only 1 km away, where you’ll find shops, markets, restaurants, and essential services. Excellent Connectivity and Nearby Amenities Dénia is a vibrant coastal town on the Costa Blanca, known for its charming old town, beautiful marina, and excellent gastronomy. This villa enjoys exceptional connectivity to key points of interest: Dénia Town Center – 1 km (10-minute walk) Dénia Beach – 900 m (10-minute walk) Dénia Marina – 2 km (5-minute drive) La Sella Golf Resort – 8 km (12-minute drive) Alicante Airport – 104 km (1-hour drive) Valencia Airport – 110 km (1-hour 15-minute drive) The property is also well connected by public transport, with bus and tram stops nearby, as well as quick access to the AP-7 and N-332 highways. Your Perfect Home on the Costa Blanca This stunning new-build villa is currently under construction, offering you the opportunity to secure a modern, high-quality home in one of the most sought-after areas of Dénia. Don’t miss this opportunity! Contact us today for more information or to schedule a visit.

Beliggende i

Købekraft

Beregn din månedlige afdrag på lån

Din forventede månedlige ydelse

Bliv forhåndsgodkendt

Bolig-udland samarbejder med Mortage Direct

Vi tilbyder vores kunder de bedst mulige boliglån til ejendomskøb i Spanien. Få det bedste spanske boliglån med Mortgage Direct.

Mere info

Købsomkostninger

Vores udgiftskalkulator giver et skøn over alle omkostninger forbundet med at købe et hus i Spanien. Brug kun disse tal som vejledning: De faktiske tal varierer afhængigt af ejendommen, ejendommens placering og den bank du vælger sammen med andre faktorer. Til det samlede beløb skal du tilføje dine afdrag på dit realkreditlån samt bankgebyrer, hvis din bank opkræver det.

Samlede udgifter

Du kan måske også lide disse boliger

6 sovevær. · 6 badevær. · 832 m²
€2,657,000
REF. ID: VPO-UV-Rigel
Nybyg/ Projektsalg
4 sovevær. · 4 badevær. · 266 m²
€1,250,000
REF. ID: VPO-UV-Pito
Nybyg/ Projektsalg
4 sovevær. · 4 badevær. · 259 m²
€1,240,000
REF. ID: VPO-UV-Mandarina II
Nybyg/ Projektsalg