Villa til salg i Calpe

Bolig ID: VPO-N5613

€1,850,000

4,512 €/m2


410
4
soveværelser
6
Badeværelser
660
Grundareal

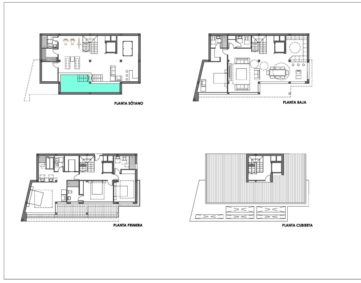
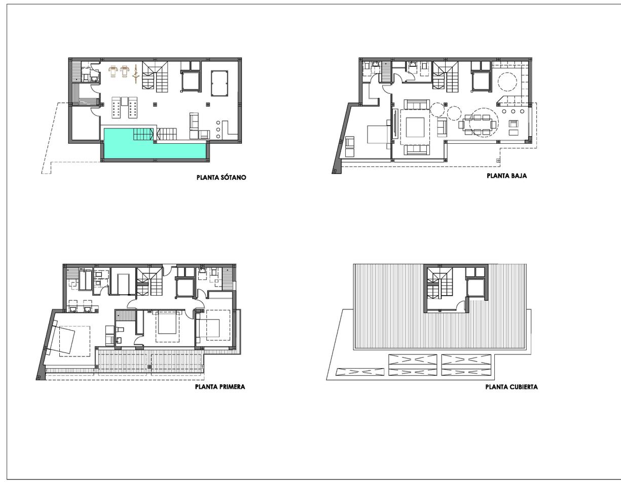
Luxury villa with sea views modern detached luxury villa with stunning sea views. The property has a lift that connects the 3 floors of the house. From all the bedrooms and from the living room you can enjoy spectacular sea views. Its infinity pool will allow you to take a relaxing bath while you feel how you merge with the horizon, the Mediterranean Sea and its blue sky. The development is located less than 2 km from the beach and the centre of Calpe, with all the necessary services. Alicante airport is 70 km away and Benidorm with its wide range of leisure activities is only 20 km away. From Calpe you can access a wide range of golf courses, international schools, marinas and nautical sports, varied gastronomy and all this in a climate with 300 days of sunshine a year and an average annual temperature of 20ºC.

Beliggende i

Købekraft

Beregn din månedlige afdrag på lån

Din forventede månedlige ydelse

Bliv forhåndsgodkendt

Bolig-udland samarbejder med Mortage Direct

Vi tilbyder vores kunder de bedst mulige boliglån til ejendomskøb i Spanien. Få det bedste spanske boliglån med Mortgage Direct.

Mere info

Købsomkostninger

Vores udgiftskalkulator giver et skøn over alle omkostninger forbundet med at købe et hus i Spanien. Brug kun disse tal som vejledning: De faktiske tal varierer afhængigt af ejendommen, ejendommens placering og den bank du vælger sammen med andre faktorer. Til det samlede beløb skal du tilføje dine afdrag på dit realkreditlån samt bankgebyrer, hvis din bank opkræver det.

Samlede udgifter

Du kan måske også lide disse boliger

4 sovevær. · 5 badevær. · 590 m²
€2,490,000 - €2,490,000
REF. ID: R5244106
Nybyg/ Projektsalg