Penthouse til salg i Murcia (City)

Bolig ID: RED-SP1505

€590,000

4,538 €/m2


130
4
soveværelser
2
Badeværelser
0
Grundareal

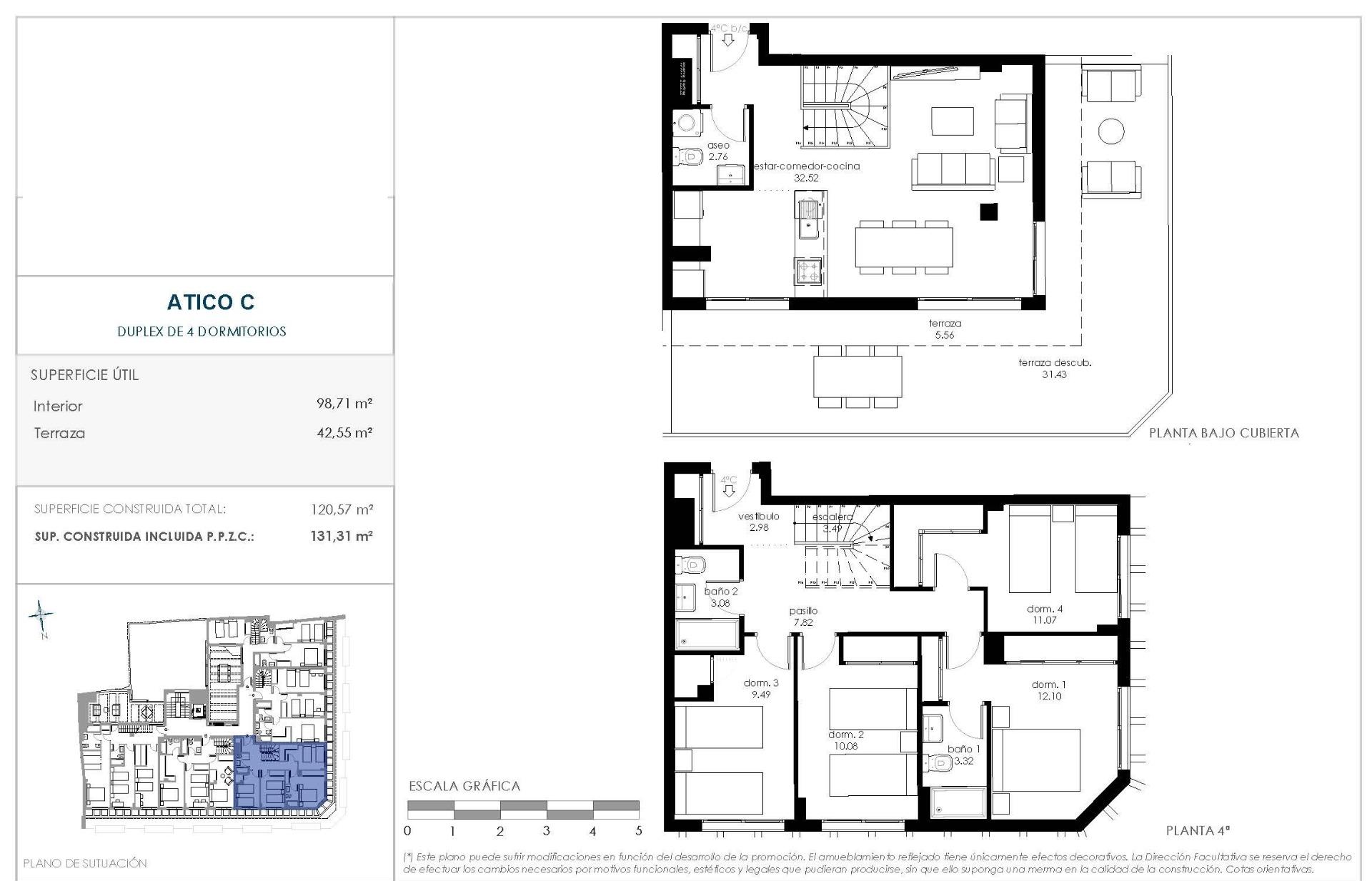
Nybyggede duplex-penthouse-lejligheder i Murcias centrum nær Plaza Mayor Eksklusivt boende i hjertet af Murcia Oplev disse rummelige, nybyggede duplex-penthouse-lejligheder beliggende i hjertet af Murcia, kun få skridt fra Plaza Mayor de Murcia. Beliggende mellem byens historiske centrum og det kommercielle område nær El Corte Ingles, tilbyder dette byggeri en unik mulighed for at nyde moderne komfort i et af de mest eftertragtede byområder i regionen Murcia. Murcia er kendt for sit livlige byliv, imponerende barokke arkitektur, berømte gastronomi og behagelige klima året rundt. At bo i byens centrum betyder, at man har restauranter, butikker, kulturelle attraktioner, skoler og alle vigtige serviceydelser inden for gåafstand. Rummelige duplex-penthouse-lejligheder med 3 og 4 soveværelser og store terrasser Disse eksklusive penthouses har 3 eller 4 soveværelser fordelt på to etager, hvilket giver generøse og funktionelle boligarealer, der er ideelle for familier eller dem, der søger ekstra plads til at arbejde hjemmefra. Et af de mest fremtrædende træk er de store private terrasser på mere end 40 m2, der tilbyder åben udsigt og rigeligt med naturligt lys. Disse udendørsarealer er perfekte til afslapning, underholdning af gæster eller udendørs spisning i byens centrum. Bygningen har elevator og fuld tilgængelighed for personer med nedsat mobilitet. Der er mulighed for at tilkøbe parkeringspladser og opbevaringsrum mod et ekstra gebyr, hvilket øger bekvemmeligheden i denne førsteklasses bybeliggenhed. Høj kvalitet og energieffektivitet Hver penthouse er designet til at give maksimal komfort og effektivitet. Det fuldt udstyrede køkken med integrerede apparater skaber et perfekt rum for madentusiaster. Nøglefunktioner inkluderer: Energieffektivitetsklasse A Fuldt installeret kanalbaseret aircondition Gulvvarme Hjemmeautomatiseringspakke Videointercom-system LED-belysning i stue, badeværelser og soveværelser Disse højkvalitetsspecifikationer sikrer lavt energiforbrug, reducerede emissioner og optimal termisk komfort hele året rundt. Fremragende beliggenhed og afstande Murcia-katedralen 0,5 km Plaza Mayor de Murcia 0,3 km Murcia togstation 1,5 km Altorreal Golf 15 km Murcia Internationale Lufthavn 25 km Middelhavets strande 50 km Sikr dig din luksuriøse penthouse i Murcia Disse nybyggede duplex-penthouses kombinerer plads, energieffektivitet og en uovertruffen central beliggenhed i Murcia. Kontakt os i dag for at få mere information eller for at arrangere et privat besøg og sikre dig dit nye hjem i hjertet af byen. 849

Egenskaber

Climate control

  • Centralvarme

Features

  • lift
    Elevator
  • Privat Terrasse
  • bus-2
    Tæt På Transport

Setting

  • Nær Skole
  • Nær Forretninger

Beliggende i

Købekraft

Beregn din månedlige afdrag på lån

Din forventede månedlige ydelse

Bliv forhåndsgodkendt

Bolig-udland samarbejder med Mortage Direct

Vi tilbyder vores kunder de bedst mulige boliglån til ejendomskøb i Spanien. Få det bedste spanske boliglån med Mortgage Direct.

Mere info

Købsomkostninger

Vores udgiftskalkulator giver et skøn over alle omkostninger forbundet med at købe et hus i Spanien. Brug kun disse tal som vejledning: De faktiske tal varierer afhængigt af ejendommen, ejendommens placering og den bank du vælger sammen med andre faktorer. Til det samlede beløb skal du tilføje dine afdrag på dit realkreditlån samt bankgebyrer, hvis din bank opkræver det.

Samlede udgifter

Du kan måske også lide disse boliger

4 sovevær. · 4 badevær. · 384 m²
€4,408,000 - €5,142,000
REF. ID: R5338879
Nybyg/ Projektsalg