Byhus/Rækkehus til salg i Velez-Malaga

Bolig ID: RED-SP1485

€630,000

2,930 €/m2


215
4
soveværelser
3
Badeværelser
143
Grundareal

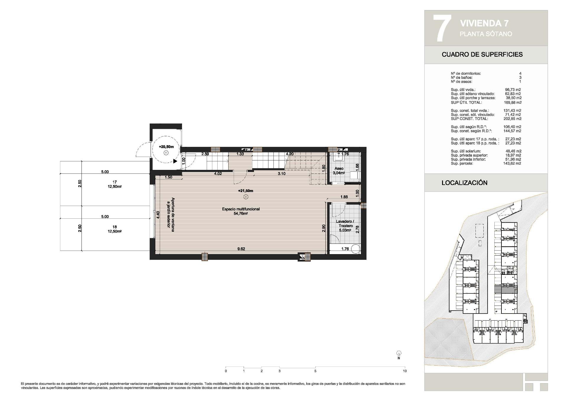
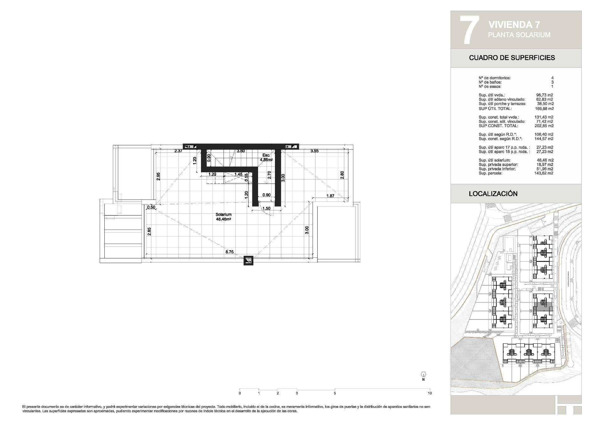
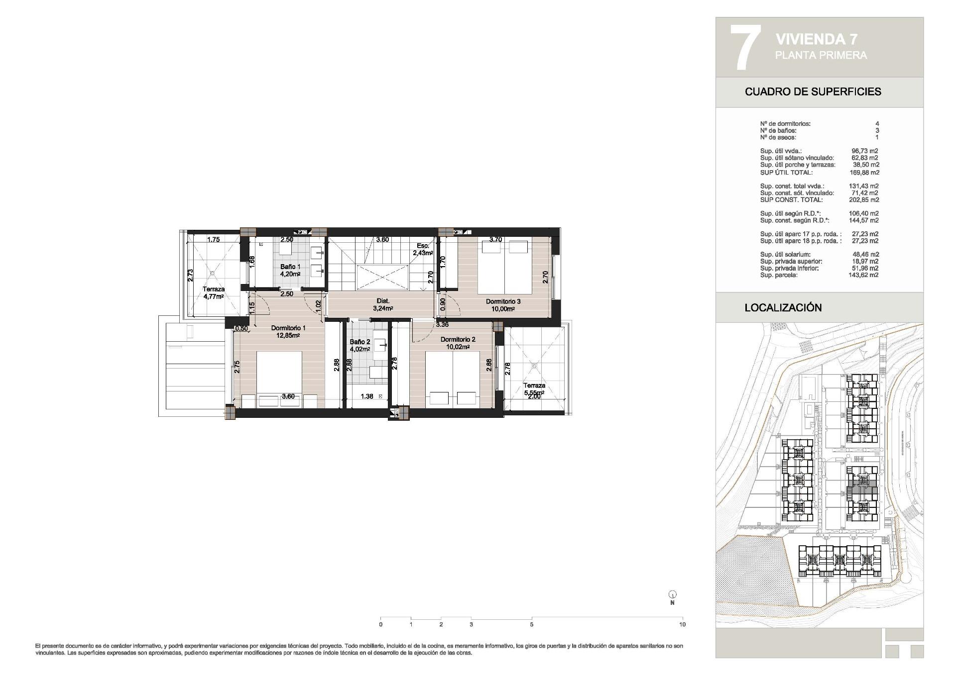
Nybyggede rækkehuse med 4 soveværelser i Torre del Mar, kun 800 m fra stranden Moderne familiehuse på Costa del Sol Dette eksklusive boligkompleks består af 21 moderne rækkehuse med 4 soveværelser beliggende i Torre del Mar, et af de mest eftertragtede kystområder i Axarquia-regionen på Costa del Sol. Disse rummelige boliger ligger kun 800 meter fra stranden og er ideelle for familier, der søger komfort, udendørsliv og nærhed til havet. Torre del Mar er kendt for sine lange sandstrande, livlige promenade, fremragende gastronomi og året rundt-service. Byen tilbyder en perfekt balance mellem afslappet kystliv og moderne infrastruktur med skoler, sundhedscentre, shoppingområder og sportsfaciliteter inden for rækkevidde. Rummelig indretning over fire etager med privat solarium Hvert rækkehus er fordelt over tre hovedetager plus et privat solarium på taget på ca. 48 m2, der tilbyder generøse indendørs og udendørs rum. Kælderniveauet omfatter privat parkering til to biler, et multifunktionelt rum med naturligt lys, der kan bruges som spillerum, kontor eller ekstra soveværelse, et vaskerum og et gæstetoilet. I stueetagen er den åbne stue og køkkenområdet forbundet direkte med terrassen foran og den private have. Denne etage har også et soveværelse og et fuldt udstyret badeværelse, hvilket gør den ideel til gæster eller flergenerationsboliger. En ekstra terrasse bagved giver yderligere udendørs plads. Første sal har tre ekstra soveværelser og to badeværelser, hvoraf det ene er en suite, samt to terrasser foran og bagved ejendommen. Kvalitetsspecifikationer og energieffektivitet Disse nybyggede boliger leveres med finish i høj kvalitet og moderne installationer, herunder: Indbygget køkken med keramisk kogeplade, vask og emhætte Fuldt installeret kanaliseret aircondition Aerotermisk system til varmt vand Badeværelser med møbler, spejle og bruseskærme Elektriske skodder i stuen og soveværelserne Videointercom-system Boligkomplekset har også anlagte haver og en fælles swimmingpool, som beboerne kan benytte. Fremragende beliggenhed tæt på stranden, golfbanen og Malaga by Bebyggelsen ligger kun 4 km fra Baviera Golf og 30 km fra Malaga bymidte, med direkte adgang til motorvej A7. Afstande til vigtige seværdigheder Strand 0,8 km Baviera Golf 4 km Malaga by 30 km Malaga lufthavn 45 km Vélez Málaga 5 km Dit ideelle hjem ved havet i Torre del Mar Disse moderne rækkehuse tilbyder plads, kvalitet og en uovertruffen beliggenhed tæt på stranden. Kontakt os i dag for at få mere information eller for at aftale en fremvisning af dette enestående nye byggeri i Torre del Mar. 849

Egenskaber

Climate control

  • A/C

Features

  • lift
    Elevator
  • Privat Terrasse
  • dresser-drawers-5
    Pulterrum

Parking

  • Mere end én

Pool

  • Fælles

Security

  • Lukket Kompleks

Setting

  • Nær Havet
  • Nær Skole
  • Nær Forretninger

Beliggende i

Købekraft

Beregn din månedlige afdrag på lån

Din forventede månedlige ydelse

Bliv forhåndsgodkendt

Bolig-udland samarbejder med Mortage Direct

Vi tilbyder vores kunder de bedst mulige boliglån til ejendomskøb i Spanien. Få det bedste spanske boliglån med Mortgage Direct.

Mere info

Købsomkostninger

Vores udgiftskalkulator giver et skøn over alle omkostninger forbundet med at købe et hus i Spanien. Brug kun disse tal som vejledning: De faktiske tal varierer afhængigt af ejendommen, ejendommens placering og den bank du vælger sammen med andre faktorer. Til det samlede beløb skal du tilføje dine afdrag på dit realkreditlån samt bankgebyrer, hvis din bank opkræver det.

Samlede udgifter

Du kan måske også lide disse boliger