Stueetagelejlighed til salg i Rojales

Bolig ID: RED-SP1287

€412,100

4,338 €/m2


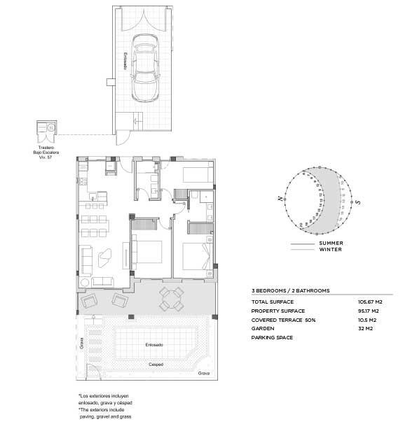
95
3
soveværelser
2
Badeværelser
150
Grundareal

NYBYGGET BOLIGKOMPLEKS I ROJALES Nybygget boligkompleks med bungalowlejligheder, rækkehuse og dobbelthuse i Rojales. Moderne nybyggede bungalowlejligheder med 2 og 3 soveværelser i 2 etager: stueetage med privat have og første sal med privat tagterrasse. Moderne rækkehuse i 2 etager med 3 soveværelser, 2 badeværelser, åbent køkken og stueområde, indbyggede skabe, terrasser, privat have og solarium. Moderne dobbelthuse i 2 etager med 3 soveværelser, 2 og 3 badeværelser, åbent køkken og opholdsstue, indbyggede skabe, terrasser, privat have og solarium. Privat boligområde med grønne områder, swimmingpool og privat parkering. Med alle de nødvendige tjenester lige ved hånden: supermarkeder, golfbaner, restauranter, sundhedscentre. Rojales er en traditionel landbrugsby, der er blevet en af de foretrukne destinationer i det indre af Vega Baja, takket være dens strategiske placering nær N-332 og AP-7. De gode tilkørselsforhold gør, at du kan nå Alicante lufthavn på 20 minutter og nyde strandene i Guardamar, La Mata eller Torrevieja på 15 minutter. Rojales tilbyder et rigt og varieret gastronomisk og fritidstilbud og har den prestigefyldte golfbane La Marquesa Golf. Rojales er en dejlig landsby med alle tjenester som supermarkeder, apoteker, banker, restauranter og naturpark meget tæt på villaerne. La Marquesa Golf er en af de mest historiske baner på Costa Blanca, med 18 huller og et, der er lige så specielt som det 17. hul på Sawgrass. Tradition, kvalitet og erfaring mødes for at tilbyde golfspillere, der besøger os, en unik oplevelse, fuld af historie, hvor.

Egenskaber

Climate control

  • A/C

Features

  • Privat Terrasse
  • dresser-drawers-5
    Pulterrum

Parking

  • Privat

Pool

  • Fælles

Security

  • Lukket Kompleks

Setting

  • Nær Skole
  • Nær Forretninger

Beliggende i

Købekraft

Beregn din månedlige afdrag på lån

Din forventede månedlige ydelse

Bliv forhåndsgodkendt

Bolig-udland samarbejder med Mortage Direct

Vi tilbyder vores kunder de bedst mulige boliglån til ejendomskøb i Spanien. Få det bedste spanske boliglån med Mortgage Direct.

Mere info

Købsomkostninger

Vores udgiftskalkulator giver et skøn over alle omkostninger forbundet med at købe et hus i Spanien. Brug kun disse tal som vejledning: De faktiske tal varierer afhængigt af ejendommen, ejendommens placering og den bank du vælger sammen med andre faktorer. Til det samlede beløb skal du tilføje dine afdrag på dit realkreditlån samt bankgebyrer, hvis din bank opkræver det.

Samlede udgifter

Du kan måske også lide disse boliger