Stueetagelejlighed til salg i Fuengirola

Bolig ID: RED-SP1261

€1,350,000

10,385 €/m2


130
3
soveværelser
2
Badeværelser
184
Grundareal

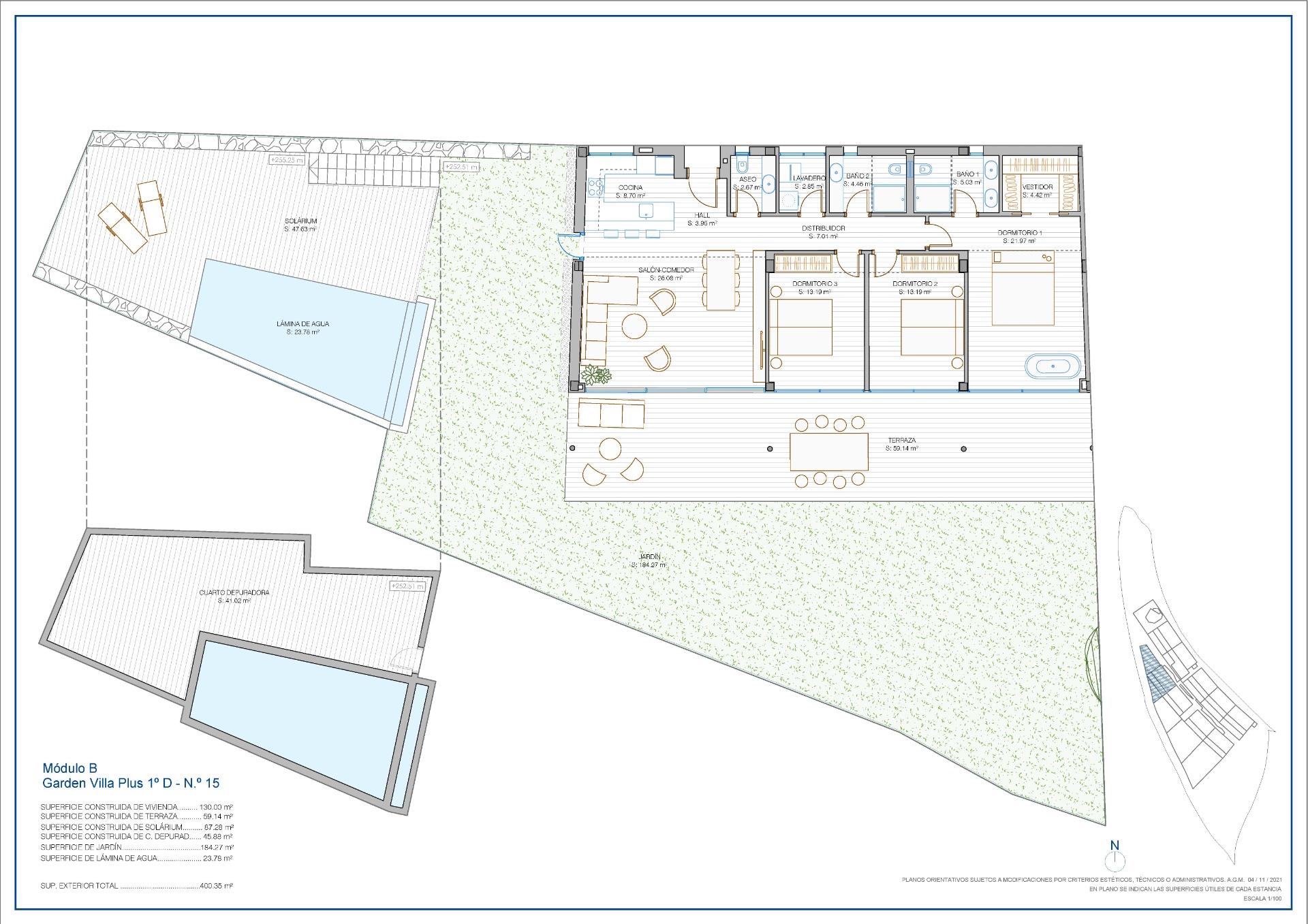
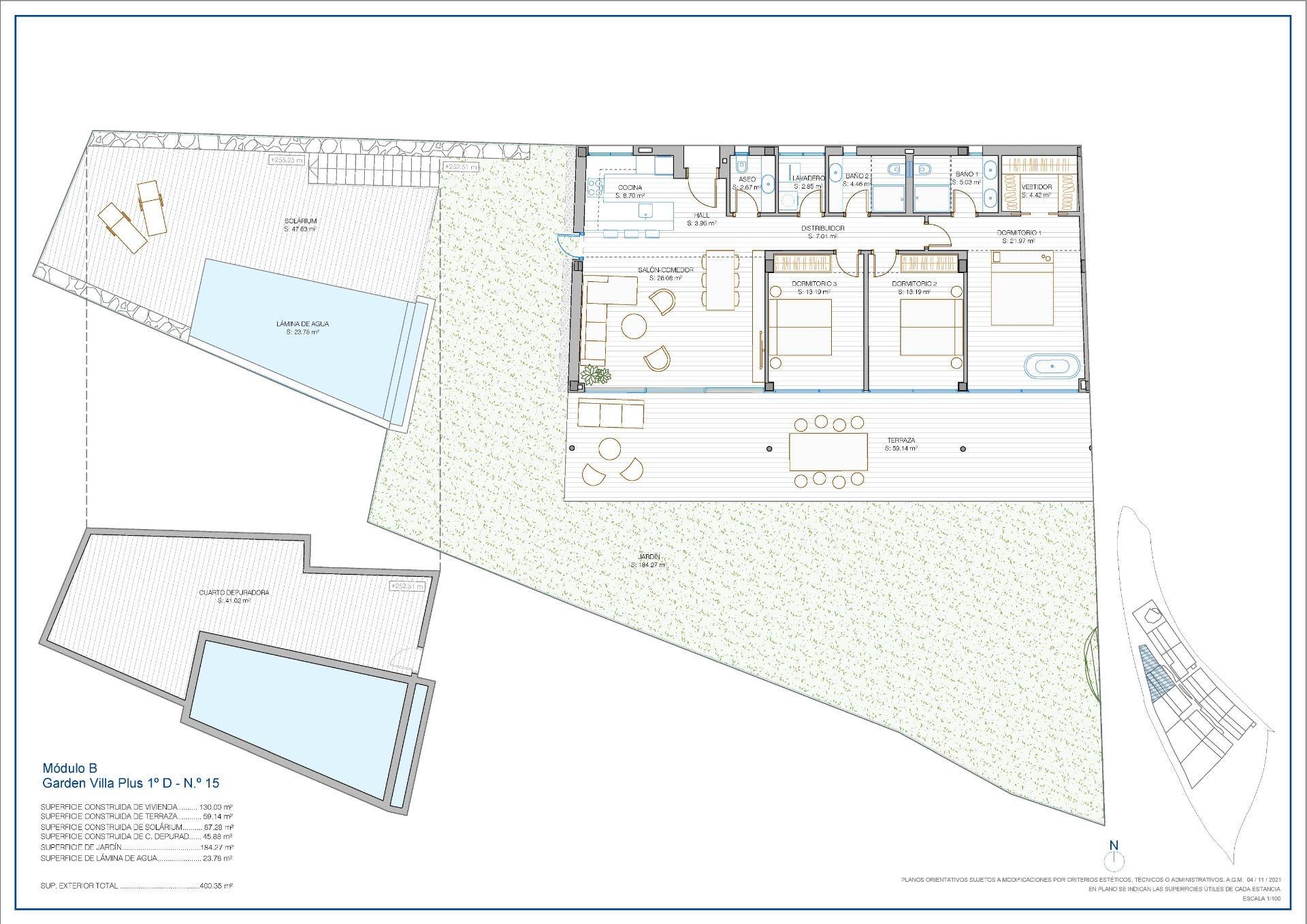
Eksklusive nybyggede boliger i El Higuerón, Costa del Sol Moderne boliger omgivet af natur Dette innovative boligprojekt med kun 19 boliger i El Higuerón, Costa del Sol, kombinerer banebrydende arkitektur med naturlige omgivelser. Hver bolig har over 16 meter lineær facade, hvilket sikrer åbne, lyse interiører fyldt med naturligt lys. Beliggende i de frodige grønne områder i Sierra de Mijas nyder beboerne en følelse af frihed, privatliv og ro, samtidig med at de stadig nyder godt af de luksuriøse faciliteter på Higuerón Resort, herunder den prestigefyldte Higuerón Sport Club, Higuerón Spa og The Beach Club. Rummelige grundplaner med hav- og bjergudsigt Boligerne har generøse grundplaner på 130 m2 med 3 soveværelser, 2 badeværelser (det ene en-suite), gæstetoilet, vaskerum og åbent køkken i forbindelse med stuen. De udendørs arealer er designet til at maksimere nydelsen af det middelhavsklima: Stueetager med have og privat pool Mellemste etager med store terrasser og jacuzzi Penthouse-lejligheder med solarium og jacuzzi Alle enheder har spektakulær udsigt over både havet og bjergene og inkluderer 2 parkeringspladser og 1 opbevaringsrum. Førsteklasses kvalitet og smart design Disse boliger er bygget efter de højeste standarder og inkluderer: 3 m loftshøjde for en forbedret fornemmelse af rummelighed Gulvvarme overalt Aerotermisk system for energieffektivitet Italienske Zamperi-køkkener Hjemmeautomation i udvalgte enheder Shuttle-service for ejere Eksklusive fællesfaciliteter Beboerne har også adgang til: Svømmebassiner for voksne og børn Frugttræshaver og byfrugtplantage Coworking-område Anlagte grønne områder Fuld adgang til de 5-stjernede faciliteter på Higuerón Resort og Hilton Curio Collection Hotel Fremragende beliggenhed på Costa del Sol Dette byggeri ligger i det højeste område af El Higuerón, kun 2 minutter fra Higuerón Resort og kun 4 minutter fra Benalmádena, Mijas Pueblo og Fuengirola. De fremragende forbindelser gør det til et ideelt sted at bo: Strande: 3 km Málaga Internationale Lufthavn: 10 km (10 minutter i bil, 30 minutter med tog) Golfbaner: 10-20 km Puerto Marina og indkøbscentre: 6-8 km Din middelhavsstil venter Dette byggeri er mere end bare et hjem; det er en livsstilsdestination. Med enestående design, luksuriøse faciliteter og en privilegeret beliggenhed tilbyder det den perfekte balance mellem afslapning og tilgængelighed. Kontakt os i dag for at aftale et besøg og sikre dig dit drømmehus i El Higuerón, Costa del Sol.

Egenskaber

Climate control

  • Centralvarme

Features

  • lift
    Elevator
  • Privat Terrasse
  • dresser-drawers-5
    Pulterrum

Parking

  • Mere end én

Pool

  • Private pool
  • Fælles

Security

  • Lukket Kompleks

Setting

  • Nær Skole
  • Nær Forretninger

Udsigt

  • Hav

Beliggende i

Købekraft

Beregn din månedlige afdrag på lån

Din forventede månedlige ydelse

Bliv forhåndsgodkendt

Bolig-udland samarbejder med Mortage Direct

Vi tilbyder vores kunder de bedst mulige boliglån til ejendomskøb i Spanien. Få det bedste spanske boliglån med Mortgage Direct.

Mere info

Købsomkostninger

Vores udgiftskalkulator giver et skøn over alle omkostninger forbundet med at købe et hus i Spanien. Brug kun disse tal som vejledning: De faktiske tal varierer afhængigt af ejendommen, ejendommens placering og den bank du vælger sammen med andre faktorer. Til det samlede beløb skal du tilføje dine afdrag på dit realkreditlån samt bankgebyrer, hvis din bank opkræver det.

Samlede udgifter

Du kan måske også lide disse boliger