Stueetagelejlighed til salg i Villajoyosa

Bolig ID: RED-SP1160

€338,000

3,347 €/m2


101
2
soveværelser
2
Badeværelser
0
Grundareal

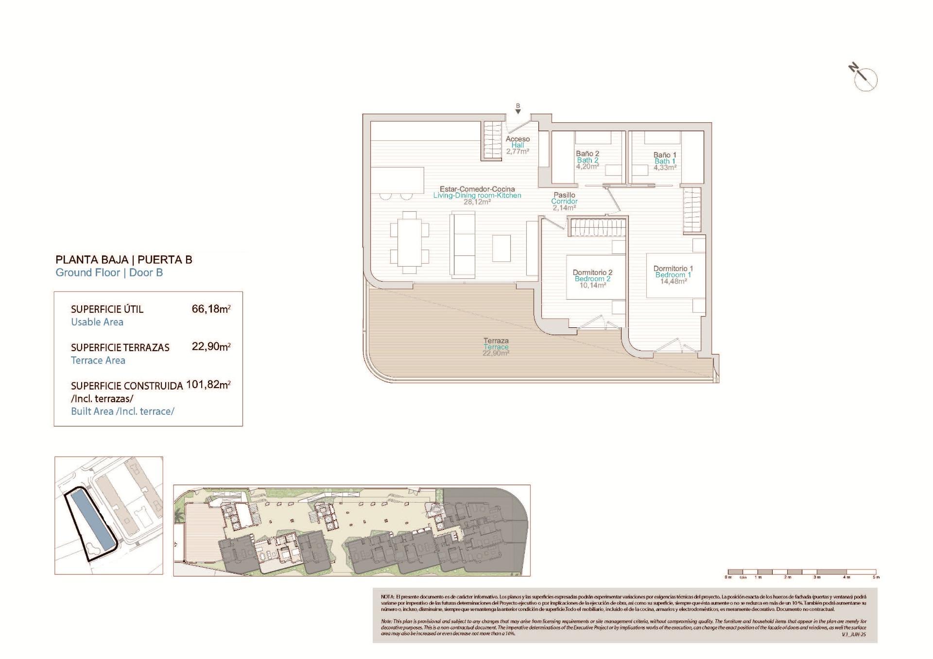
Eksklusive lejligheder og penthouses ved havet i Villajoyosa med panoramaudsigt over Middelhavet Oplev dette enestående nye boligkompleks beliggende på en bakketop i det eftertragtede Tellerola-område i Villajoyosa. Med en betagende havudsigt, direkte adgang til stranden via en natursti og omgivet af uberørte middelhavslandskaber er det den perfekte blanding af ro, komfort og moderne living. Fremragende beliggenhed i Villajoyosa Dette lukkede boligkompleks ligger mellem Playa del Torres og Playa El Tío Roig og har en uovertruffen beliggenhed ved havet, samtidig med at det ligger tæt på vigtige servicefaciliteter og fritidsaktiviteter. Villajoyosas maleriske gamle bydel ligger kun 1,5 km væk, Benidorm med sit livlige natteliv og shoppingmuligheder ligger 10 km væk, og Alicante Lufthavn ligger kun 40 km væk. Den ideelle beliggenhed giver nem adgang til golfbaner, lystbådehavne og kulturelle attraktioner langs Costa Blanca. Elegante boliger med terrasser med havudsigt Komplekset tilbyder 1-, 2- og 3-værelseslejligheder og penthouses, alle designet til at maksimere naturligt lys og spektakulær havudsigt. Rummelige terrasser giver dig mulighed for at nyde det middelhavsklima året rundt, mens førsteklasses finish sikrer både stil og komfort. Nøglefunktioner Aluminiumsvinduer med termisk adskillelse og dobbeltglas Pansret hoveddør Badeværelser med spejle, brusevægge og elektrisk gulvvarme Fuldt møblerede køkkener med apparater Klimaanlæg i hele boligen Varmt vand via aerotermisk system Parkeringsplads og opbevaringsrum inkluderet Førsteklasses fællesfaciliteter Beboerne kan nyde store anlagte haver, en stor fælles swimmingpool, et fuldt udstyret fitnesscenter og et afslappende spa. Højdepunktet er den eksklusive tagterrasse med infinity-pool, der tilbyder en uovertruffen panoramaudsigt over Middelhavet. Komplekset kombinerer privatliv, sikkerhed og et moderne design for at skabe et roligt og sofistikeret miljø. Villajoyosa – Costa Blancas skjulte perle Villajoyosa, der for nylig blev kåret som »Europas bedste skjulte destination 2024« af European Best Destinations, er kendt for sine farverige huse ved havet, charmerende gamle bydel og uberørte strande. Her kan du fordybe dig i autentisk middelhavsliv, samtidig med at du er tæt på kosmopolitiske faciliteter. Afstande til de vigtigste seværdigheder: Villajoyosa centrum: 1,5 km Benidorm: 10 km Alicante lufthavn: 40 km Playa del Torres: 0,2 km Playa El Tío Roig: 0,4 km Villaitana Golf: 12 km Alicante havn: 35 km Dit drømmehus ved havet venter på dig i Villajoyosa. Kontakt os i dag for at arrangere en fremvisning og sikre dig din plads i dette unikke samfund ved havet.

Egenskaber

Features

  • lift
    Elevator
  • Privat Terrasse
  • Jacuzzi
  • dresser-drawers-5
    Pulterrum
  • Motionsrum

Parking

  • Privat

Pool

  • Fælles

Security

  • Lukket Kompleks

Setting

  • Nær Havet
  • Strand Første Række
  • Nær Skole
  • Nær Forretninger

Udsigt

  • Hav

Beliggende i

Købekraft

Beregn din månedlige afdrag på lån

Din forventede månedlige ydelse

Bliv forhåndsgodkendt

Bolig-udland samarbejder med Mortage Direct

Vi tilbyder vores kunder de bedst mulige boliglån til ejendomskøb i Spanien. Få det bedste spanske boliglån med Mortgage Direct.

Mere info

Købsomkostninger

Vores udgiftskalkulator giver et skøn over alle omkostninger forbundet med at købe et hus i Spanien. Brug kun disse tal som vejledning: De faktiske tal varierer afhængigt af ejendommen, ejendommens placering og den bank du vælger sammen med andre faktorer. Til det samlede beløb skal du tilføje dine afdrag på dit realkreditlån samt bankgebyrer, hvis din bank opkræver det.

Samlede udgifter

Du kan måske også lide disse boliger