Villa til salg i Orihuela

Bolig ID: RED-SP1152

€549,900

3,142 €/m2


175
4
soveværelser
3
Badeværelser
305
Grundareal

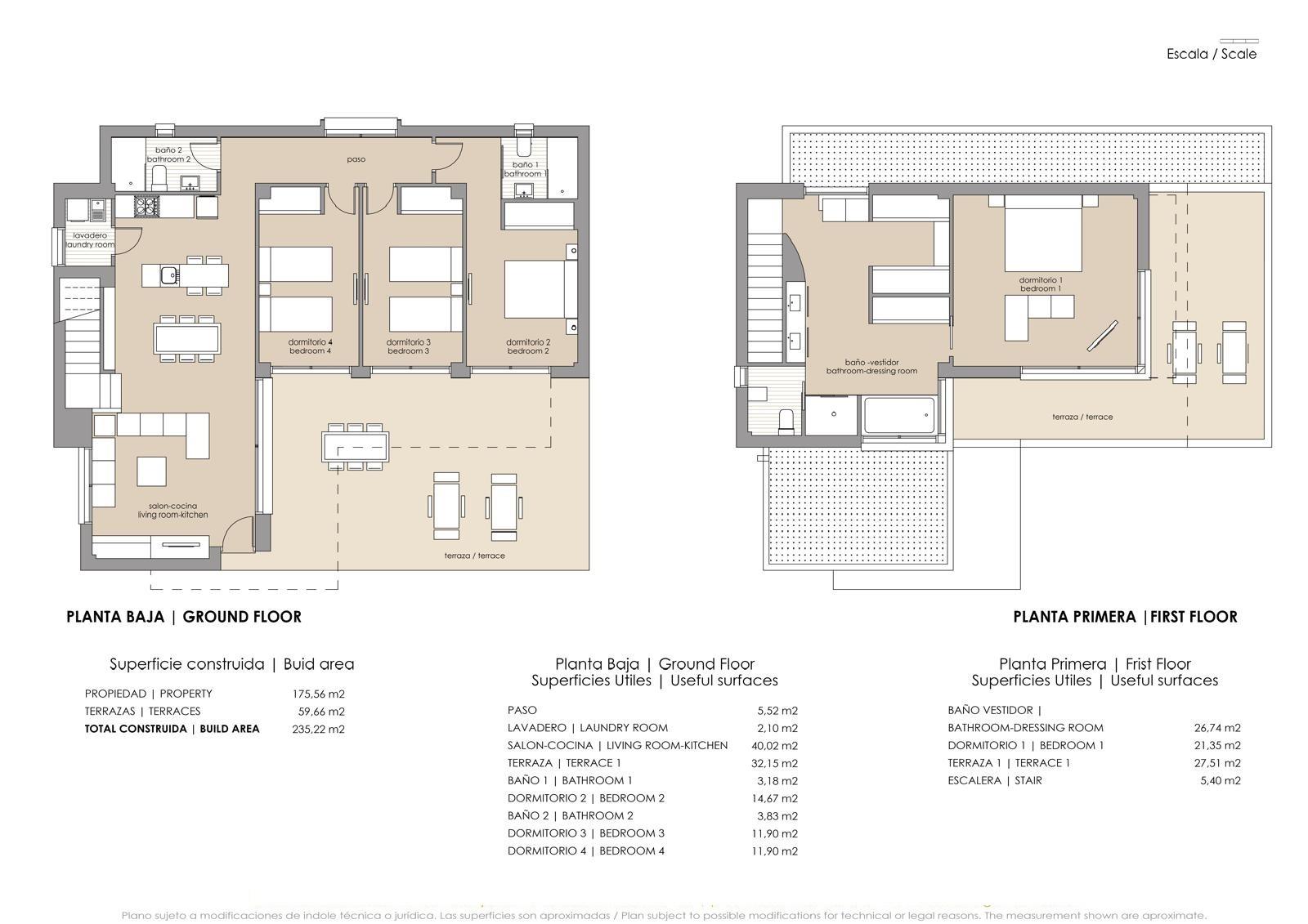
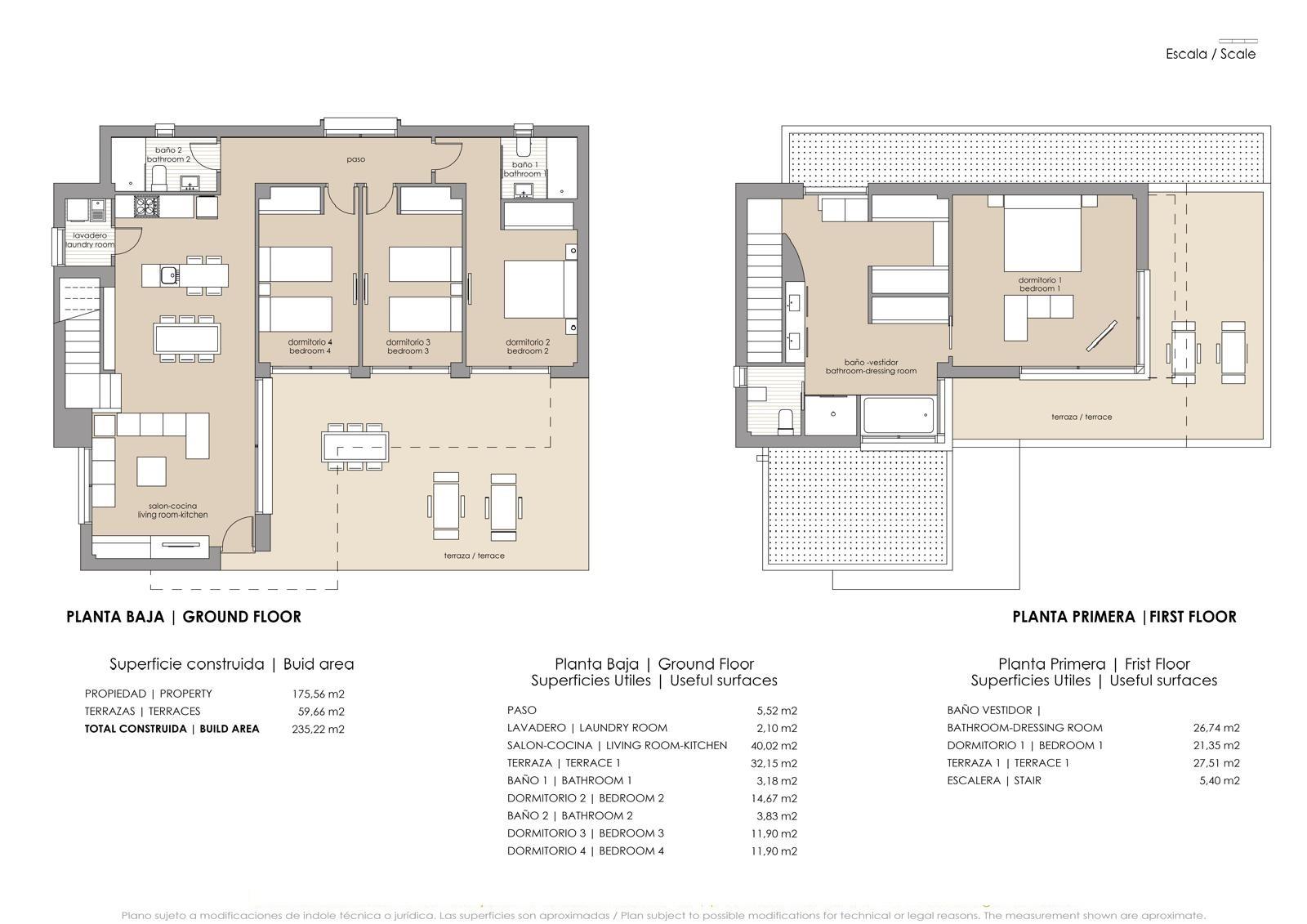
Nybyggede villaer på Vistabella Golf Resort – Orihuela Oplev moderne middelhavsliv i hjertet af Costa Blanca med disse fantastiske nybyggede villaer på Vistabella Golf Resort. Beliggende mellem San Miguel de Salinas og Los Montesinos i kommunen Orihuela tilbyder dette eksklusive byggeri luksus, komfort og en uovertruffen beliggenhed for både golfentusiaster og livsstilsøgende. To forskellige villamodeller Købere kan vælge mellem to elegante designs: Enkeltplansvillaer med 3 soveværelser, 2 badeværelser og solterrasse på taget. Toetagers villaer med 4 soveværelser, 3 badeværelser og solterrasse på første sal. Begge modeller ligger på grunde på ca. 300 m² og har privat pool og parkering på stedet. Førsteklasses kvalitet og moderne komfort Alle villaer har luksuriøse finish, herunder fuldt installeret klimaanlæg, køkken med apparater, udvendig belysning, elektriske skodder og elegante brusevægge i badeværelserne. Kombinationen af stil og funktionalitet sikrer et hjem, der er både smukt og praktisk. Eksklusiv golfresort-livsstil Vistabella Golf Resort er et lukket boligområde med en 18-hullers golfbane, paddle-tennisbaner, en bowlingbane, et supermarked og et bredt udvalg af barer og restauranter. Fremtidige opgraderinger vil løfte resortet til en ægte 5-stjernet destination med planlagte tilføjelser såsom en champagnebar, sushibar, spahotel, kunstig strand, tennisbane, fodboldbane og gourmetbar. Fremragende beliggenhed på Costa Blanca Resortet tilbyder fremragende adgang til regionens bedste strande, golfbaner og servicefaciliteter. Afstande til vigtige seværdigheder inkluderer: La Mata-stranden: 18 km Guardamar del Segura-stranden: 20 km Torrevieja: 15 km Alicante lufthavn: 55 km Murcia lufthavn: 68 km Villamartín Golf: 12 km Las Colinas Golf & Country Club: 14 km Dit drømmehus venter Uanset om det er som permanent bolig, feriehus eller udlejningsejendom, tilbyder disse nybyggede villaer på Vistabella Golf Resort enestående værdi i et af Spaniens mest eftertragtede kystområder. Kontakt os i dag for at arrangere en fremvisning og sikre dig din plads i dette luksuriøse golfsamfund. 849

Egenskaber

Features

  • Privat Terrasse
  • Solterasse

Parking

  • Privat

Pool

  • Private pool

Security

  • Lukket Kompleks

Setting

  • Nær Golf
  • Nær Skole
  • Nær Forretninger

Beliggende i

Købekraft

Beregn din månedlige afdrag på lån

Din forventede månedlige ydelse

Bliv forhåndsgodkendt

Bolig-udland samarbejder med Mortage Direct

Vi tilbyder vores kunder de bedst mulige boliglån til ejendomskøb i Spanien. Få det bedste spanske boliglån med Mortgage Direct.

Mere info

Købsomkostninger

Vores udgiftskalkulator giver et skøn over alle omkostninger forbundet med at købe et hus i Spanien. Brug kun disse tal som vejledning: De faktiske tal varierer afhængigt af ejendommen, ejendommens placering og den bank du vælger sammen med andre faktorer. Til det samlede beløb skal du tilføje dine afdrag på dit realkreditlån samt bankgebyrer, hvis din bank opkræver det.

Samlede udgifter

Du kan måske også lide disse boliger