Villa til salg i Los Belones

Bolig ID: RED-SP0875

€840,000

3,387 €/m2


248
4
soveværelser
3
Badeværelser
570
Grundareal

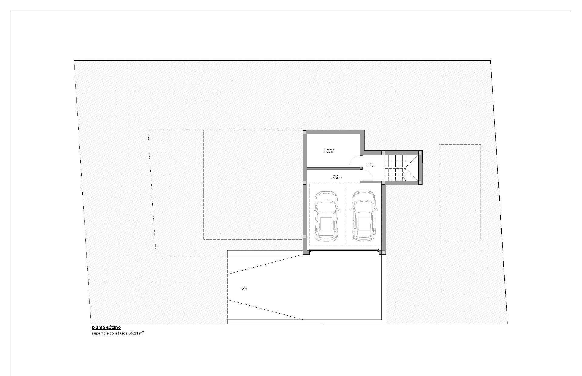
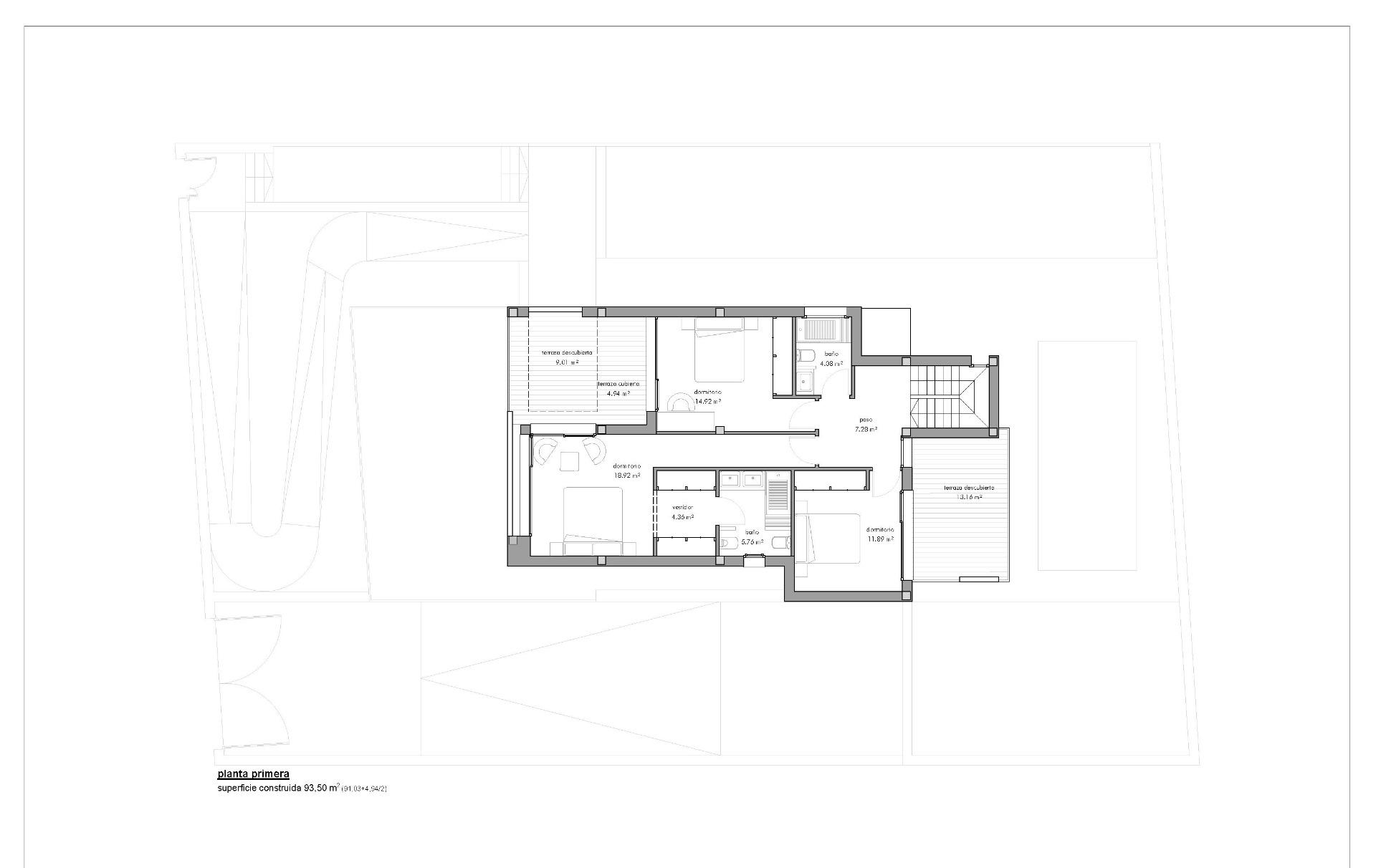
Nybyggede villaer til salg på La Manga Club - luksusliv på et prestigefyldt feriested Moderne, rummelige villaer med central beliggenhed Oplev de fantastiske nybyggede villaer til salg på La Manga Club, der er omhyggeligt designet til at opfylde behovene for en moderne livsstil. Disse luksuriøse ejendomme tilbyder praktisk indretning, førsteklasses finish og adgang til alle faciliteter på dette verdenskendte feriested. Dette eksklusive byggeri ligger i hjertet af La Manga Club og har 29 rummelige grunde på mellem 500 m² og 746 m². Købere kan vælge villaer med 2, 3 eller 4 soveværelser, komplet med private pools, anlagte haver og sikker parkering. Uanset om du er på udkig efter et feriehus eller en permanent bolig, tilbyder disse villaer en perfekt blanding af komfort, stil og bekvemmelighed. Førsteklasses funktioner og finish af høj kvalitet Hver villa er bygget efter de højeste standarder med moderne designelementer og avanceret teknologi for maksimal komfort. Nøglefunktionerne omfatter: Højtydende tømrerarbejde i aluminium med kuldebroer (CORTIZO eller lignende). Isolerende termoruder for energieffektivitet og komfort. Hjemmeautomatiseringssystemer til styring af belysning, elektricitet og elektronik. Aerotermiske systemer til opvarmning, køling og varmt brugsvand. Højeffektiv ventilation med kontrollerede mekaniske systemer. Sikkerhedsfunktioner, herunder alarmsystemer og forudinstalleret videoovervågning. Eksklusiv beliggenhed - La Manga Club Resort La Manga Club er et af Europas førende sports- og fritidsresorts, som tilbyder en enestående livsstil i fantastiske middelhavsomgivelser. Resortet dækker 1.400 acres (560 hektar) og er omgivet af naturparker og uspolerede strande, hvilket giver betagende omgivelser og solskin året rundt. Beboerne har adgang til faciliteter i verdensklasse, bl.a: Tre 18-hullers mesterskabsgolfbaner The Racquets Club med 28 tennis- og padelbaner Fitness- og spafaciliteter i Grand Hyatt La Manga Club Golf & Spa Privat adgang til stranden og fine spisemuligheder Fodboldbaner i FIFA-standard til sportsentusiaster Fremragende forbindelser og attraktioner i nærheden La Manga Club har en perfekt beliggenhed med fremragende transportforbindelser til større europæiske byer: Corvera Lufthavn - 50 km (ca. 35 minutter i bil) Alicante lufthavn - 100 km (ca. 1 time i bil) Andre interessante steder i nærheden omfatter: Strande - Mindre end 3 km til den uberørte middelhavskyst Golfbaner - På stedet med tre mesterskabsbaner Indkøbscentre - 10-15 km væk til alle dine indkøbsbehov Marinaer og havne - Tilgængelige inden for 20 km for sejlere og vandsportselskere Det ideelle sted for luksusliv La Manga Club tilbyder et levende og sikkert samfund, der er ideelt for familier, pensionister og golfentusiaster. Nyd en fredelig og privat livsstil med adgang til førsteklasses faciliteter, alt sammen omgivet af naturlig skønhed og moderne bekvemmeligheder. Oplev luksusliv, når det er bedst, med disse nybyggede villaer i La Manga Club. Gå ikke glip af denne mulighed for at eje et hjem i et af Europas mest prestigefyldte feriesteder. Kontakt os nu for flere detaljer eller for at aftale et besøg.

Egenskaber

Climate control

  • A/C

Features

  • Privat Terrasse
  • dresser-drawers-5
    Pulterrum

Parking

  • Mere end én

Pool

  • Private pool

Security

  • Lukket Kompleks

Setting

  • Nær Golf
  • Nær Skole
  • Nær Forretninger

Beliggende i

Købekraft

Beregn din månedlige afdrag på lån

Din forventede månedlige ydelse

Bliv forhåndsgodkendt

Bolig-udland samarbejder med Mortage Direct

Vi tilbyder vores kunder de bedst mulige boliglån til ejendomskøb i Spanien. Få det bedste spanske boliglån med Mortgage Direct.

Mere info

Købsomkostninger

Vores udgiftskalkulator giver et skøn over alle omkostninger forbundet med at købe et hus i Spanien. Brug kun disse tal som vejledning: De faktiske tal varierer afhængigt af ejendommen, ejendommens placering og den bank du vælger sammen med andre faktorer. Til det samlede beløb skal du tilføje dine afdrag på dit realkreditlån samt bankgebyrer, hvis din bank opkræver det.

Samlede udgifter

Du kan måske også lide disse boliger

4 sovevær. · 4 badevær. · 569 m²
€2,600,000 - €2,600,000
REF. ID: R4849708
Nybyg/ Projektsalg