Stueetagelejlighed til salg i La Nucia

Bolig ID: RED-SP0642

€438,000

5,475 €/m2


80
2
soveværelser
2
Badeværelser
0
Grundareal

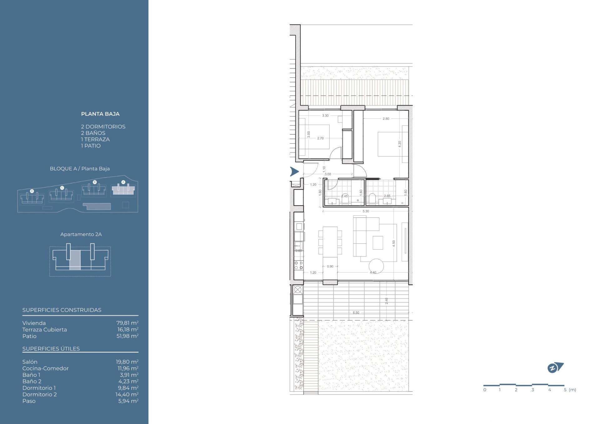
NYBYGGET BOLIGKOMPLEKS I LA NUCIA Nybygget boligkompleks med lejligheder og penthouselejligheder med udendørs fælles pool, parkering, opbevaringsrum, elevator, fitnesscenter, fælles spa med indendørs opvarmet pool, sauna, jacuzzi i La Nucia. Moderne ejendomme med 2 og 3 soveværelser, alle med 2 badeværelser, åbent køkken med rummelig stue, indbyggede skabe, terrasse, underjordisk parkeringsplads. Penthouselejlighederne har privat solarium. Fremragende avantgarde-arkitektur, udsøgt finish og avancerede tjenester, en drømmeurbanisering for dem, der leder efter det højeste niveau af komfort og udmærkelse. Interiører, der kombinerer elegant design og moderne raffinement, skaber rum, der gør hver dag til en enestående oplevelse af komfort og velvære. Tysk designerkøkken, Burger eller lignende, med Silestone-bordplade, fuldt udstyret. Siemens-apparater eller lignende. Induktionskogeplade, emhætte, ovn og køleskab og opvaskemaskine integreret i enhederne. Forstærket adgangsdør til ejendommen med sikkerhedslås færdig med lakeret panel, der matcher det indvendige tømrerarbejde. Mulighed for at montere lås med fjernbetjening fra smartphone eller tablet. Modulære garderobeskabe med hængslede døre eller skydedøre, der er lakeret, så de passer til resten af snedkerarbejdet, inklusive bagagerum, skuffer og bøjlestang. Ejendommen vil være forberedt til at kunne trække højhastighedsinternet. Der vil være elektrisk gulvvarme med lavt forbrug i badeværelserne. Videointercom vil være elektronisk med farvebillede og vil have integreret fjernbetjening fra telefon eller tablet. Samsung klimaanlæg. Hvert værelse har sin egen indvendige maskine og uafhængig kontrol. Klimaanlægget vil have fjernbetjening. Det kan styres fra en telefon eller tablet. Den komplette installation af klimaanlægget vil blive udført med en varmepumpe, der leverer både køling og opvarmning. Der vil også blive brugt kanaler af glasfiber. Indendørsenhederne vil blive placeret i det falske loft i badeværelserne og korridorområdet, mens udendørsenheden vil blive installeret i det område, der er tildelt i projektet. Ventilation. Installation af indvendig luftfornyelse i boligerne med udsugning i badeværelser og køkken og ur til programmering af tidsplanen. Swimmingpool til fælles brug med saltvandsklorering og automatisk kontrol af PH og klor. I kælderen vil der være en gymnastiksal, indendørs opvarmet pool, jacuzzi, sauna, dampbad, kromoterapi og omklædningsrum med badeværelser. Store terrasseområder og haver med indfødte planter til flere formål i fællesområdet. Omkredsen af grunden vil blive beplantet med planter, der vil skabe en privat atmosfære i indhegningen, når de vokser. Der vil være et videoovervågningssystem til fællesområderne. Denne bolig har en privilegeret beliggenhed mellem Nucia og Altea og nyder godt af et enestående miljø og fremragende tjenester i urbaniseringen.

Egenskaber

Climate control

  • A/C

Features

  • lift
    Elevator
  • Privat Terrasse
  • Jacuzzi
  • bus-2
    Tæt På Transport
  • dresser-drawers-5
    Pulterrum
  • Motionsrum

Parking

  • Privat

Pool

  • Fælles

Security

  • Lukket Kompleks

Setting

  • Nær Skole
  • Nær Forretninger

Beliggende i

Købekraft

Beregn din månedlige afdrag på lån

Din forventede månedlige ydelse

Bliv forhåndsgodkendt

Bolig-udland samarbejder med Mortage Direct

Vi tilbyder vores kunder de bedst mulige boliglån til ejendomskøb i Spanien. Få det bedste spanske boliglån med Mortgage Direct.

Mere info

Købsomkostninger

Vores udgiftskalkulator giver et skøn over alle omkostninger forbundet med at købe et hus i Spanien. Brug kun disse tal som vejledning: De faktiske tal varierer afhængigt af ejendommen, ejendommens placering og den bank du vælger sammen med andre faktorer. Til det samlede beløb skal du tilføje dine afdrag på dit realkreditlån samt bankgebyrer, hvis din bank opkræver det.

Samlede udgifter

Du kan måske også lide disse boliger