Lejlighed til salg i Alicante

Bolig ID: RED-N9358

€298,900

3,558 €/m2


84
2
soveværelser
2
Badeværelser
0
Grundareal

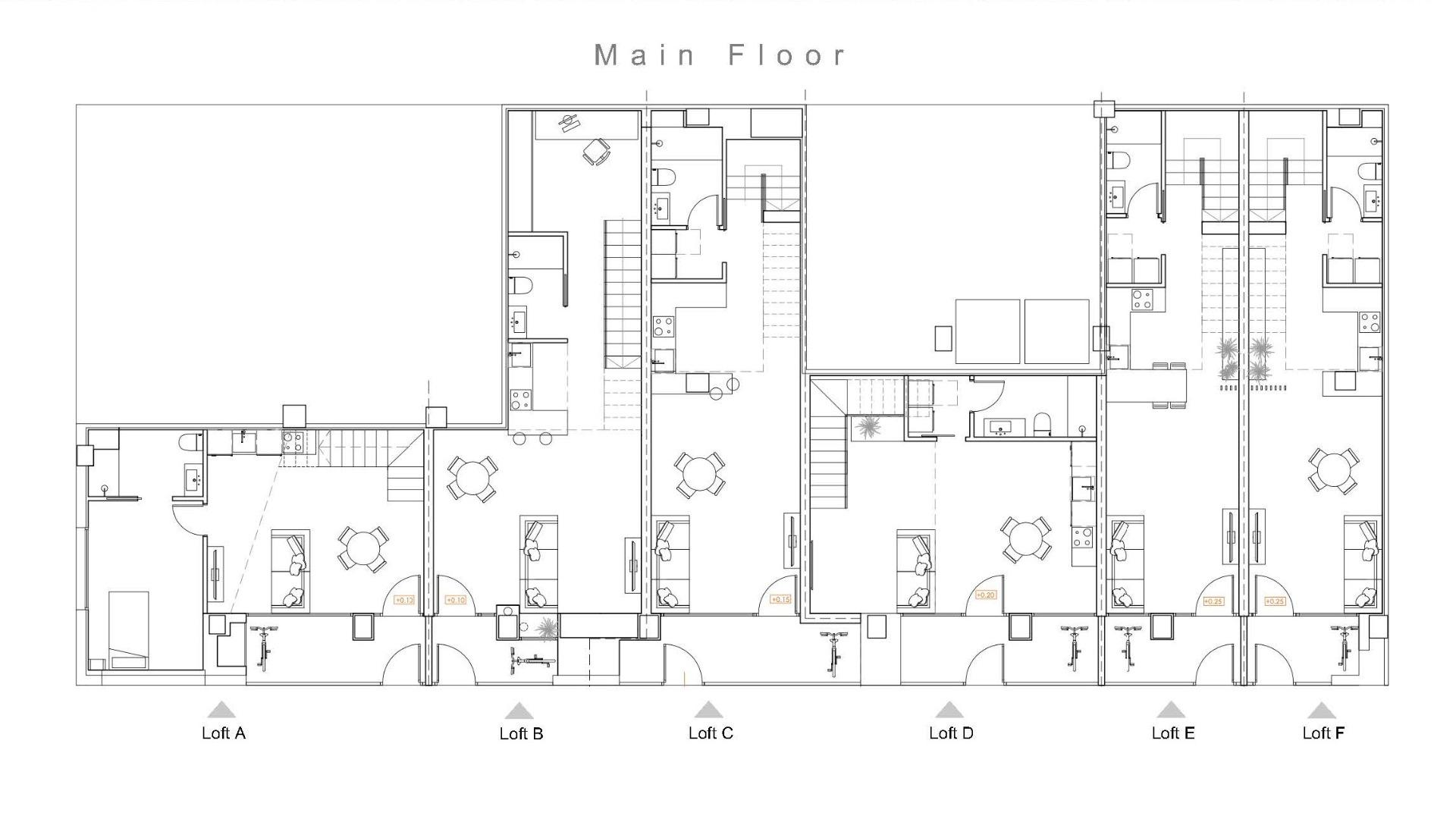
Moderne duplex-loftlejligheder i hjertet af Alicante Eksklusivt nyt byggeri i Benalúa-kvarteret Oplev en enestående mulighed for at eje en stilfuld duplex-loftlejlighed i Benalúa, et af de mest livlige og velforbundne kvarterer i Alicante. Dette unikke projekt omdanner seks ubrugte erhvervsenheder til moderne boliglofts, der tilbyder en moderne urban livsstil kun 1 km fra Middelhavskysten. Benalúa er kendt for sine lokale butikker, caféer, kulturelle aktiviteter og sin nærhed til byens centrum, hvilket gør det til et meget eftertragtet område for både beboere og investorer. Moderne loft-stil design Hver bolig er blevet fuldstændig redesignet for at tilbyde et friskt, åbent og elegant boligareal. Projektet omfatter 1- og 2-værelses duplex-lofts med 2 badeværelser, alle med imponerende dobbelthøje områder, der forbedrer det naturlige lys og giver en ægte loftstemning. Den øverste etage rummer et soveværelse og et fuldt udstyret badeværelse, hvilket skaber privatliv og komfort. Med uafhængig adgang fra gaden og privat terrasse kombinerer hver lejlighed moderne arkitektur med praktisk bolig. Højkvalitets finish, moderne indretning og lyse interiører gør disse lofts til et fremragende valg for dem, der søger stil og funktionalitet. Komfort og fælles faciliteter Beboerne har adgang til en fælles swimmingpool i bygningen, der skaber en afslappende og forfriskende atmosfære på varme middelhavsdage. De private terrasser og separate indgange tilføjer ekstra bekvemmelighed og eksklusivitet. Fremragende beliggenhed tæt på vigtige seværdigheder Bebyggelsen er perfekt beliggende til både beboelse og investering og er omgivet af vigtige faciliteter og store attraktioner: Alicante strandpromenade: 1 km Renfe togstation: 0,8 km El Corte Inglés shoppingcenter: 0,7 km Alicante retspalads: 0,5 km Alicante lufthavn: 12 km Alicante marina og havn: 2 km Golfbaner (Alicante Golf): 7 km Området tilbyder fremragende offentlige transportforbindelser, kulturelle attraktioner, grønne områder og nem adgang til byens smukke strande. En smart investering i Alicantes kystliv Uanset om du er på udkig efter en primær bolig, en feriebolig eller en investering med stort udlejningspotentiale, udgør disse duplex-loftlejligheder i Benalúa en unik mulighed i et af Alicantes mest lovende områder. Kontakt os i dag for at reservere din eksklusive loftlejlighed og nyd det moderne liv i hjertet af Alicante.

Egenskaber

Climate control

  • A/C

Features

  • Privat Terrasse
  • bus-2
    Tæt På Transport

Pool

  • Fælles

Setting

  • Nær Havet
  • Nær Skole
  • Nær Forretninger

Beliggende i

Købekraft

Beregn din månedlige afdrag på lån

Din forventede månedlige ydelse

Bliv forhåndsgodkendt

Bolig-udland samarbejder med Mortage Direct

Vi tilbyder vores kunder de bedst mulige boliglån til ejendomskøb i Spanien. Få det bedste spanske boliglån med Mortgage Direct.

Mere info

Købsomkostninger

Vores udgiftskalkulator giver et skøn over alle omkostninger forbundet med at købe et hus i Spanien. Brug kun disse tal som vejledning: De faktiske tal varierer afhængigt af ejendommen, ejendommens placering og den bank du vælger sammen med andre faktorer. Til det samlede beløb skal du tilføje dine afdrag på dit realkreditlån samt bankgebyrer, hvis din bank opkræver det.

Samlede udgifter

Du kan måske også lide disse boliger

Anbefalet
Alicante City
3 sovevær. · 2 badevær. · 85 m²
€361,600 - €497,000
REF. ID: PROCBS-AED102
Nybyg/ Projektsalg Anbefalet