Villa til salg i Dolores

Bolig ID: RED-N9269

€465,000

2,541 €/m2


183
3
soveværelser
2
Badeværelser
256
Grundareal

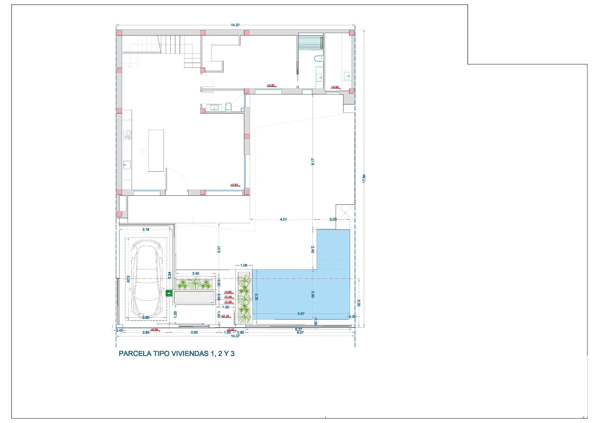
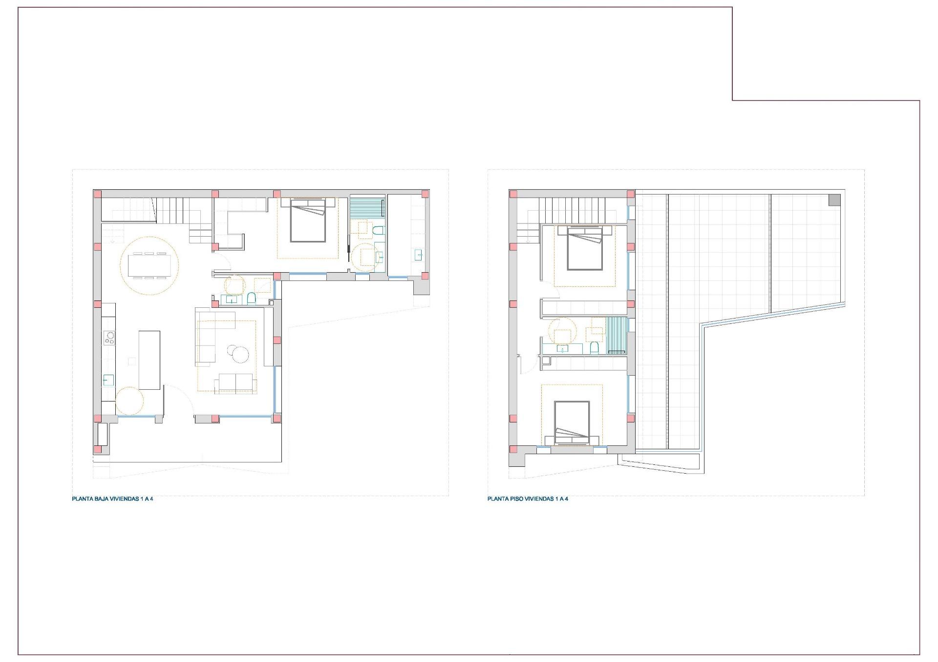
Moderne nybyggede villaer i Dolores, Alicante Moderne bolig i hjertet af Vega Baja Oplev dette eksklusive nybyggede villaområde i Dolores, en charmerende by i Vega Baja del Segura-regionen syd for Alicante. Dolores er kendt for sin traditionelle spanske karakter og er omgivet af frodig natur. Byen tilbyder en fredelig livsstil og har samtidig alle daglige faciliteter inden for gåafstand – butikker, restauranter, skoler og lokale tjenester. Beliggende kun 12 km fra strandene i La Marina og Guardamar del Segura og med nem adgang til motorvej AP-7, er dette boligområde perfekt forbundet med de vigtigste kystbyer på Costa Blanca. Elegante moderne villaer med privat pool Disse moderne to-etagers villaer er designet med henblik på komfort, funktionalitet og stil. I stueetagen finder du et lyst åbent køkken, der er forbundet med stue-spisestuen, med store skydedøre, der åbner direkte ud til terrassen og den private have med swimmingpool. Stueetagen har også et soveværelse med eget badeværelse, et gæstetoilet og et praktisk udendørs vaskerum. På første sal er der to ekstra soveværelser, et badeværelse og adgang til en stor 60 m2 åben terrasse, perfekt til solbadning eller afslapning, mens du nyder det middelhavsklima. Hvert hus har privat parkering inde på grunden. Kvalitetsfinish og moderne komfort Disse villaer er bygget med materialer af høj kvalitet og moderne design og er fuldt udstyrede til helårsbeboelse. De vigtigste funktioner omfatter: Udvendigt tømrerarbejde med termisk broafbrydelse Motoriserede persienner Varmtvandssystem drevet af aerotermisk energi Fuldt installeret kanaliseret aircondition Privat swimmingpool Privat parkering og anlagt have Interiøret kombinerer elegance og funktionalitet, maksimerer det naturlige lys og tilbyder et enestående boligmiljø med en stærk forbindelse mellem indendørs og udendørs rum. Fremragende beliggenhed tæt på alt Dolores har en strategisk beliggenhed, der giver en balance mellem ro og tilgængelighed. Vigtige afstande: Strandene i La Marina og Guardamar del Segura: 12 km Alicante Lufthavn (Elche-El Altet): 30 km (25 minutter i bil) Murcia-Corvera Lufthavn: 70 km (1 time i bil) Golfbaner: 15 km Alicante by: 40 km Lev den middelhavsinspirerede livsstil i Dolores Disse nybyggede villaer i Dolores tilbyder den perfekte kombination af moderne design, komfort og nærhed til kysten. De er ideelle til både permanent ophold og ferieophold og tilbyder en fredfyldt middelhavsinspireret livsstil omgivet af natur og bekvemmeligheder. Kontakt os i dag for at arrangere en fremvisning og gøre dit drømmehus i Dolores til virkelighed.

Egenskaber

Features

  • Privat Terrasse
  • Solterasse
  • home-improvement-12_1
    Vaskehus

Parking

  • Privat

Pool

  • Private pool

Security

  • Lukket Kompleks

Setting

  • Nær Skole
  • Nær Forretninger

Beliggende i

Købekraft

Beregn din månedlige afdrag på lån

Din forventede månedlige ydelse

Bliv forhåndsgodkendt

Bolig-udland samarbejder med Mortage Direct

Vi tilbyder vores kunder de bedst mulige boliglån til ejendomskøb i Spanien. Få det bedste spanske boliglån med Mortgage Direct.

Mere info

Købsomkostninger

Vores udgiftskalkulator giver et skøn over alle omkostninger forbundet med at købe et hus i Spanien. Brug kun disse tal som vejledning: De faktiske tal varierer afhængigt af ejendommen, ejendommens placering og den bank du vælger sammen med andre faktorer. Til det samlede beløb skal du tilføje dine afdrag på dit realkreditlån samt bankgebyrer, hvis din bank opkræver det.

Samlede udgifter

Du kan måske også lide disse boliger

3 sovevær. · 2 badevær. · 102 m²
€479,900 - €479,900
REF. ID: R4767697
Nybyg/ Projektsalg
3 sovevær. · 3 badevær. · 165 m²
€425,000 - €450,000
REF. ID: R5106226
Nybyg/ Projektsalg
3 sovevær. · 2 badevær. · 126 m²
€394,900 - €434,900
REF. ID: R5261482
Nybyg/ Projektsalg