Lejlighed til salg i Hondón de las Nieves

Bolig ID: RED-N8775

€205,000

2,470 €/m2


83
2
soveværelser
2
Badeværelser
0
Grundareal

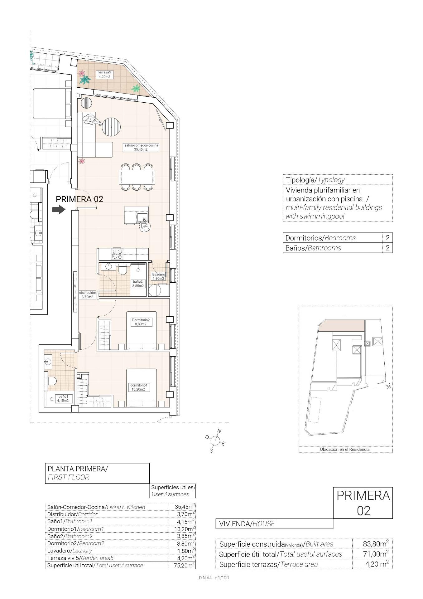
Eksklusive nybyggede lejligheder med udsigt over vinmarkerne i Hondón de las Nieves Moderne boliger i unikke naturomgivelser Oplev dette nye lejlighedskompleks i Hondón de las Nieves, en charmerende landsby, der ligger i en smuk dal omgivet af oliven- og mandellunde. Byggeriet består af 15 eksklusive boliger med 2 og 3 soveværelser, som alle er designet til at give maksimal komfort, energieffektivitet og en fantastisk udsigt over Vinalopó-vinmarkerne. Denne fredelige enklave ligger i Vinalopó Medio og er ideel til dem, der søger en afslappet middelhavsstil med let adgang til naturen og alle vigtige tjenester. Funktioner af høj kvalitet og moderne design Hver lejlighed er designet med materialer i topkvalitet og et funktionelt layout, der tilbyder: Rummelige og åbne opholdsrum, der er ideelle til et moderne liv. Fuldt udstyrede køkkener med bordplader i granit. Førsteklasses badeværelser med indbyggede cisterner og sanitetsartikler i topkvalitet. Energieffektivitet med aerotermisk system til varmt vand. Forudinstallation af kanaliseret aircondition, der garanterer komfort på alle årstider. Aluminiumsvinduer med dobbeltruder, der giver termisk og akustisk isolering. Forstærket sikkerhedsindgangsdør for ro i sindet. Parkeringsplads og opbevaringsrum i kælderen, inkluderet i prisen. Elevator i bygningen, der sikrer tilgængelighed og komfort. Solpaneler på taget for at forbedre energieffektiviteten og reducere vedligeholdelsesomkostningerne. Derudover har boligen en fælles swimmingpool, perfekt til at nyde middelhavsklimaet. Privilegeret beliggenhed i Hondón de las Nieves Hondón de las Nieves er en by med en stor vindyrkningstradition, der er berømt for sine spisedruer med oprindelsesbetegnelsen Vinalopó. Området er omgivet af Sierra de Crevillente og byder på mange vandrestier, naturområder og et rigt kulturelt og historisk udbud. Fra dit nye hjem har du hurtig adgang til de vigtigste seværdigheder i området: Alicante lufthavn - 30 km (30 minutter i bil). Alicantes strande - 35 km (35 minutter i bil) Elche - 20 km (20 minutter i bil) Crevillente naturpark - 10 km (15 minutters kørsel) Golfbaner - 25 km (30 minutters kørsel) Et ideelt hjem på Costa Blanca Nyd roen i Hondón-dalen uden at give afkald på nærheden til Alicante og Elche. Uanset om det er en permanent bolig, et feriehus eller en investeringsejendom, er disse moderne lejligheder et uovertruffent valg. Kontakt os i dag for mere information eller for at arrangere en besigtigelse.

Egenskaber

Climate control

  • A/C

Features

  • lift
    Elevator
  • Termoruder
  • dresser-drawers-5
    Pulterrum

Kitchen

  • Fuldt Udstyret

Setting

  • Nær Golf
  • Nær Havet
  • shanty-house-village-1
    Nær By
  • Nær Marina

Beliggende i

Købekraft

Beregn din månedlige afdrag på lån

Din forventede månedlige ydelse

Bliv forhåndsgodkendt

Bolig-udland samarbejder med Mortage Direct

Vi tilbyder vores kunder de bedst mulige boliglån til ejendomskøb i Spanien. Få det bedste spanske boliglån med Mortgage Direct.

Mere info

Købsomkostninger

Vores udgiftskalkulator giver et skøn over alle omkostninger forbundet med at købe et hus i Spanien. Brug kun disse tal som vejledning: De faktiske tal varierer afhængigt af ejendommen, ejendommens placering og den bank du vælger sammen med andre faktorer. Til det samlede beløb skal du tilføje dine afdrag på dit realkreditlån samt bankgebyrer, hvis din bank opkræver det.

Samlede udgifter

Du kan måske også lide disse boliger