Villa til salg i Pinoso

Bolig ID: RED-N8298

€345,000

2,091 €/m2


165
3
soveværelser
2
Badeværelser
10000
Grundareal

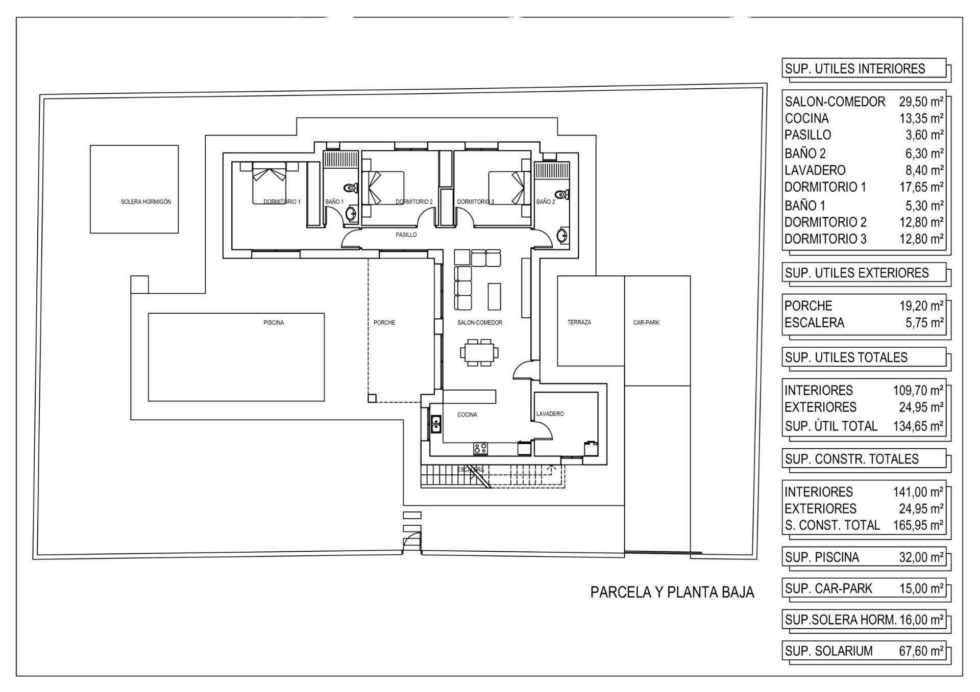
NYBYGGEDE VILLAER I PINOSO Nybyggeri Uafhængige moderne villaer, der kan bygges på rustikke eller urbane grunde, vi har et bredt udvalg til rådighed i området Pinoso: - 3 soveværelser, 2 badeværelser - Privat swimmingpool - Solarium - Fuld installation af aircondition - Fuldt udstyret køkken - Stort udvalg af kvalitetsmaterialer - Indlagt elektricitet og vand - 4 solpaneler inkluderet - AA energimærke - Grunde fra 10.000 m2 på forskellige steder at vælge imellem. - 3.000 m² indhegnet grund for nem vedligeholdelse - Motoriseret skydeport På de rustikke grunde vil ca. 3.000 m2 af den samlede grund være indhegnet, og husene vil blive leveret med ca. 1.000 m2 grus omkring huset. Huset har en privat swimmingpool og fotovoltaiske solpaneler til elforsyningen. Der er flere rustikke grunde at vælge imellem på forskellige steder, hver med en forskellig pris (i de priser, der er offentliggjort i denne annonce, er der taget højde for en grund med en værdi på 40.000 euro, hvis køberen vælger en anden grund, vil den endelige pris blive genberegnet i overensstemmelse hermed). Leveringsperioden er 8 måneder fra udstedelsen af byggetilladelsen. Den erhverves under en selvpromoveringsordning: køberen betaler prisen i takt med, at bygherren udfører arbejdet.

Egenskaber

Climate control

  • A/C

Features

  • Solterasse

Beliggende i

Købekraft

Beregn din månedlige afdrag på lån

Din forventede månedlige ydelse

Bliv forhåndsgodkendt

Bolig-udland samarbejder med Mortage Direct

Vi tilbyder vores kunder de bedst mulige boliglån til ejendomskøb i Spanien. Få det bedste spanske boliglån med Mortgage Direct.

Mere info

Købsomkostninger

Vores udgiftskalkulator giver et skøn over alle omkostninger forbundet med at købe et hus i Spanien. Brug kun disse tal som vejledning: De faktiske tal varierer afhængigt af ejendommen, ejendommens placering og den bank du vælger sammen med andre faktorer. Til det samlede beløb skal du tilføje dine afdrag på dit realkreditlån samt bankgebyrer, hvis din bank opkræver det.

Samlede udgifter

Du kan måske også lide disse boliger

3 sovevær. · 2 badevær. · 125 m²
€365,000 - €365,000
REF. ID: R5206231
Nybyg/ Projektsalg