Byhus/Rækkehus til salg i Pilar de la Horadada

Bolig ID: RED-N8281

€519,900

5,097 €/m2


102
3
soveværelser
2
Badeværelser
116
Grundareal

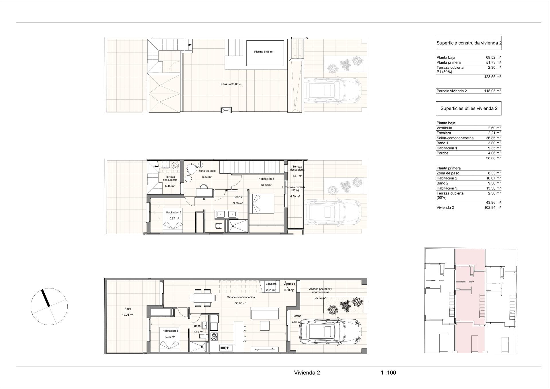
NYBYGGEDE RÆKKEHUSE I TORRE DE LA HORADADA Nybyggeriet skiller sig ud med sit udvendige design, en kombination af rene linjer og belagte elementer, som giver en unik, moderne og elegant stil til dette hjem ved stranden. Med sydøstlig orientering og beliggende i et etableret boligområde er det et ideelt hjem til at nyde middelhavslivet. Dens indvendige fordeling fortjener også særlig opmærksomhed, detaljer, der er nøje gennemtænkt for at give maksimal komfort til sine ejere og forbedre rummets æstetik. Derfor er der i stueetagen skabt et "åbent og lyst" rum, hvor stue, spisestue og køkken er forbundet via skydedøre til en indvendig gårdhave til udendørs brug og nydelse hele året rundt. Enkelhed er nøglen til denne kollektion. Igen med en enkel hvid metalkonstruktion og glasrækværk bliver trappen det perfekte supplement til at bevare lysstyrken og rummeligheden fra indgangen. Et soveværelse med adgang til terrassen og et badeværelse fuldender fordelingen på denne etage. Dette rækkehus venter stadig på en meget speciel del: dets overetage. Når du går op ad trappen, når du et chill out-rum, forrum til solariet: et hyggeligt hjørne med læseområde og skrivebord. Denne multifunktionelle landing giver plads til to rummelige soveværelser, et af dem med privat terrasse, og begge deler et elegant badeværelse med sine 10m2 overflade. Torre de la Horadada ligger syd for Alicante i en smuk beliggenhed ved kysten. De smukke strande i Torre de la Horadada og Mil Palmeras har fint sand og en smuk strandpromenade. Der er masser af restauranter, barer og butikker, også vandsport, dykning og snorkling. Der er gode forbindelser, kun 40 minutter fra lufthavnene i Alicante og Murcias Corvera, og store kommercielle indkøbscentre og flere golfbaner er alle inden for rækkevidde.

Egenskaber

Features

  • Solterasse

Setting

  • Nær Golf
  • Nær Forretninger
  • Nær Havet
  • shanty-house-village-1
    Nær By
  • Nær Marina

Beliggende i

Købekraft

Beregn din månedlige afdrag på lån

Din forventede månedlige ydelse

Bliv forhåndsgodkendt

Bolig-udland samarbejder med Mortage Direct

Vi tilbyder vores kunder de bedst mulige boliglån til ejendomskøb i Spanien. Få det bedste spanske boliglån med Mortgage Direct.

Mere info

Købsomkostninger

Vores udgiftskalkulator giver et skøn over alle omkostninger forbundet med at købe et hus i Spanien. Brug kun disse tal som vejledning: De faktiske tal varierer afhængigt af ejendommen, ejendommens placering og den bank du vælger sammen med andre faktorer. Til det samlede beløb skal du tilføje dine afdrag på dit realkreditlån samt bankgebyrer, hvis din bank opkræver det.

Samlede udgifter

Du kan måske også lide disse boliger