Lejlighed til salg i Benijófar

Bolig ID: RED-N7981

€354,000

3,890 €/m2


91
3
soveværelser
2
Badeværelser
0
Grundareal

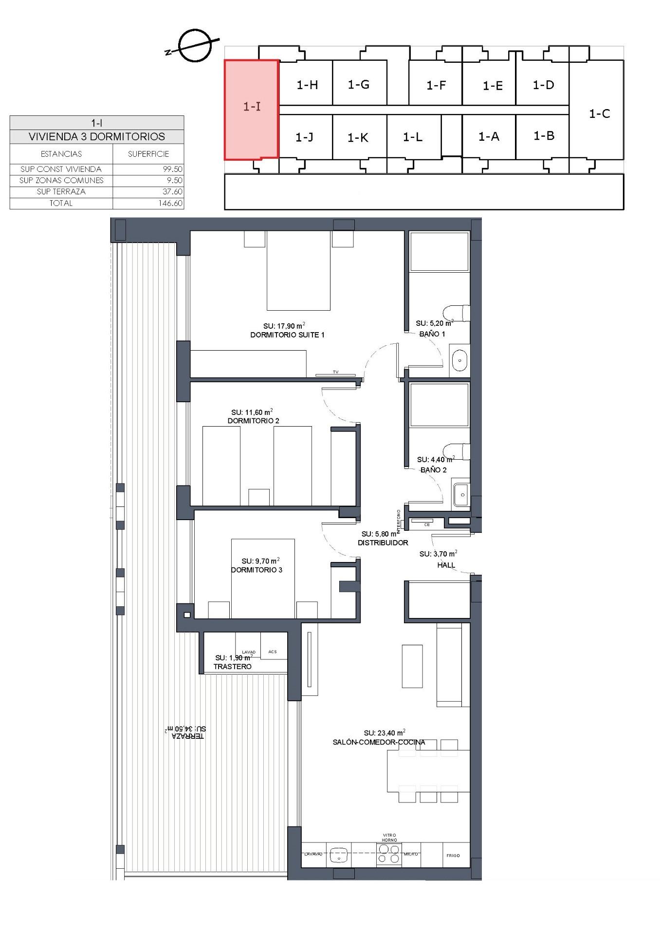
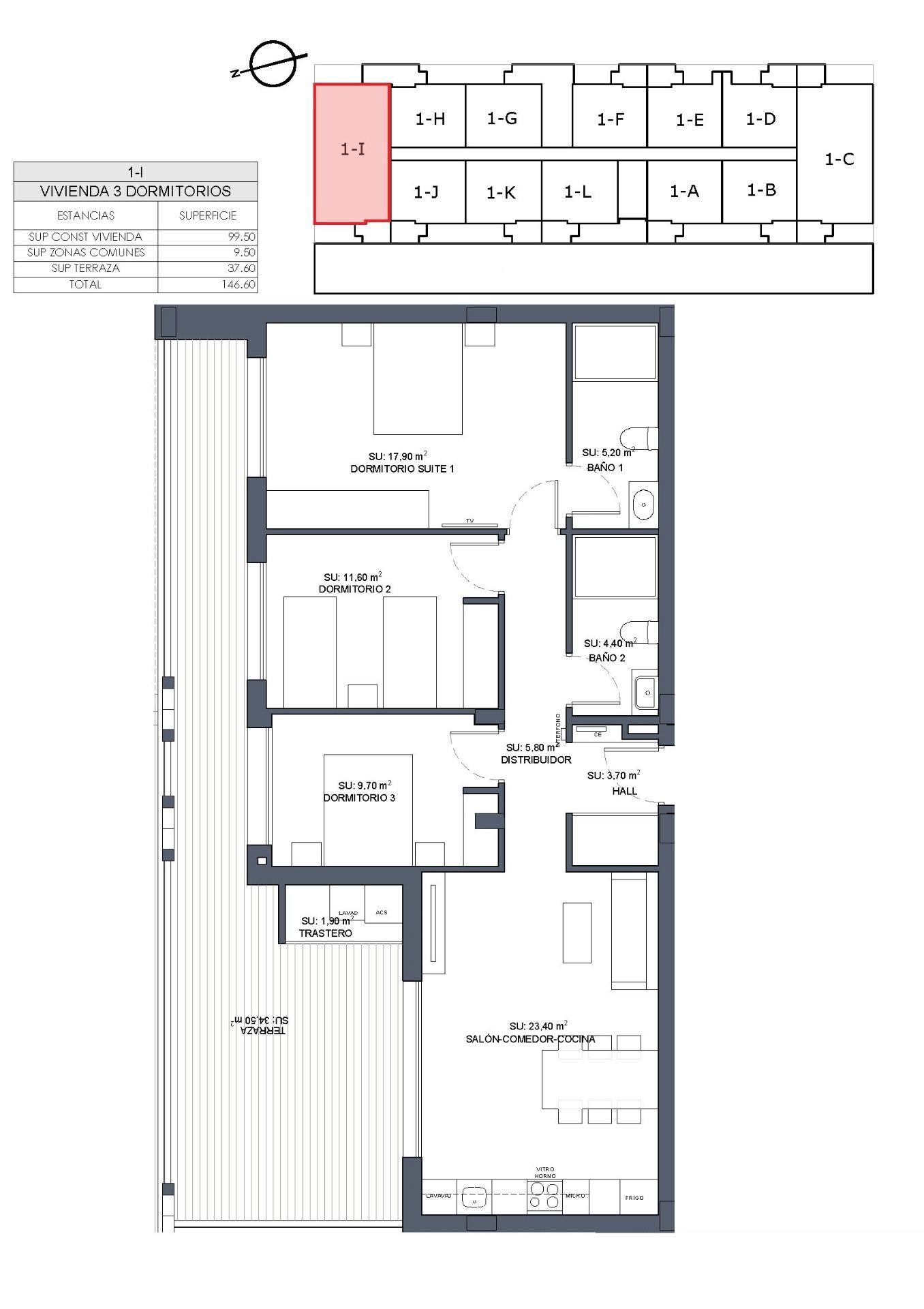
NYBYGGET BOLIG I BENIJOFAR Nybyggeri med fælles pool på taget beliggende i centrum af den charmerende landsby Benijofar. Du kan vælge moderne lejligheder med terrasser eller penthouselejligheder med solarium. Nybyggede moderne boliger med åbent køkken og stue, 2 og 3 soveværelser, 2 badeværelser, terrasser. Mulighed for underjordisk parkeringsplads mod et ekstra gebyr. Benijofar er en dejlig landsby med en charmerende kirke og et attraktivt torv/plaza, der ligger inde i landet på den sydlige Costa Blanca, tæt på turistbyerne Guardamar del Segura og Torrevieja. Benijofar er også et populært sted at bo i sommerferien, da det er tæt nok på kystbyerne, men alligevel roligt nok til at kunne komme væk fra det hele. Der er flere golfbaner i nærheden samt vandlande i Rojales og Torrevieja. De nærmeste og bedste strande til Benijofar ligger cirka femten minutter væk i bil og er nogle af de bedste strande på den sydlige Costa Blanca, ved Guardamar del Segura og Torrevieja. Der er også regelmæssige busforbindelser fra Benijofar til Guardamar del Segura og Torrevieja med nem adgang til strandene. 20 minutters kørsel til Alicante lufthavn med regelmæssige flyvninger over hele Europa.

Egenskaber

Climate control

  • A/C

Features

  • lift
    Elevator
  • Privat Terrasse

Pool

  • Fælles

Security

  • Lukket Kompleks

Setting

  • Nær Skole
  • Nær Forretninger

Beliggende i

Købekraft

Beregn din månedlige afdrag på lån

Din forventede månedlige ydelse

Bliv forhåndsgodkendt

Bolig-udland samarbejder med Mortage Direct

Vi tilbyder vores kunder de bedst mulige boliglån til ejendomskøb i Spanien. Få det bedste spanske boliglån med Mortgage Direct.

Mere info

Købsomkostninger

Vores udgiftskalkulator giver et skøn over alle omkostninger forbundet med at købe et hus i Spanien. Brug kun disse tal som vejledning: De faktiske tal varierer afhængigt af ejendommen, ejendommens placering og den bank du vælger sammen med andre faktorer. Til det samlede beløb skal du tilføje dine afdrag på dit realkreditlån samt bankgebyrer, hvis din bank opkræver det.

Samlede udgifter

Du kan måske også lide disse boliger