Villa til salg i Pinoso

Bolig ID: RED-N7758

€454,000

2,018 €/m2


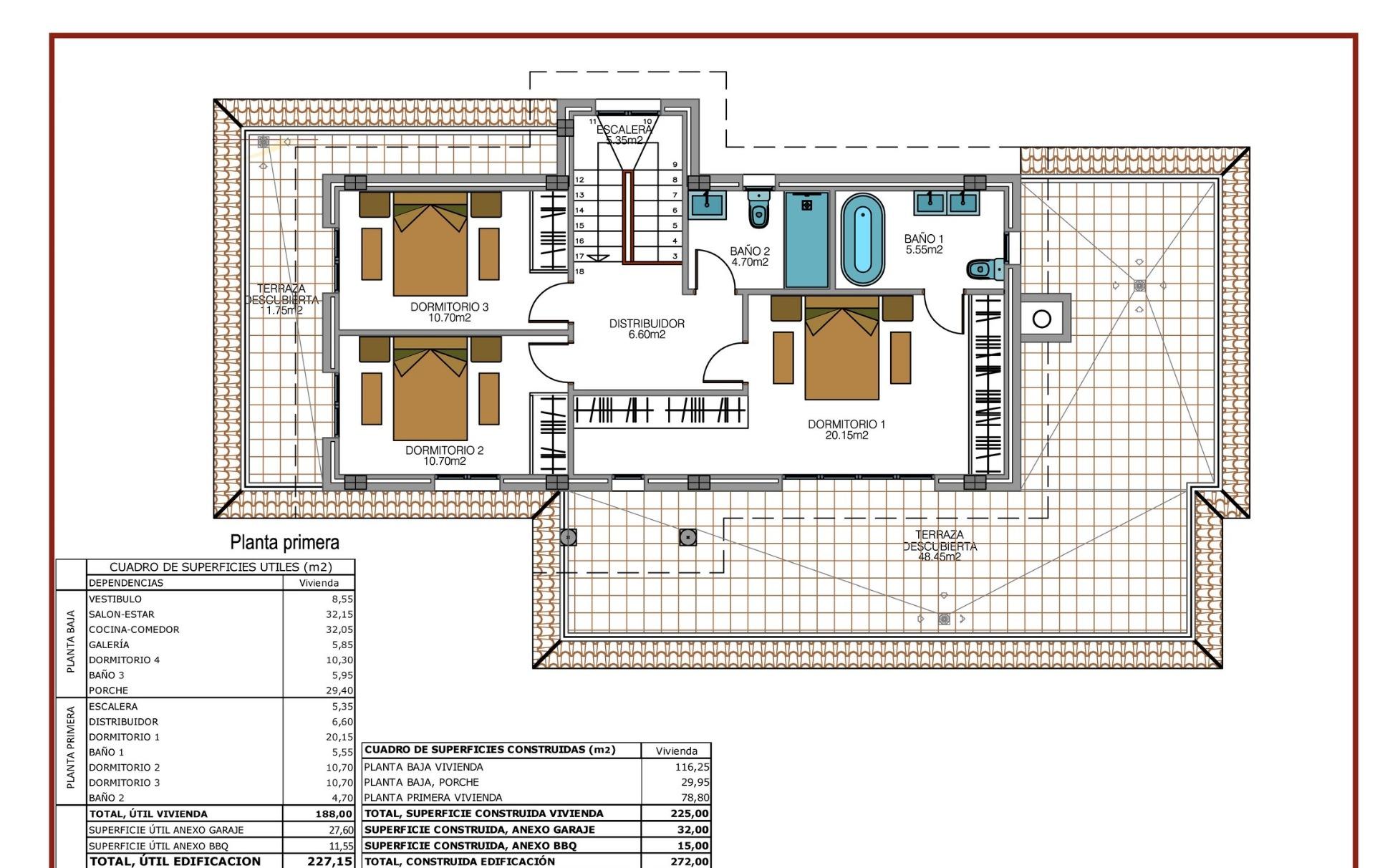
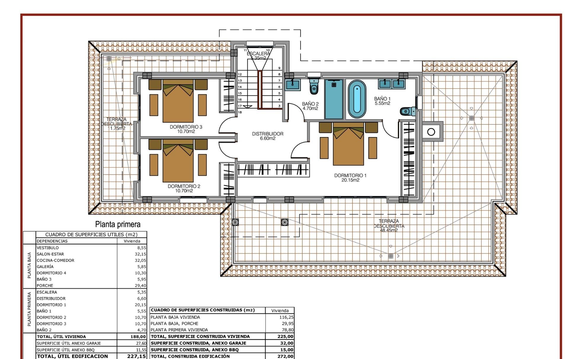
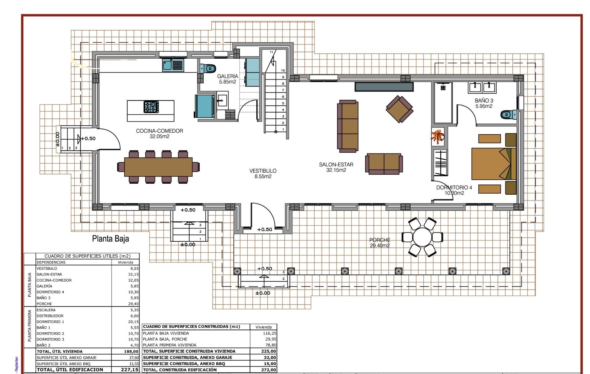
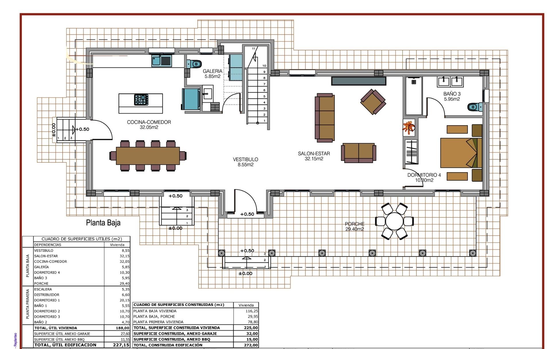
225
4
soveværelser
3
Badeværelser
10000
Grundareal

NYBYGGEDE VILLAER I PINOSO Du kan vælge villaer med traditionelt spansk præg eller supermoderne finish, lyse og rene. Der er forskellige lovlige byggegrunde til rådighed (rustikke med minimum 10.000 m2), nogle i gåafstand til byen, nogle helt private, og vores mest populære ligger inden for 5-10 minutters kørsel til en by. Vi har en grund for enhver smag, alle med en fantastisk udsigt, og alle har vand og el inkluderet i prisen og højhastighedsinternet til rådighed. Fra den største og bedste bygherre i området, som bruger materialer af højeste kvalitet for en perfekt finish. Alle huse har 2 m støbt betonterrasse rundt om poolen (farve og mønster kan vælges), 1 m rundt om huset, lukket indgang, 3.000 m2 indhegning, forudinstalleret aircondition, standardkøkken, sikkerhedsdør, tyske vippe- og drejevinduer (eller skydevinduer, hvis det foretrækkes), indbygget pejs og skorsten, forudinstallation til tv og internet, grusindkørsel plus et par meter rundt om huset, septiktank. Badeværelserne har brusesøjle, bruseniche eller badekar, håndvaske (forskellige farver at vælge imellem) med håndvaske, vandhaner og spejle samt et stort udvalg af vægfliser. Bredt udvalg af keramiske gulvfliser, forskellige farver, træ-effekt osv. Køkkenerne omfatter skabe med standardlåger og håndtag, som vist på tegningerne, vask og vandhane i rustfrit stål, forudinstallation af ovn, opvaskemaskine og emhætte. Forskellige granitbordplader at vælge imellem er inkluderet i budgettet, andre stenbordplader fås som ekstraudstyr. Hårde hvidevarer er ikke inkluderet. Marmortrappe (creme, hvid eller grå) og gelænder inkluderet, plus gelænder til verandaen foran. Stort fastmonteret glasvindue på trappen for ekstra lys. Valg af fliser og design af trin til swimmingpool. Valg af granit til husets udvendige trin og vinduesrammer. Du kan tilpasse huset, så det passer dig, de fleste indvendige ændringer er gratis, husene kan udvides, og vi kan endda bygge dit eget design. Opgrader til større pool, enkelt eller dobbelt garage, gæstehus osv. mod et ekstra gebyr. Den smukke og blomstrende by Pinoso ligger ca. 45 minutter inde i landet fra Alicante og de hvide strande på Costa Blanca og tæt på grænsen mellem Murcia og Alicante. Den har en befolkning på lige under 8.000. Pinoso, også kendt som El Pinos, er opkaldt efter de fyrretræer, der dækker områdets bjergkæder. Pinoso tilbyder en spansk landlig livsstil, ingen trafiklys, næsten ingen trafik, praktisk talt er de eneste trafikpropper forårsaget af traktorerne, der bringer druerne til Bodegaen. Markerne er beplantet med vinstokke, mandler og oliven. I februar er markerne fyldt med lyserøde mandelblomster. Pinoso har mange barer, restauranter og butikker, et nyt døgnåbent lægecenter, tandlæger, to grundskoler og en gymnasieskole, et teater. Der er et fremragende sportscenter med udendørs swimmingpools, tennisbaner, fodboldbaner og gymnastiksal, bibliotek og mange andre faciliteter, herunder et smukt picnicområde blandt fyrretræerne, komplet med grill, siddepladser og rindende vand.

Egenskaber

Climate control

  • A/C
  • fireplace
    Pejs/Kamin

Features

  • Motionsrum
  • Tennisbane
  • Marmorgulv
  • Gæstehus
  • ADSL / WIFI

Parking

  • Garage

Setting

  • Nær Forretninger
  • Nær Havet
  • shanty-house-village-1
    Nær By
  • Nær Skole
  • Nær Marina

Beliggende i

Købekraft

Beregn din månedlige afdrag på lån

Din forventede månedlige ydelse

Bliv forhåndsgodkendt

Bolig-udland samarbejder med Mortage Direct

Vi tilbyder vores kunder de bedst mulige boliglån til ejendomskøb i Spanien. Få det bedste spanske boliglån med Mortgage Direct.

Mere info

Købsomkostninger

Vores udgiftskalkulator giver et skøn over alle omkostninger forbundet med at købe et hus i Spanien. Brug kun disse tal som vejledning: De faktiske tal varierer afhængigt af ejendommen, ejendommens placering og den bank du vælger sammen med andre faktorer. Til det samlede beløb skal du tilføje dine afdrag på dit realkreditlån samt bankgebyrer, hvis din bank opkræver det.

Samlede udgifter

Du kan måske også lide disse boliger

2 sovevær. · 2 badevær. · 127 m²
€337,000 - €571,000
REF. ID: R5135809
Nybyg/ Projektsalg