Villa til salg i Fuente Álamo

Bolig ID: RED-N6871

€242,000

1,383 €/m2


175
2
soveværelser
1
Badeværelser
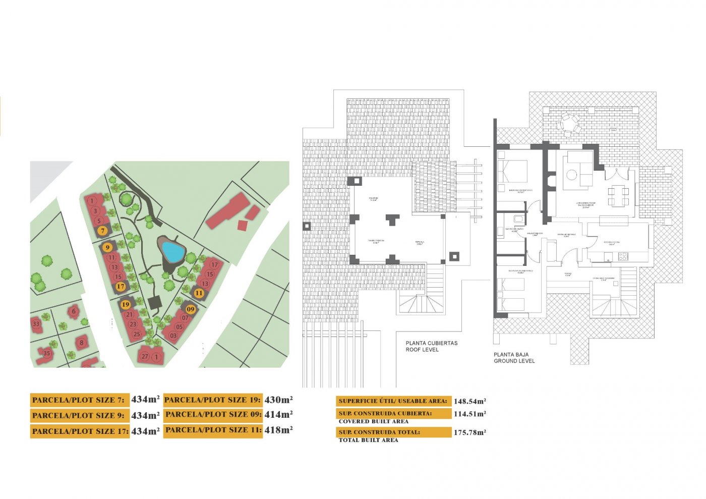
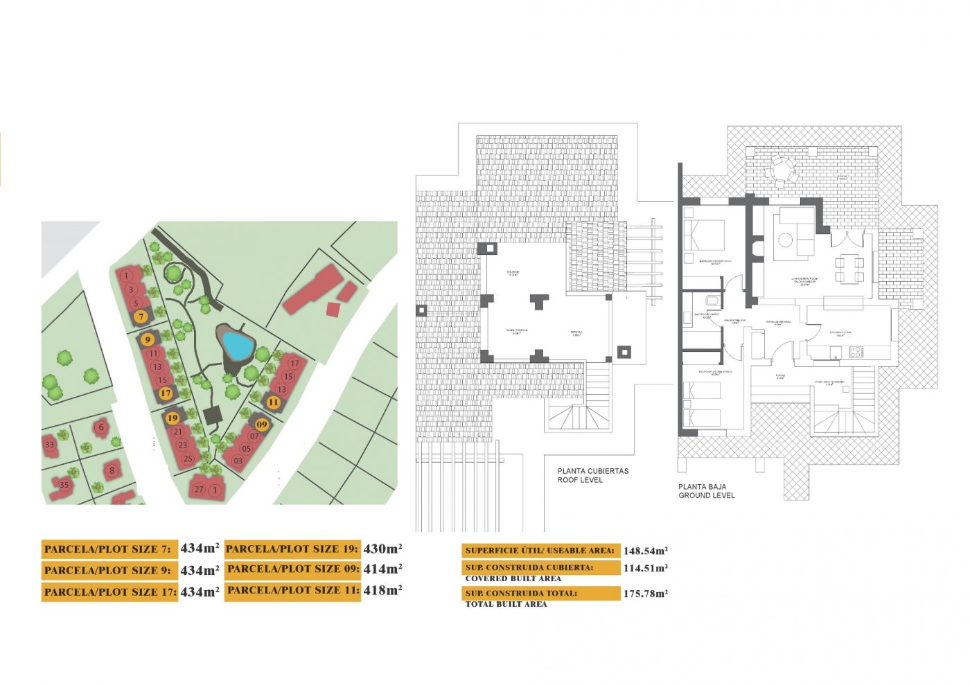
430
Grundareal

NØGLEFÆRDIG VILLA I FUENTE ALAMO, MURCIA Bolig af rækkehuse, selvstændige og dobbelthuse i Fuente Álamo, Murcia. Der er syv forskellige modeller af huse at vælge imellem, designet til at passe til alles smag. Rustikt design kombineret med materialer af højeste kvalitet og fokus på behageligt opholdsrum er der noget for enhver smag. Beboerne i dette private fællesskab af smukke, rummelige huse vil også kunne nyde godt af deres egne fælles haver og swimmingpools. Denne usædvanlige design halvvejsliggende villa har 2 soveværelser og 1 badeværelse, uafhængigt køkken, stue med terrassedøre, der fører ud til den overdækkede veranda og halvt overdækket tagterrasse. En muligheder for en privat pool mod ekstra betaling. Fuente Álamo de Murcia er en by og kommune i regionen Murcia i det sydlige Spanien. Den ligger 22 km nordvest for Cartagena og 35 km sydvest for Murcia. Byen ligger i bækkenet af Mar Menor omgivet af bjergene Algarrobo, Los Gómez, Los Victorias og Carrascoy. Vandet fra disse bjerge løber ned i Rambla de Fuente Álamo og derefter ud i Mar Menor. Fuente Álamo ligger 30 minutter fra Murcia - Corvera lufthavn.

Egenskaber

Climate control

  • A/C

Features

  • Privat Terrasse
  • dresser-drawers-5
    Pulterrum

Parking

  • Privat

Security

  • Lukket Kompleks

Beliggende i

Købekraft

Beregn din månedlige afdrag på lån

Din forventede månedlige ydelse

Bliv forhåndsgodkendt

Bolig-udland samarbejder med Mortage Direct

Vi tilbyder vores kunder de bedst mulige boliglån til ejendomskøb i Spanien. Få det bedste spanske boliglån med Mortgage Direct.

Mere info

Købsomkostninger

Vores udgiftskalkulator giver et skøn over alle omkostninger forbundet med at købe et hus i Spanien. Brug kun disse tal som vejledning: De faktiske tal varierer afhængigt af ejendommen, ejendommens placering og den bank du vælger sammen med andre faktorer. Til det samlede beløb skal du tilføje dine afdrag på dit realkreditlån samt bankgebyrer, hvis din bank opkræver det.

Samlede udgifter

Du kan måske også lide disse boliger