Stueetage 1-værelses lejlighed til salg i Torremolinos

Bolig ID: R5319853

€139,000

2,574 €/m2


54
1
soveværelser
1
Badeværelser
0
terrace
0
Grundareal

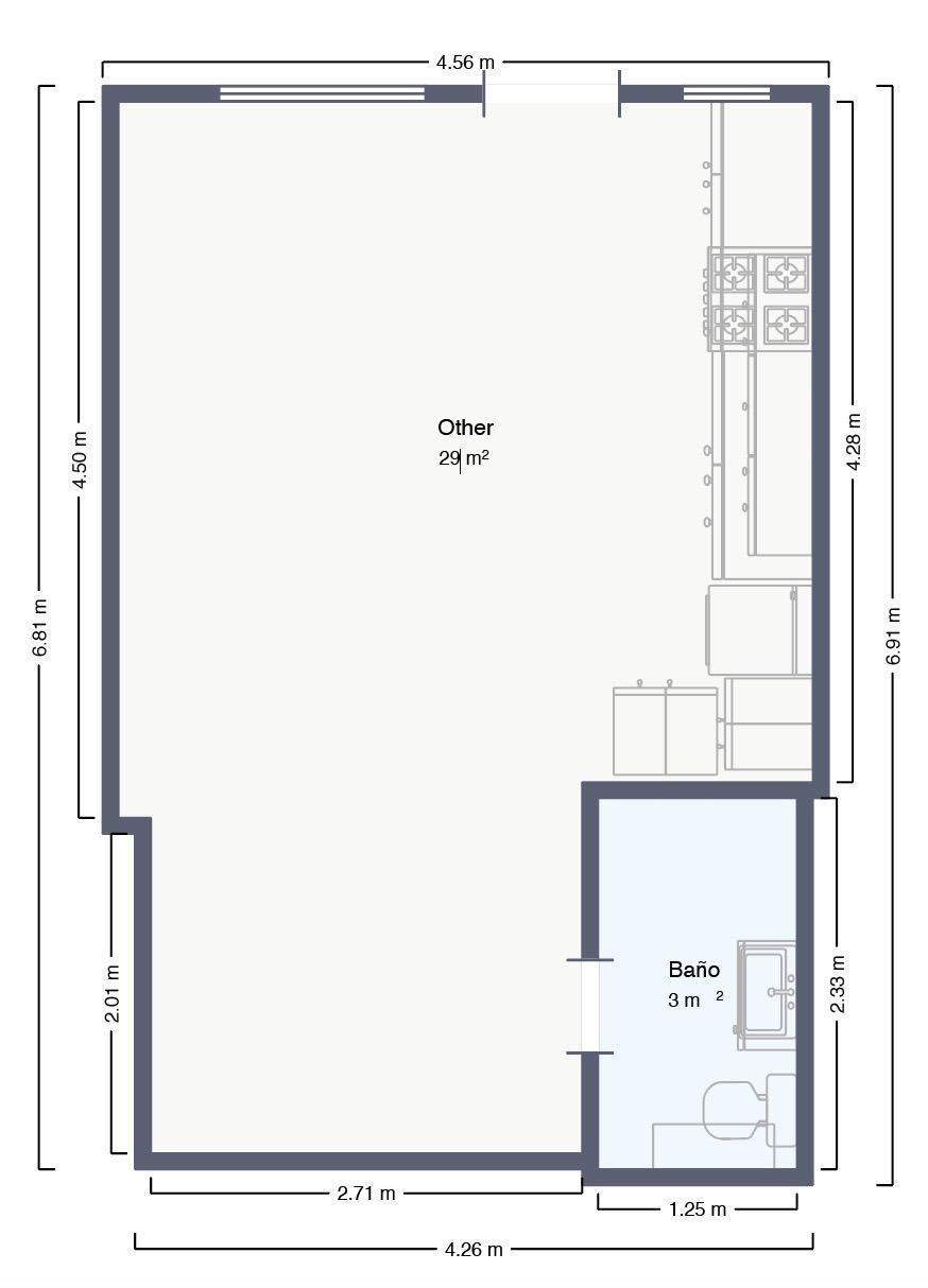
32 m2 studio in the heart of Torremolinos, specifically in the Congresos 1B building. This commercial space has been converted into a residence with all necessary documentation. The kitchen is equipped with appliances (ceramic hob, extractor hood, refrigerator, and washing machine). Air conditioning is also included. Located just steps from the bus station, Vithas Hospital, Plaza Costa del Sol, San Miguel Street, La Nogalera train station, and 10 minutes from the beach.

This property offers excellent rental potential.

In compliance with Royal Decree 218/2005 of the Andalusian Regional Government, dated October 11, consumers are hereby informed that the prices indicated DO INCLUDE THE REAL ESTATE AGENCY FEES but do not include expenses arising from the purchase of real estate according to current legislation (Property Transfer Tax, notary and land registry fees).
Consumers have the right to receive a copy of the Abbreviated Document or Information Sheet for the property, in accordance with Article 12 of Royal Decree 28/2005 of October 11, at our offices.


Egenskaber

Climate control

  • Centralvarme

Condition

  • Meget God

Features

  • lift
    Elevator

Furniture

  • Umøbleret

Orientation

  • Nord

Beliggende i

Købekraft

Beregn din månedlige afdrag på lån

Din forventede månedlige ydelse

Bliv forhåndsgodkendt

Bolig-udland samarbejder med Mortage Direct

Vi tilbyder vores kunder de bedst mulige boliglån til ejendomskøb i Spanien. Få det bedste spanske boliglån med Mortgage Direct.

Mere info

Købsomkostninger

Vores udgiftskalkulator giver et skøn over alle omkostninger forbundet med at købe et hus i Spanien. Brug kun disse tal som vejledning: De faktiske tal varierer afhængigt af ejendommen, ejendommens placering og den bank du vælger sammen med andre faktorer. Til det samlede beløb skal du tilføje dine afdrag på dit realkreditlån samt bankgebyrer, hvis din bank opkræver det.

Samlede udgifter

Du kan måske også lide disse boliger