Lejlighed til salg i La Quinta

Bolig ID: R5317216

€1,395,000

5,471 €/m2


255
3
soveværelser
3
Badeværelser
86
terrace
0
Grundareal

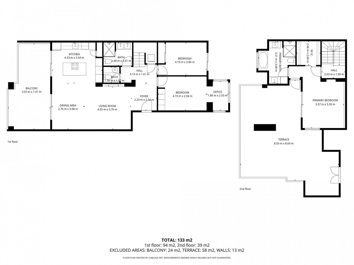
Duplex Penthouse with Panoramic Sea & Golf Views – Urb. Altos de La Quinta

Welcome to this exceptional 3-bedroom duplex penthouse in Urb. Altos de La Quinta, offering breathtaking panoramic sea views, frontline vistas over La Quinta Golf Course, La Concha and a prime location right next to the prestigious The Westin La Quinta Golf Resort & Spa.

Main Level

The entrance level features a bright and spacious open-plan layout combining the living area and modern kitchen, designed to maximize natural light and views.

Two generous double bedrooms

One full bathroom

One guest toilet

Direct access to terraces with stunning sea and golf views

The seamless indoor–outdoor flow makes this level perfect for both everyday living and entertaining.

Upper Level – Private Master Suite & Spectacular Roof Terrace

Upstairs you'll find the impressive master suite, offering complete privacy and luxury:

Spacious master bedroom

En-suite bathroom with sea views

Walk-in wardrobe

This level also provides access to a huge private roof terrace, a true highlight of the property. Designed for enjoying the Costa del Sol lifestyle, it includes:

Outdoor shower

Storage room

Ample space for dining, lounging, and sunbathing

Uninterrupted panoramic views of the Mediterranean and golf course

Additional Features

1 outdoor parking space

Elevated position ensuring privacy and open views

Lift

Quiet and exclusive residential area

This penthouse is ideal as a permanent residence, luxury holiday home, or high-end investment property in one of the most sought-after golf areas on the Costa del Sol.

A rare opportunity to own a property combining privacy, views, and proximity to golf, and 5-star amenities.


Egenskaber

Climate control

  • A/C
  • Gulvvarme Badeværelse

Condition

  • Meget God
  • Renoveret for nylig

Features

  • Overdækket Terrasse
  • lift
    Elevator
  • dresser-wardrobe
    Indbyggede Garderobeskabe
  • Privat Terrasse
  • Solterasse
  • dresser-drawers-5
    Pulterrum
  • home-improvement-12_1
    Vaskehus
  • Barbeque

Furniture

  • Kan købes

Garden

  • Fælles

Orientation

  • Syd

Parking

  • Privat

Pool

  • Fælles

Security

  • Alarm

Setting

  • Nær Golf
  • Nær Forretninger
  • shanty-house-village-1
    Nær By
  • Nær Skole

Udsigt

  • Hav
  • Bjerge
  • Golf
  • Landområde
  • Panoramisk

Beliggende i

Købekraft

Beregn din månedlige afdrag på lån

Din forventede månedlige ydelse

Bliv forhåndsgodkendt

Bolig-udland samarbejder med Mortage Direct

Vi tilbyder vores kunder de bedst mulige boliglån til ejendomskøb i Spanien. Få det bedste spanske boliglån med Mortgage Direct.

Mere info

Købsomkostninger

Vores udgiftskalkulator giver et skøn over alle omkostninger forbundet med at købe et hus i Spanien. Brug kun disse tal som vejledning: De faktiske tal varierer afhængigt af ejendommen, ejendommens placering og den bank du vælger sammen med andre faktorer. Til det samlede beløb skal du tilføje dine afdrag på dit realkreditlån samt bankgebyrer, hvis din bank opkræver det.

Samlede udgifter

Du kan måske også lide disse boliger