Land til salg i Sotogrande

Bolig ID: R5315077

€800,000

800 €/m2


1,000
0
soveværelser
0
Badeværelser
0
terrace
3315
Grundareal

Elevated plot with uninterrupted golf and lake views in Sotogrande Alto.
Located in the Almenara area of Sotogrande Alto, just steps from SO Sotogrande and within close proximity to the Sotogrande International School, this 3,315 m² plot enjoys a privileged south west orientation and open front views over the Alto Club golf course and its lake.
The plot is elevated, ensuring privacy and uninterrupted views, and is surrounded by high quality completed villas, consolidating the residential character of the area. Its orientation allows for optimal light throughout the day and ideal positioning of terraces, pool and main living areas.
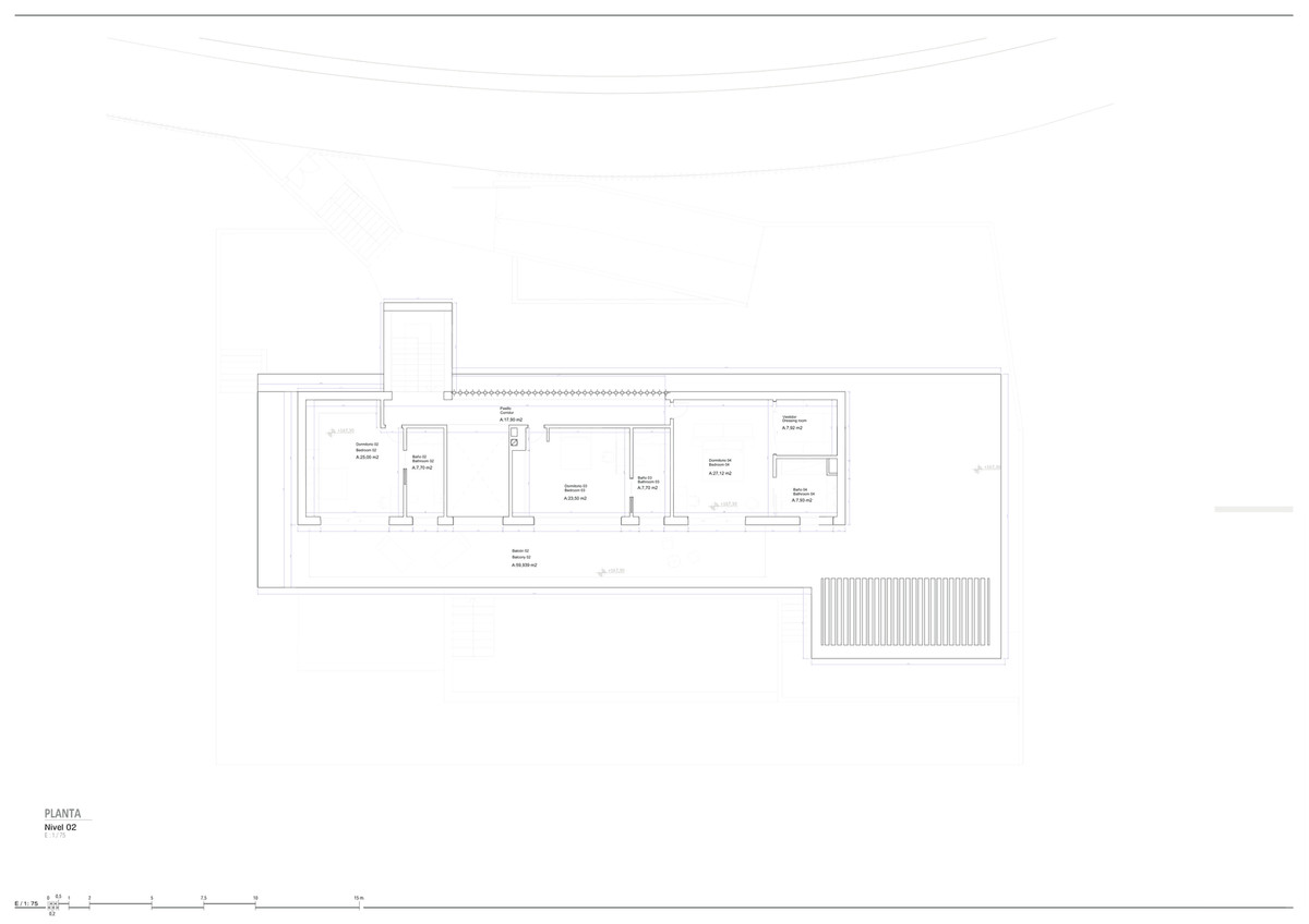
With 33 percent buildability, the plot allows for approximately 1,000 m² of construction, offering the possibility to create a substantial contemporary residence. The sale includes a fully developed architectural project by Casasola Arquitectos, known for refined modern design and strong integration between architecture and landscape.
The project has already been granted building licence, allowing immediate commencement of construction. All utilities are onsite and a complete landscaping project is included in the sale, providing clarity and efficiency from day one.
Ownership is ready to transfer, making this a streamlined acquisition for a buyer seeking a prime location in Sotogrande Alto with immediate development potential and no planning uncertainty.
*The images presented are for reference only and may vary from the final product.


Egenskaber

Climate control

  • A/C
  • Centralvarme

Features

  • lift
    Elevator
  • dresser-wardrobe
    Indbyggede Garderobeskabe
  • bus-2
    Tæt På Transport
  • Privat Terrasse
  • Motionsrum
  • dresser-drawers-5
    Pulterrum
  • Børnehave

Garden

  • Privat

Parking

  • Garage

Pool

  • Privat

Security

  • 24 Timers Vagt

Setting

  • Nær Golf
  • Nær Skole

Udsigt

  • Bjerge
  • Golf
  • Panoramisk
  • Have

Beliggende i

Købekraft

Beregn din månedlige afdrag på lån

Din forventede månedlige ydelse

Bliv forhåndsgodkendt

Bolig-udland samarbejder med Mortage Direct

Vi tilbyder vores kunder de bedst mulige boliglån til ejendomskøb i Spanien. Få det bedste spanske boliglån med Mortgage Direct.

Mere info

Købsomkostninger

Vores udgiftskalkulator giver et skøn over alle omkostninger forbundet med at købe et hus i Spanien. Brug kun disse tal som vejledning: De faktiske tal varierer afhængigt af ejendommen, ejendommens placering og den bank du vælger sammen med andre faktorer. Til det samlede beløb skal du tilføje dine afdrag på dit realkreditlån samt bankgebyrer, hvis din bank opkræver det.

Samlede udgifter

Du kan måske også lide disse boliger