Kommercielle Lokaler til salg i Torremolinos

Bolig ID: R5311804

€215,000

3,116 €/m2


69
0
soveværelser
1
Badeværelser
0
terrace
0
Grundareal

Excellent investment opportunity in the heart of the Costa del Sol!
Commercial premises/office for sale on Avenida Palma de Mallorca, with the possibility of changing the use to residential, in one of the most established and busiest areas of Torremolinos, surrounded by shops, services and public transport, just a few metres from the beach and the train station, guaranteeing constant demand throughout the year.

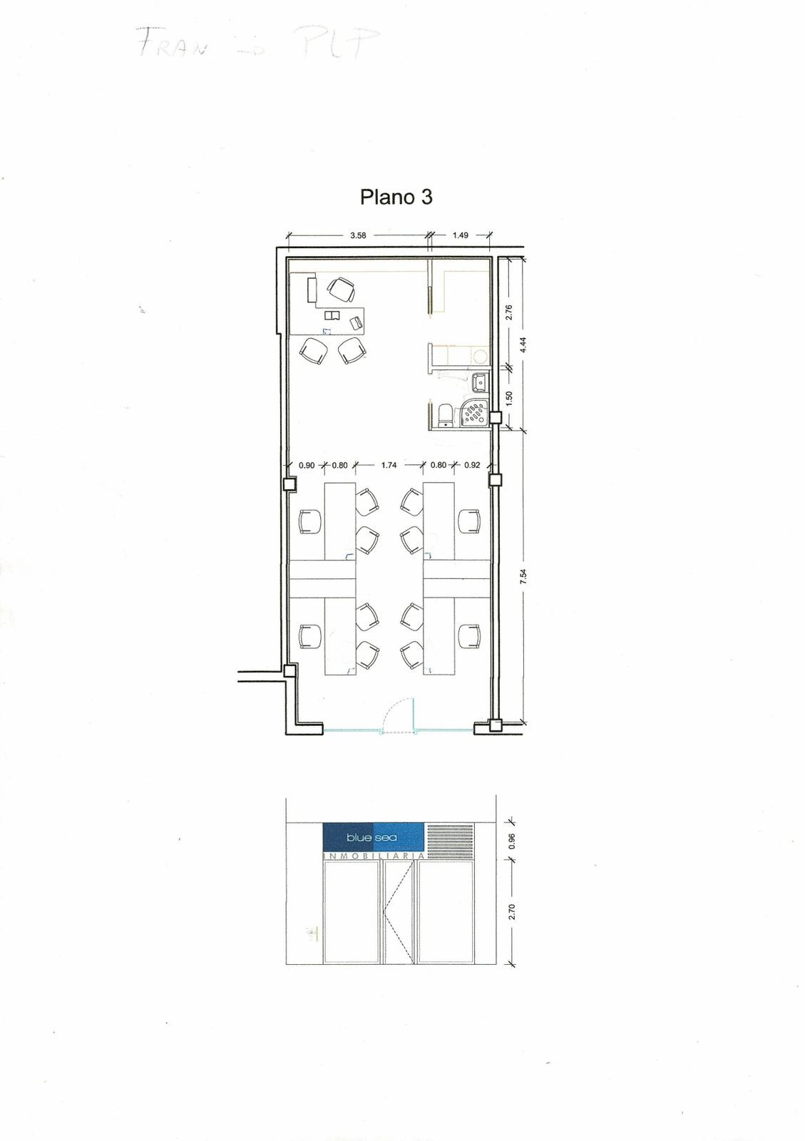
This is a street-level property with a floor area of 69 m², currently operating as an office with eight workstations and all connections embedded in the floor, distributed in a large open space, a full bathroom with shower and water heater, equipped kitchenette and storage area. It has laminate flooring, centralised hot/cold air conditioning, two large north-west facing windows that provide plenty of light and an automatic security sliding door.

Built in 2008, with low property tax costs of €541 per year and rubbish collection costs of €223 per year, this property stands out for its enormous potential for profitability, as it offers the possibility of changing its use to residential, considerably expanding its exploitation options. A versatile and strategic investment that combines a privileged location, high visibility, multiple possibilities and clear potential for appreciation in one of the areas with the greatest prospects on the Costa del Sol.


Egenskaber

Climate control

  • A/C
  • A/C Varm
  • Gulvvarme Badeværelse

Condition

  • God

Features

  • bus-2
    Tæt På Transport

Furniture

  • Umøbleret

Kitchen

  • Fuldt Udstyret

Orientation

  • Nordvest

Setting

  • shanty-house-village-1
    By
  • Forretningsområde
  • Nær Forretninger
  • Nær Skole
  • Aflukket boligområde

Utilities

  • wall-socket
    Elektricitet
  • Drikkevand
  • Telefon

Udsigt

  • Vej

Beliggende i

Købekraft

Beregn din månedlige afdrag på lån

Din forventede månedlige ydelse

Bliv forhåndsgodkendt

Bolig-udland samarbejder med Mortage Direct

Vi tilbyder vores kunder de bedst mulige boliglån til ejendomskøb i Spanien. Få det bedste spanske boliglån med Mortgage Direct.

Mere info

Købsomkostninger

Vores udgiftskalkulator giver et skøn over alle omkostninger forbundet med at købe et hus i Spanien. Brug kun disse tal som vejledning: De faktiske tal varierer afhængigt af ejendommen, ejendommens placering og den bank du vælger sammen med andre faktorer. Til det samlede beløb skal du tilføje dine afdrag på dit realkreditlån samt bankgebyrer, hvis din bank opkræver det.

Samlede udgifter

Du kan måske også lide disse boliger