Byhus/Rækkehus til salg i Riogordo

Bolig ID: R5298295

€295,000

774 €/m2


381
9
soveværelser
5
Badeværelser
100
terrace
323
Grundareal

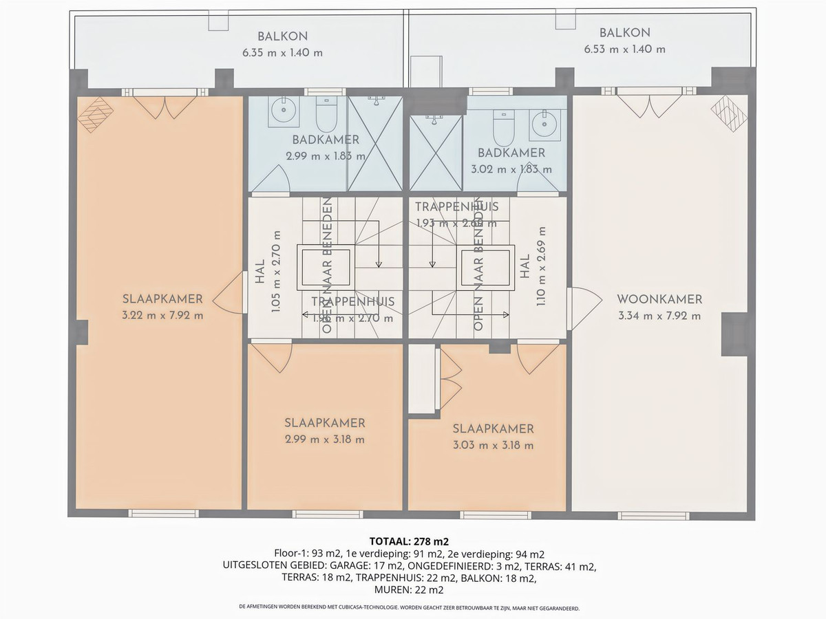
We are pleased to present this unique investment opportunity in the heart of Riogordo (Málaga): a substantial village house with a total built area of 381 m², distributed over three floors on a 323 m² urban residential plot. Constructed in 2005 and legally registered as a single property with no horizontal division, the building offers exceptional flexibility for redevelopment or reconfiguration. Structurally sound and attractively priced for its size and location, it is ideal for a full renovation to unlock its true potential. Multiple development options are possible, including retaining the current layout as two large homes with private outdoor spaces, converting the ground floor into a commercial unit, office, or co-working space for additional rental income, or creating two modern duplex apartments with private terraces suitable for long-term or holiday rentals. The first floor also allows for the creation of generous terraces connected to a communal garden at the rear, offering a rare outdoor oasis in the village centre. Strategically located just 35 minutes from Málaga city and 30 minutes from the coast at Torre del Mar, Riogordo is becoming increasingly attractive as demand grows for more affordable village living within commuting distance of the city. Photos include layout proposals and design concepts, while the accompanying video provides a 3D walkthrough of the current structure. All legal and cadastral documentation is in order, ensuring clarity and ease for future development. For further information, detailed floor plans, or to discuss renovation ideas and investment potential, please get in touch.


Egenskaber

Climate control

  • A/C

Condition

  • God

Features

  • Privat Terrasse
  • WiFi
  • dresser-drawers-5
    Pulterrum
  • En-Suite Badeværelse
  • Nær kirke

Furniture

  • Umøbleret

Garden

  • Privat

Kitchen

  • Delvist Udstyret

Orientation

  • Sydvest

Parking

  • Garage
  • Gade

Pool

  • Plads til Pool

Setting

  • shanty-house-village-1
    Landsby
  • shanty-house-village-1
    Nær By
  • Nær Skole

Utilities

  • wall-socket
    Elektricitet
  • Drikkevand

Udsigt

  • gardening-pot
    Gårdsplads
  • Byzone

Beliggende i

Købekraft

Beregn din månedlige afdrag på lån

Din forventede månedlige ydelse

Bliv forhåndsgodkendt

Bolig-udland samarbejder med Mortage Direct

Vi tilbyder vores kunder de bedst mulige boliglån til ejendomskøb i Spanien. Få det bedste spanske boliglån med Mortgage Direct.

Mere info

Købsomkostninger

Vores udgiftskalkulator giver et skøn over alle omkostninger forbundet med at købe et hus i Spanien. Brug kun disse tal som vejledning: De faktiske tal varierer afhængigt af ejendommen, ejendommens placering og den bank du vælger sammen med andre faktorer. Til det samlede beløb skal du tilføje dine afdrag på dit realkreditlån samt bankgebyrer, hvis din bank opkræver det.

Samlede udgifter

Du kan måske også lide disse boliger