Lejlighed til salg i San Miguel de Salinas

Bolig ID: R5249353

€185,000

3,246 €/m2


57
2
soveværelser
2
Badeværelser
0
terrace
63
Grundareal

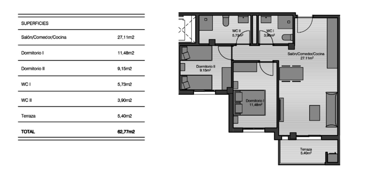
This beautiful 2-bedroom second floor apartment with terrace is situated in the sought after area of San Miguel de Salinas, within walking distance to all local bars, supermarkets and restaurants.

The property will be sold fully furnished and consists of a bright living/dining room, a fully equipped open plan kitchen, two bedrooms with fitted wardrobes, two bathrooms with underfloor heating, and a sunny terrace. Storage room and parking space in the underground garage is also included in the price.

There is a beautiful communal garden with swimming pool to enjoy the Spanish weather all year long!

Close to all amenities and several leisure areas nearby such as beautiful golf courses, many shopping centres, and only 10 minutes from the pristine white sandy Orihuela Costa/Torrevieja beaches and La Zenia Boulevard shopping centre.


Egenskaber

Climate control

  • A/C

Features

  • lift
    Elevator

Parking

  • Garage

Beliggende i

Købekraft

Beregn din månedlige afdrag på lån

Din forventede månedlige ydelse

Bliv forhåndsgodkendt

Bolig-udland samarbejder med Mortage Direct

Vi tilbyder vores kunder de bedst mulige boliglån til ejendomskøb i Spanien. Få det bedste spanske boliglån med Mortgage Direct.

Mere info

Købsomkostninger

Vores udgiftskalkulator giver et skøn over alle omkostninger forbundet med at købe et hus i Spanien. Brug kun disse tal som vejledning: De faktiske tal varierer afhængigt af ejendommen, ejendommens placering og den bank du vælger sammen med andre faktorer. Til det samlede beløb skal du tilføje dine afdrag på dit realkreditlån samt bankgebyrer, hvis din bank opkræver det.

Samlede udgifter

Du kan måske også lide disse boliger