€3,990,000

11,400 €/m2


350
4
soveværelser
5
Badeværelser
133
terrace
843
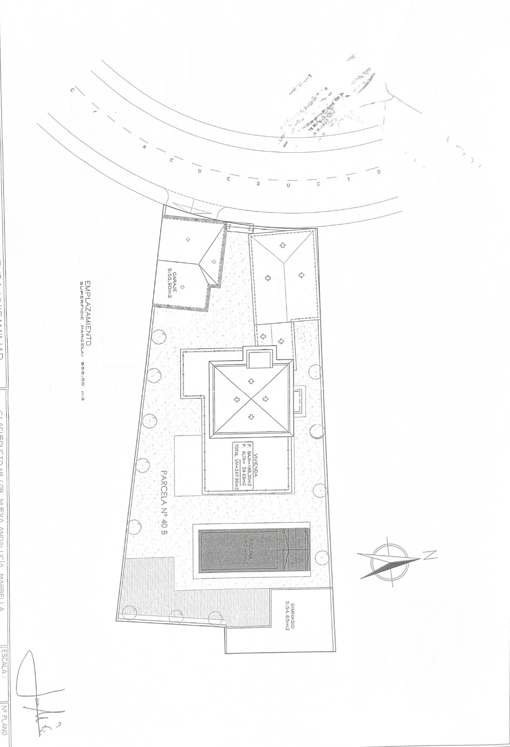
Grundareal

Ideally located second line golf in the heart of Nueva Andalucía, this elegant contemporary villa combines modern design, Mediterranean charm, and a prime Marbella address. Within walking distance to Centro Plaza and Puerto Banús, the property enjoys one of the most convenient and desirable settings in the area — perfect for both living and investment. Despite its central location, the villa offers exceptional tranquility, as it is situated on a quiet dead-end street with no through traffic.

Built over two floors on a generous 843 m² plot, the villa offers 350 m² of built space plus 133 m² of terraces and porches, creating a perfect indoor-outdoor flow. In addition, it features a spacious 50 m² garage and a beautifully designed 50 m² gazebo, offering a shaded retreat with a fully equipped outdoor kitchen, lounge, and dining area — ideal for relaxing or entertaining under the Marbella sun.

The open-plan living area with double-height ceilings connects seamlessly with the terraces, the garden, and the private pool, ideal for entertaining or unwinding in style. The pool itself is finished with natural lava stones, creating a striking aesthetic and a luxurious touch.
The modern kitchen is fully equipped and includes a dedicated fridge room with ample space for storing food, drinks, and supplies — a practical and luxurious feature that enhances everyday living and entertaining convenience.

Featuring four spacious bedrooms, each with an en-suite bathroom, and two guest toilets, this home offers exceptional comfort and privacy. Throughout the property, you'll find underfloor heating in every room, independent hot and cold air-conditioning units, and ipe wood flooring, ensuring the highest standards of luxury and comfort.

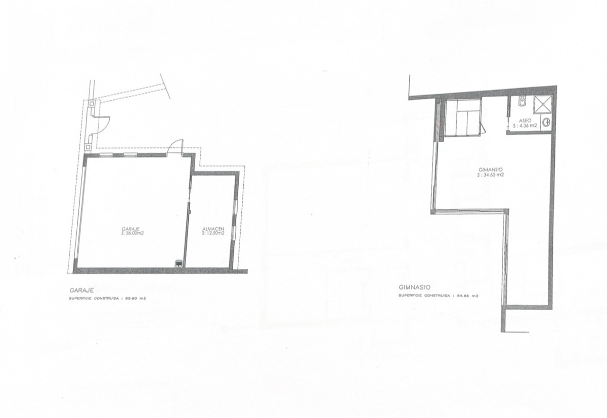
On the lower level, there is an exclusive cinema and music room, built to an extremely high specification with a bulletproof surround system — a level of acoustic quality unmatched in Marbella. Connected to the garage, there is also a 12 m² storage room providing additional convenience.

The wellness area includes a private gym, sauna, jacuzzi integrated into the floor, and a full bathroom, creating a perfect space for relaxation and wellbeing.

From the upper terrace, you already enjoy partial golf and mountain views, and the property also offers excellent expansion potential. It is possible to build an exterior staircase along the side of the house leading up to the terrace, as well as to add an additional 100 m² roof terrace — further enhancing the panoramic views, outdoor living space, and overall value of the property.

Thanks to its location, design, and rental appeal, this villa is one of the best options for both short-term and long-term rentals, generating an impressive ROI (Return on Investment) and a strong passive income potential.

Close to world-class golf courses, beaches, restaurants, and international schools, this property represents a rare opportunity to own a luxury home in one of Marbella's most sought-after areas — elegant, private, and highly profitable.

All furniture is included in the price.


Egenskaber

Climate control

  • A/C
  • Gulvvarme
  • Gulvvarme Badeværelse

Condition

  • God

Features

  • Overdækket Terrasse
  • dresser-wardrobe
    Indbyggede Garderobeskabe
  • bus-2
    Tæt På Transport
  • Privat Terrasse
  • WiFi
  • Motionsrum
  • Sauna
  • dresser-drawers-5
    Pulterrum
  • home-improvement-12_1
    Vaskehus
  • En-Suite Badeværelse
  • wood-material-1
    Trægulv
  • Marmorgulv
  • Jacuzzi
  • Barbeque
  • cellar-3
    Kælderen
  • Optisk Fiber

Furniture

  • Kan købes

Garden

  • Privat

Orientation

  • Sydøst

Parking

  • Mere end én
  • Privat

Pool

  • Privat

Security

  • Elektriske skodder
  • Alarm

Setting

  • Nær Golf
  • Nær Forretninger
  • Nær Havet
  • shanty-house-village-1
    Nær By
  • Nær Skole

Udsigt

  • Bjerge
  • Golf
  • Have
  • Pool
  • Vej

Beliggende i

Købekraft

Beregn din månedlige afdrag på lån

Din forventede månedlige ydelse

Bliv forhåndsgodkendt

Bolig-udland samarbejder med Mortage Direct

Vi tilbyder vores kunder de bedst mulige boliglån til ejendomskøb i Spanien. Få det bedste spanske boliglån med Mortgage Direct.

Mere info

Købsomkostninger

Vores udgiftskalkulator giver et skøn over alle omkostninger forbundet med at købe et hus i Spanien. Brug kun disse tal som vejledning: De faktiske tal varierer afhængigt af ejendommen, ejendommens placering og den bank du vælger sammen med andre faktorer. Til det samlede beløb skal du tilføje dine afdrag på dit realkreditlån samt bankgebyrer, hvis din bank opkræver det.

Samlede udgifter

Du kan måske også lide disse boliger