Stueetagelejlighed til salg i Guardamar del Segura

Bolig ID: R5219389

€162,950

1,417 €/m2


115
3
soveværelser
2
Badeværelser
0
terrace
0
Grundareal

This spacious apartment is located in the centre of Guardamar del Segura, just a short walk from shops, supermarkets, restaurants, banks and all essential services. Guardamar del Segura is a popular coastal town on the Costa Blanca, known for its long sandy beaches, natural dunes and relaxed Mediterranean lifestyle. The town offers a pleasant atmosphere all year round and is only around 30 minutes from Alicante Airport, making it very convenient for both permanent living and holidays.

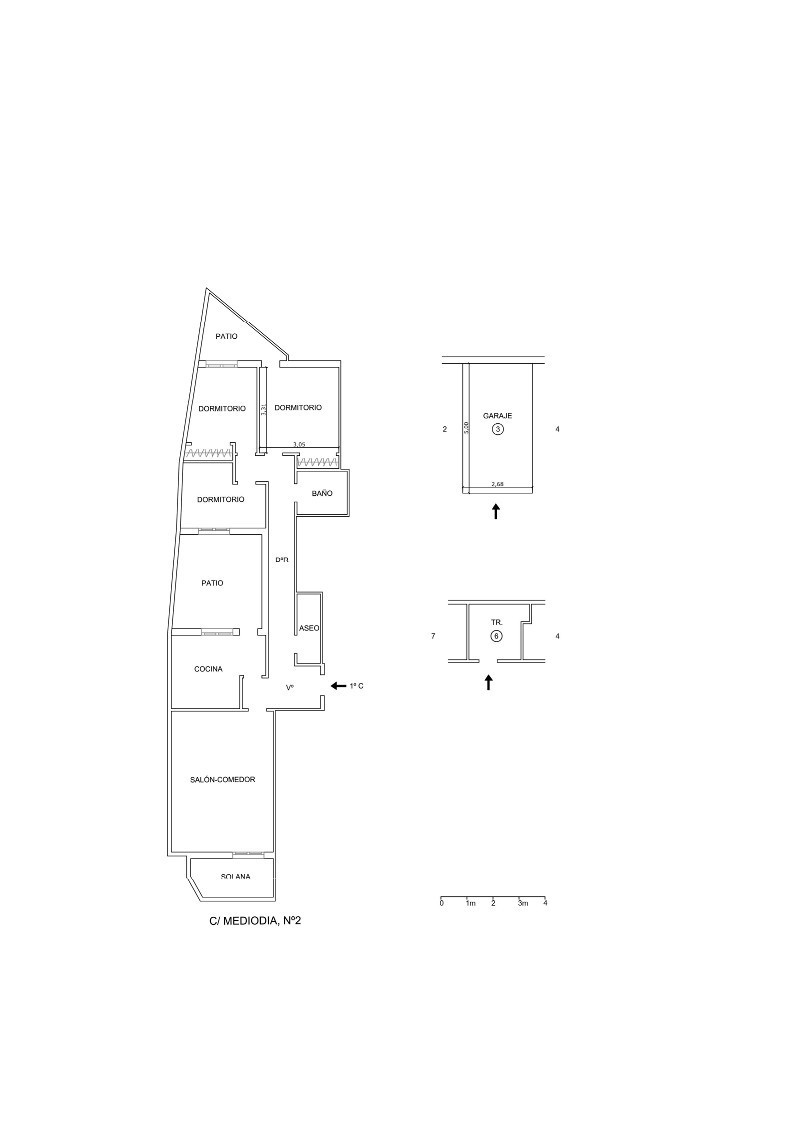
The apartment has a constructed area of 115 m² and is situated on the first floor of a building with a lift. The lift goes down to the garage level, providing comfortable access to the underground parking (13m2) space included in the price. The property also includes a private storage room (3m2).

The layout offers three bedrooms, two bathrooms, a separate kitchen and a bright living area. There are two internal patios that provide additional light and ventilation. The apartment is equipped with pre-installation for a ducted air conditioning system.

This is a large property with great potential in an excellent central location. However, it requires a full renovation, so an additional investment should be considered. It is an ideal opportunity for buyers looking to design and personalise their own home close to the sea and all amenities.

Taxes and other purchase expenses are not included in the price. The property is sold as seen in the photos.Please contact us to arrange a viewing.


Egenskaber

Features

  • lift
    Elevator
  • Privat Terrasse
  • dresser-drawers-5
    Pulterrum

Furniture

  • Umøbleret

Beliggende i

Købekraft

Beregn din månedlige afdrag på lån

Din forventede månedlige ydelse

Bliv forhåndsgodkendt

Bolig-udland samarbejder med Mortage Direct

Vi tilbyder vores kunder de bedst mulige boliglån til ejendomskøb i Spanien. Få det bedste spanske boliglån med Mortgage Direct.

Mere info

Købsomkostninger

Vores udgiftskalkulator giver et skøn over alle omkostninger forbundet med at købe et hus i Spanien. Brug kun disse tal som vejledning: De faktiske tal varierer afhængigt af ejendommen, ejendommens placering og den bank du vælger sammen med andre faktorer. Til det samlede beløb skal du tilføje dine afdrag på dit realkreditlån samt bankgebyrer, hvis din bank opkræver det.

Samlede udgifter

Du kan måske også lide disse boliger